Objektdaten
Objektbeschreibung
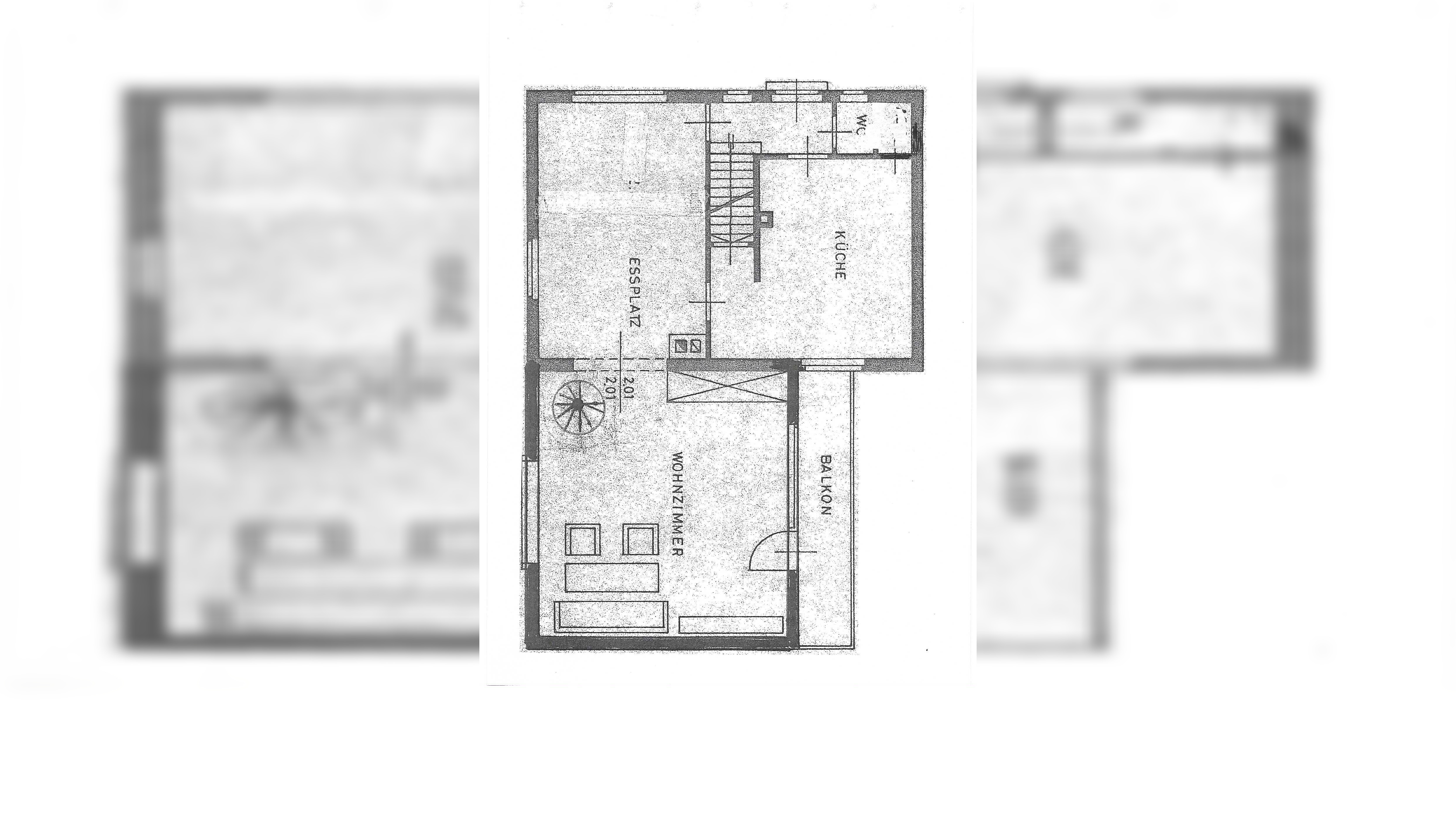
KG: Waschküche mit Gartenausgang, Lagerraum, Heizung, Büro (vom Wohnzimmer erreichbar), Garage EG: Diele, Gäste – WC, Essküche, großes Wohn - /Esszimmer mit BalkonDG: zwei Kinderzimmer, Schlafzimmer mit Balkon, Flur, Badezimmer 
        
 
                     
                     
                     
                     
                     
                     
                     
                     
                     
                     
   
  


