Kaufpreis 438.000 €
Zimmer 3
Größe 96 m²
13585 Berlin
Objektdaten
Veröffentlicht am: 21. April 2025
Baujahr: 2024
Energieausweis: Liegt bei der Besichtigung vor
Danke! Bitte bestätige Deine E-Mail-Adresse – wir haben Dir soeben eine Mail geschickt.
Es gab ein Problem beim Absenden. Bitte versuche es erneut.
Bitte bestätige Deine E-Mail-Adresse, um Updates zu erhalten.
Objektbeschreibung
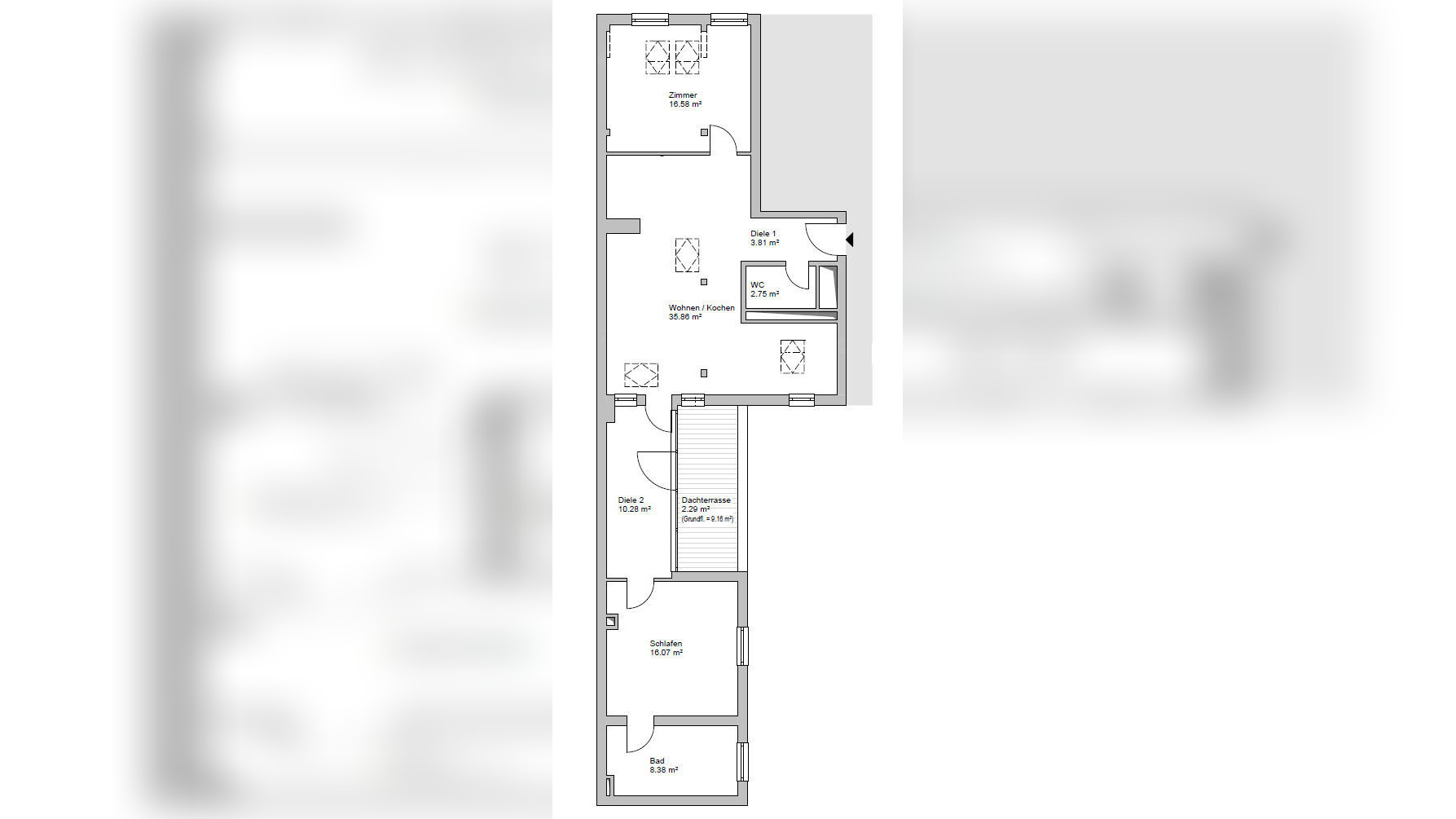
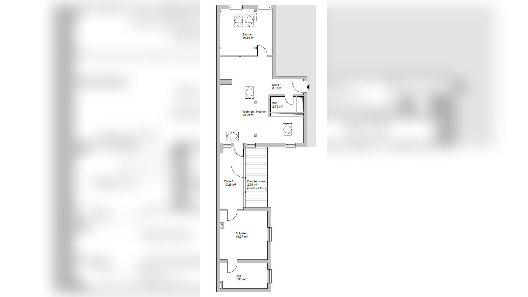
Willkommen in Ihrem neuen Zuhause über den Dächern der Stadt. Im 4. Obergeschoss des Vorderhauses erwartet Sie eine charmante Dachgeschosseinheit, die mit rund 96 m² und drei großzügig geschnittenen Zimmern den idealen Raum für Familienleben und persönliche Rückzugsorte bietet. Schon beim Eintreten spürt man die besondere Atmosphäre: Helle, einladende Räume, Fenster in allen Zimmern und zusätzliche Oberlichter lassen das Tageslicht frei strömen und verleihen der Wohnung eine warme, freundliche Ausstrahlung.Herzstück der Wohnung ist der offen gestaltete Wohn- und Essbereich mit integrierter, neuer Einbauküche in zeitlosem Design. Hier verschmelzen Kochen, Genießen und Zusammensein auf harmonische Weise. Mit ca. 36 m² bietet die Living-Area ausreichend Platz für lange Familienabende, lebendige Gespräche mit Freunden oder entspannte Stunden auf dem Sofa - ein Raum, der verbindet und Geborgenheit schenkt.In den Jahren 2024/2025 wurde die Wohnung umfassend und mit viel Sorgfalt renoviert. Neuer hochwertiger Parkettboden, stilvolle Sockelleisten, glatt gespachtelte Wände und vollständig erneuerte Heizkörper schaffen ein modernes, stimmiges Gesamtbild. Die Wohnung präsentiert sich frisch herausgeputzt und bereit für einen Neuanfang - für Ihre ganz persönliche Wohnvision.Das Badezimmer ist eine kleine Wellness-Oase: Großformatige Fliesen in edlem Naturton, neue Sanitäranlagen, ein stilvoller Waschtisch mit Unterbau, ein beleuchteter Wandspiegel, ein Handtuchheizkörper sowie hochwertige Premium-Armaturen von Grohe vereinen Design und Komfort. Die ebenerdige Regendusche mit eleganten Mosaikfliesen und Glasduschwand sorgt für ein luxuriöses Duscherlebnis. Auch das zweite Bad überzeugt mit großformatigen Fliesen, beleuchtetem Spiegel und einer zusätzlichen Dusche - ideal für Familie und Besuch.Ein besonderes Highlight ist die 7,12 m² große Dachterrasse. Ob Outdoor-Essbereich für laue Sommerabende oder gemütliche Lounge-Möbel für entspannte Stunden - hier genießen Sie Privatsphäre und einen Rückzugsort unter freiem Himmel. Ein Platz zum Durchatmen, Ankommen und Wohlfühlen.Diese Wohnung ist mehr als nur vier Wände - sie ist ein Ort, an dem Erinnerungen entstehen, an dem Leben stattfindet und an dem Sie sich vom ersten Moment an zuhause fühlen werden.
So funktioniert es
- Alle neuen Anzeigen matchen wir kostenlos mit Deinen Suchparametern.
- Passende Angebote senden wir Dir in einer E-Mail pro Tag.
- Du kannst auch verschiedene Suchen anlegen und Dich jederzeit abmelden. Mehr dazu
Wir haben soeben eine E-Mail mit Deinem Suchauftrag an Dich geschickt. – Klicke in dieser Mail auf den Bestätigungslink und schon geht's los. Prüfe ggf. auch Deinen Spamordner.
Es gab ein Problem beim Absenden Deiner E-Mail-Adresse. Bitte versuche es erneut.
WARNUNG: Bitte bestätige Deine E-Mail-Adresse, um regelmäßige Updates zu erhalten.