Kaufpreis 75.000 €
Zimmer 1
88239 Wangen im Allgäu
Größe 30 m2
Objektdaten
Veröffentlicht am: 6. Juni 2025
Energieausweis: Liegt bei der Besichtigung vor
Danke! Bitte bestätige Deine E-Mail-Adresse – wir haben Dir soeben eine Mail geschickt.
Es gab ein Problem beim Absenden. Bitte versuche es erneut.
Bitte bestätige Deine E-Mail-Adresse, um Updates zu erhalten.
Objektbeschreibung
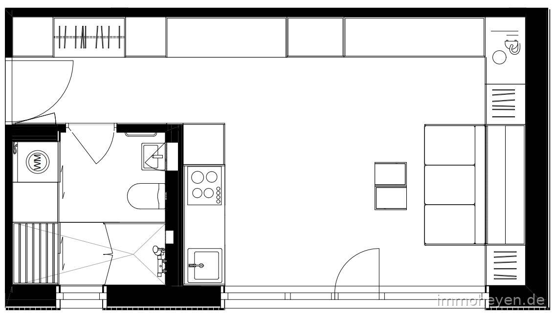
Entdecken Sie ein exklusives Tiny House, das moderne Wohnkonzepte mit herausragender Qualität und durchdachter Funktionalität vereint. Dieses vorgefertigte Zimmermodul, gebaut von Kaufmann Vorarlberg, bietet Ihnen auf ca. 30,9 m² Nettowohnfläche ein einzigartiges Wohnerlebnis, ideal für Singles oder Paare, die Wert auf smartes Wohnen und hochwertige Ausstattung legen. Die Konstruktion des Moduls besteht aus Massivholz. Die Innenwände sind in Holzrahmenbauweise ausgeführt. Die Fassade ist mit einer 16 cm dicken Dämmung aus Mineralwolle und einer schwarzen, UV-beständigen Fassadenbahn versehen. Auf der Terrassenseite findet sich eine vertikale, offene Holzfassade aus heimischer Fichte, die gehobelt und grau lasiert ist. Das Tiny House verfügt über raumhohe Holz-Alu-Fenster mit 3-fach-Verglasung. Im Inneren erwartet Sie ein Badezimmer mit Fliesenbelag aus Cristacer Toscana Gris und einer Duschanlage inklusive Duschboard. Eine Waschtischanlage und WC-Anlage sind ebenfalls vorhanden. Die Einbauküche ist mit Geräten von Siemens ausgestattet, darunter eine Kühl-Gefrierkombination, ein Einbauherd-Set, ein Geschirrspüler und eine Flachschirmhaube. Des Weiteren gehört ein Spülbecken der Marke Naber Corno Basso 3 und passende Schneidbretter zur Ausstattung. Der Wohnbereich ist mit einem Vinylboden ausgestattet. Umfangreiche Wandverbauten entlang der Längs- und Querwand bieten vielseitige Stauraum- und Nutzungsmöglichkeiten, inklusive einer Homeoffice-Klappe und eines Klappbetts. Eine Couch und ein Beistelltisch sind ebenfalls enthalten. Für angenehmes Raumklima sorgen eine Fußbodenheizung mit einer Fläche von ca. 24 m² und ein dezentrales Lüftungsgerät mit Wärmerückgewinnung. Die Beleuchtung des Moduls umfasst Spiegelleuchten im Bad, LED-Lichtleisten in der Küche, im Bücherregal und im Schrank, sowie eine umlaufende LED-Lichtleiste im Wohnbereich und Leseleuchten am Bett.Zum Tinyhaus können wir noch kein passendes Grundstück anbieten. Die äußeren Maße des Moduls betragen: Länge 8,44 Meter, Breite 4,5 Meter und Höhe 3,4 Meter.
So funktioniert es
- Alle neuen Anzeigen matchen wir kostenlos mit Deinen Suchparametern.
- Passende Angebote senden wir Dir in einer E-Mail pro Tag.
- Du kannst auch verschiedene Suchen anlegen und Dich jederzeit abmelden. Mehr dazu
Wir haben soeben eine E-Mail mit Deinem Suchauftrag an Dich geschickt. – Klicke in dieser Mail auf den Bestätigungslink und schon geht's los. Prüfe ggf. auch Deinen Spamordner.
Es gab ein Problem beim Absenden Deiner E-Mail-Adresse. Bitte versuche es erneut.
WARNUNG: Bitte bestätige Deine E-Mail-Adresse, um regelmäßige Updates zu erhalten.