Kaufpreis 458.000 €
Zimmer 5
Größe 155 m²
46399 Bocholt
Objektdaten
Veröffentlicht am: 23. Juni 2025
Energieausweis: Liegt bei der Besichtigung vor
Danke! Bitte bestätige Deine E-Mail-Adresse – wir haben Dir soeben eine Mail geschickt.
Es gab ein Problem beim Absenden. Bitte versuche es erneut.
Bitte bestätige Deine E-Mail-Adresse, um Updates zu erhalten.
Objektbeschreibung
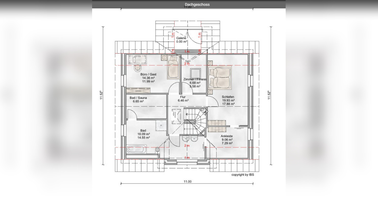
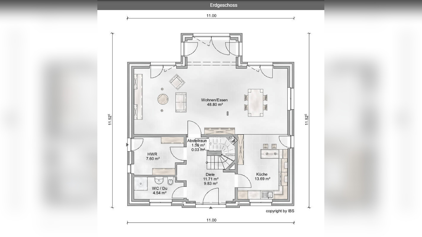
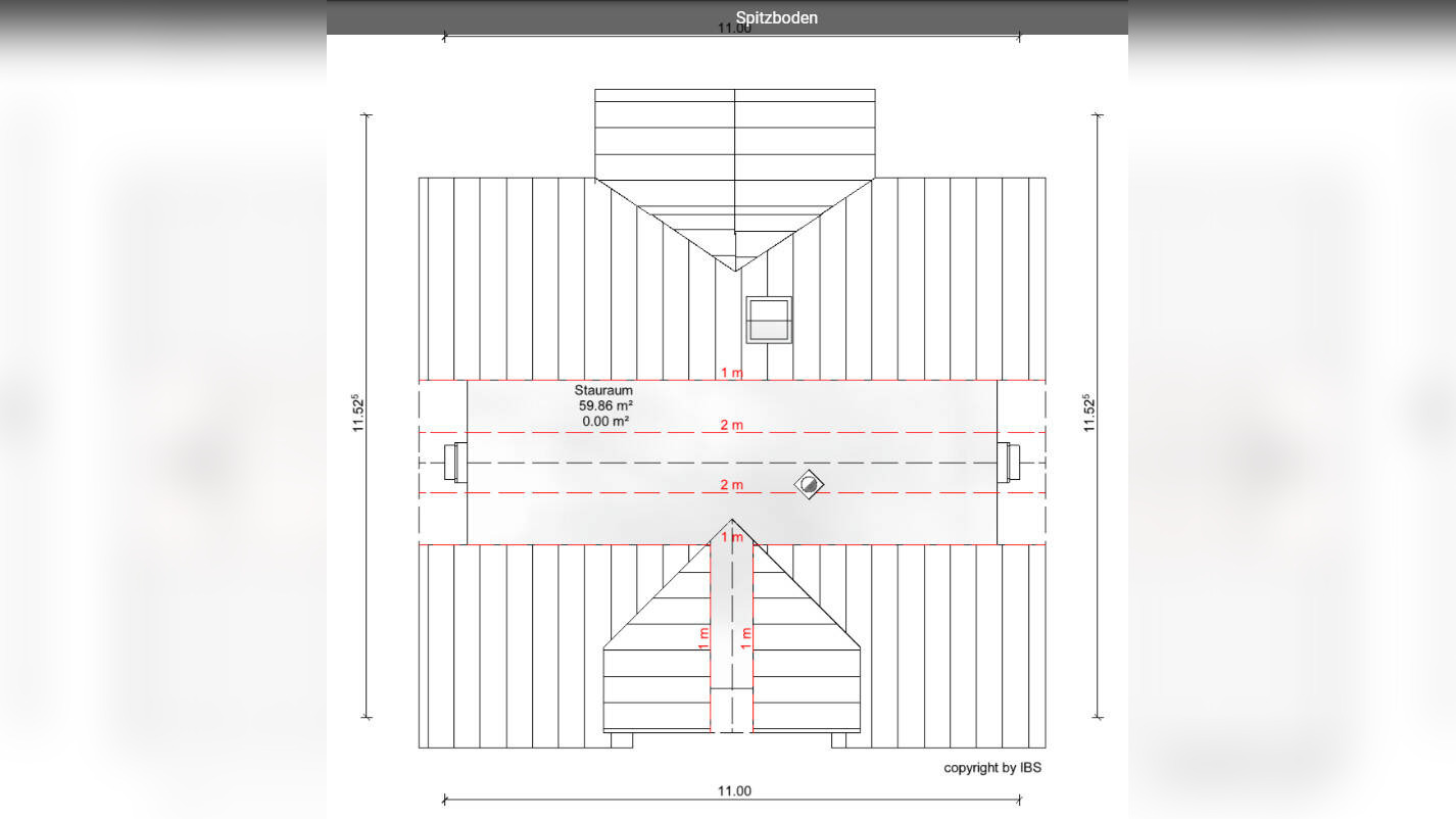
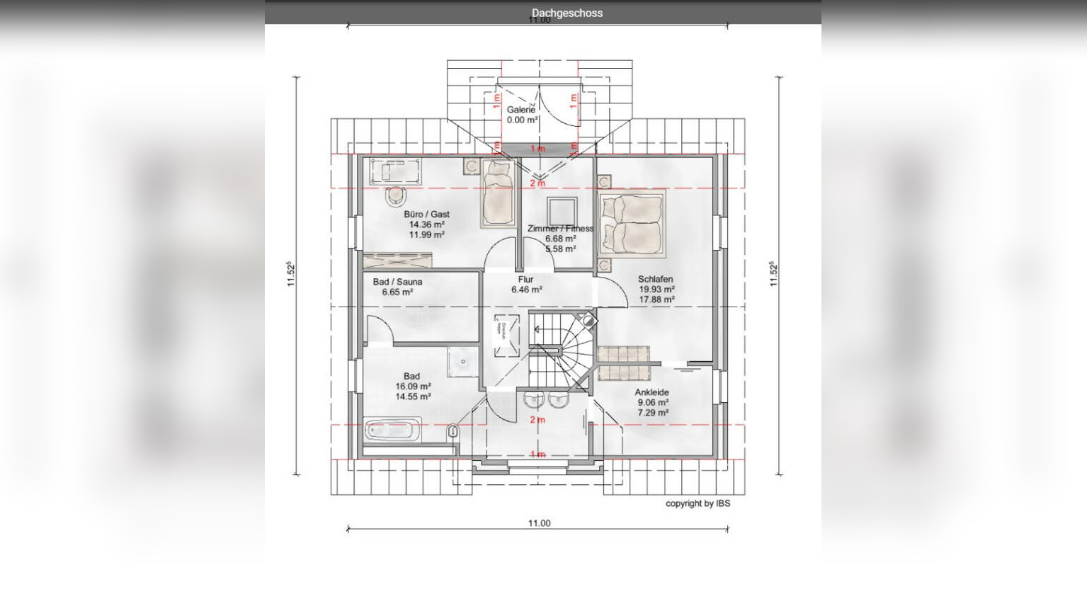
Dieses attraktive Einfamilienhaus realisieren wir gemeinsam mit unserem erfahrenen Bauträger direkt auf Ihrem Grundstück. Die zeitlose Architektur, die durchdachte Grundrissgestaltung und die hochwertige Ausstattung sorgen für ein Zuhause, das sich ganz nach Ihnen richtet - modern, komfortabel und effizient.Im Erdgeschoss erwarten Sie ein großzügiger Wohn-Essbereich mit offener Küche und Zugang zur Terrasse, ein Gäste-WC sowie ein praktischer Hauswirtschaftsraum. Das Dachgeschoss bietet Raum für ein Kinderzimmer, ein Familienbad und einen komfortablen Elternbereich mit Schlafzimmer und Ankleide. Ein ausgebauter Spitzboden eröffnet zusätzliche Nutzungsmöglichkeiten - z.?B. als Büro, Hobbyraum oder Rückzugsort.Optional ist auch bei diesem Objekt eine Garage mit den Maßen 3?×?7?m möglich - inklusive Tor, Stromanschluss, Wasseranschluss und Verblender - zum Aufpreis von 22.000?€.
So funktioniert es
- Alle neuen Anzeigen matchen wir kostenlos mit Deinen Suchparametern.
- Passende Angebote senden wir Dir in einer E-Mail pro Tag.
- Du kannst auch verschiedene Suchen anlegen und Dich jederzeit abmelden. Mehr dazu
Wir haben soeben eine E-Mail mit Deinem Suchauftrag an Dich geschickt. – Klicke in dieser Mail auf den Bestätigungslink und schon geht's los. Prüfe ggf. auch Deinen Spamordner.
Es gab ein Problem beim Absenden Deiner E-Mail-Adresse. Bitte versuche es erneut.
WARNUNG: Bitte bestätige Deine E-Mail-Adresse, um regelmäßige Updates zu erhalten.