Objektdaten
Objektbeschreibung
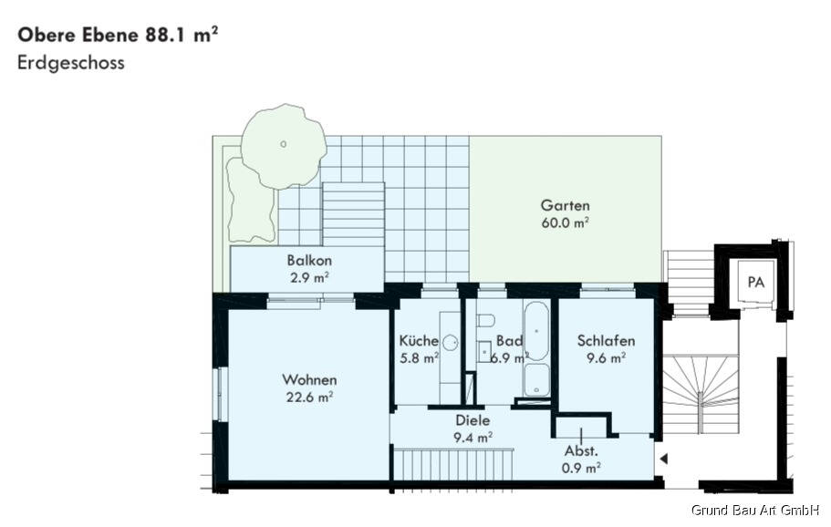
Die helle Wohnung ist Teil eines hochwertig kernsaniertes Objektes mit 5 Wohnungen, das seinen baulichen Ursprung in den späten 1950er Jahren hat. Hier sind Architektur der Nachkriegsmoderne mit dem Charme der Villen der Umgebung aus dem Anfang des 20. Jahrhunderts vereint. Besonders sind die zurückhaltende Eleganz und die klaren Linien. Fertigstellung: Sommer/Herbst 2025. Die gut geschnittene Gartenwohnung verfügt über eine Fläche von 117,5 m² , die sich auf 2 Zimmer im Hochparterre, einen Hobbyraum im Souterrain, 2 Bäder, Küche, Balkon, Diele verteilt. Das Highlight der Wohnung ist der Wohn - und Essbereich mit Balkon und großzügiger Treppe in den idyllischen eigenen 60 m² großen und nach Süden ausgerichteten Gartenanteil.Weitere Wohnungen mit unterschiedlichen Größen im Haus verfügbar!Ähnliche Angebote
So funktioniert es
- Alle neuen Anzeigen matchen wir kostenlos mit Deinen Suchparametern.
- Passende Angebote senden wir Dir in einer E-Mail pro Tag.
- Du kannst auch verschiedene Suchen anlegen und Dich jederzeit abmelden. Mehr dazu




