Objektdaten
Objektbeschreibung
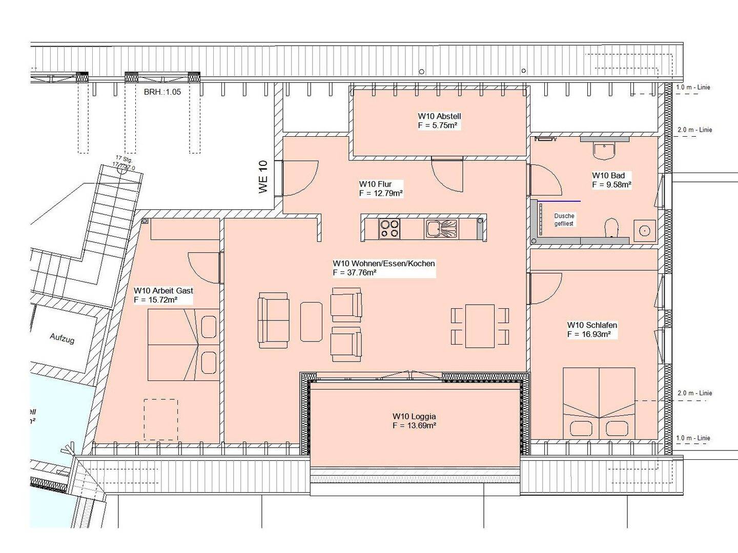
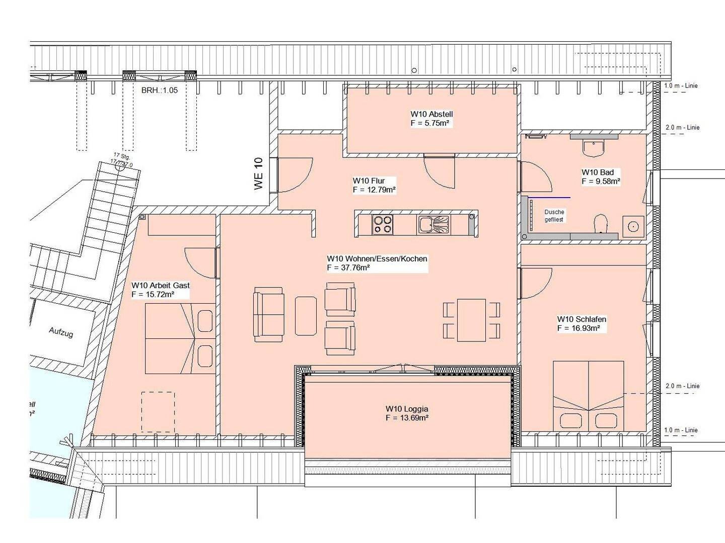
Die Wohnungen überzeugen durch eine gehobene Ausstattung mit hochwertiger Materialauswahl und durchdachte Raumaufteilung. Die Grundrisse sind mit einem offenen Wohn-/ Ess und Kochbereich modern gestaltet. Die Terrassen haben eine attraktive Südwestlage, für die Erdgeschosswohnungen ist ein Gartenanteil vorgesehen. Selbstverständlich sind ausreichende Abstellräume vorgesehen. Carportstellplätze und Fahrradstellplätze sind verfügbar.So funktioniert es
- Alle neuen Anzeigen matchen wir kostenlos mit Deinen Suchparametern.
- Passende Angebote senden wir Dir in einer E-Mail pro Tag.
- Du kannst auch verschiedene Suchen anlegen und Dich jederzeit abmelden. Mehr dazu




