Kaufpreis 119.000 €
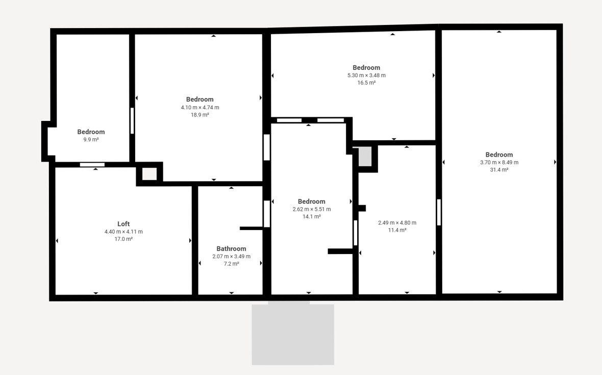
Zimmer 10
Größe 250 m²
39638 Calvörde
Objektdaten
Veröffentlicht am: 8. August 2025
Energieausweis: Liegt bei der Besichtigung vor
Danke! Bitte bestätige Deine E-Mail-Adresse – wir haben Dir soeben eine Mail geschickt.
Es gab ein Problem beim Absenden. Bitte versuche es erneut.
Bitte bestätige Deine E-Mail-Adresse, um Updates zu erhalten.
Objektbeschreibung
Willkommen in Ihrem neuen Zuhause! Dieses großzügige Einfamilienhaus bietet Ihnen auf 250 m² Wohnfläche und einem weitläufigen Grundstück von 645 m² ausreichend Platz für die ganze Familie. Mit insgesamt 10 Zimmern, darunter 6 Schlafzimmer, ist dieses Haus ideal für Familien, die viel Raum und individuelle Gestaltungsmöglichkeiten suchen.**Highlights der Immobilie:**- **Räumlichkeiten:** 10 Zimmer, davon 6 Schlafzimmer - perfekt für Kinder, Gäste oder ein Home-Office.- **Bäder:** 2 Bäder sowie ein praktisches Gäste-WC sorgen für Komfort und Bequemlichkeit im Alltag.- **Etagen:** Das Haus erstreckt sich über 2 Etagen, die Ihnen viel Gestaltungsspielraum bieten.- **Modernisierung:** Die letzte Modernisierung fand 2020 statt, sodass bereits viele zeitgemäße Elemente vorhanden sind.- **Zustand:** Das Haus ist renovierungsbedürftig und bietet Ihnen die Möglichkeit, Ihre eigenen Ideen und Wünsche umzusetzen.- **Ausstattung:** Die Ausstattung ist normal, was Ihnen die Freiheit gibt, nach Ihren Vorstellungen zu gestalten.- **Heizung:** Eine Gas-Heizung sorgt für wohlige Wärme in den kälteren Monaten.**Außenbereich:**Der großzügige Garten lädt zum Entspannen und Spielen ein. Hier können Sie Ihre persönlichen Gartenideen verwirklichen und eine Oase der Ruhe schaffen.**Lage:**Das Einfamilienhaus befindet sich in der ruhigen und familienfreundlichen Gemeinde Klüden. Die Umgebung bietet eine gute Anbindung an die Infrastruktur, Schulen und Einkaufsmöglichkeiten sind in der Nähe.Nutzen Sie die Chance, dieses vielseitige Einfamilienhaus zu Ihrem neuen Zuhause zu machen! Vereinbaren Sie noch heute einen Besichtigungstermin und lassen Sie sich von den Möglichkeiten begeistern. Wir freuen uns auf Ihre Anfrage!
So funktioniert es
- Alle neuen Anzeigen matchen wir kostenlos mit Deinen Suchparametern.
- Passende Angebote senden wir Dir in einer E-Mail pro Tag.
- Du kannst auch verschiedene Suchen anlegen und Dich jederzeit abmelden. Mehr dazu
Wir haben soeben eine E-Mail mit Deinem Suchauftrag an Dich geschickt. – Klicke in dieser Mail auf den Bestätigungslink und schon geht's los. Prüfe ggf. auch Deinen Spamordner.
Es gab ein Problem beim Absenden Deiner E-Mail-Adresse. Bitte versuche es erneut.
WARNUNG: Bitte bestätige Deine E-Mail-Adresse, um regelmäßige Updates zu erhalten.