Kaufpreis 790.000 €
Zimmer 5
Größe 150 m²
91126 Schwabach
Objektdaten
Veröffentlicht am: 9. August 2025
Energieausweis: Liegt bei der Besichtigung vor
Danke! Bitte bestätige Deine E-Mail-Adresse – wir haben Dir soeben eine Mail geschickt.
Es gab ein Problem beim Absenden. Bitte versuche es erneut.
Bitte bestätige Deine E-Mail-Adresse, um Updates zu erhalten.
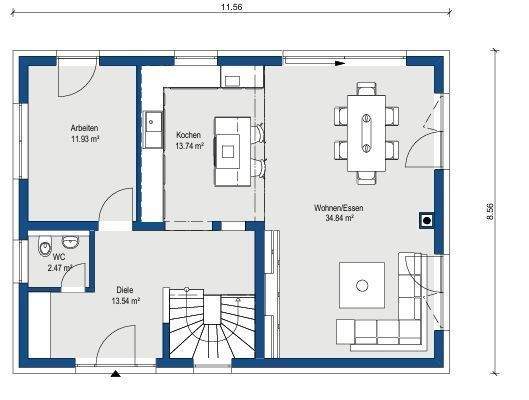
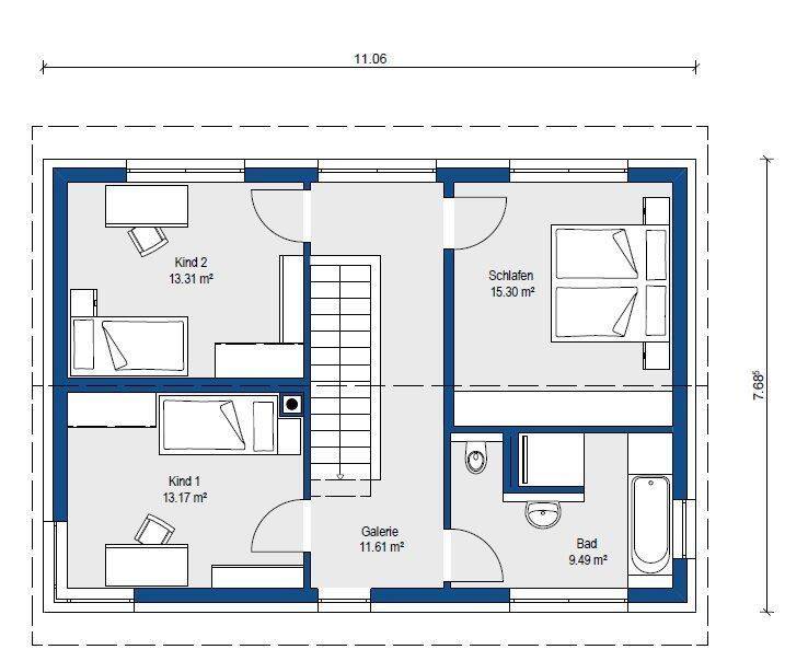
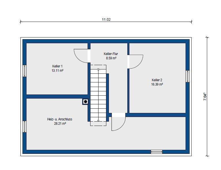
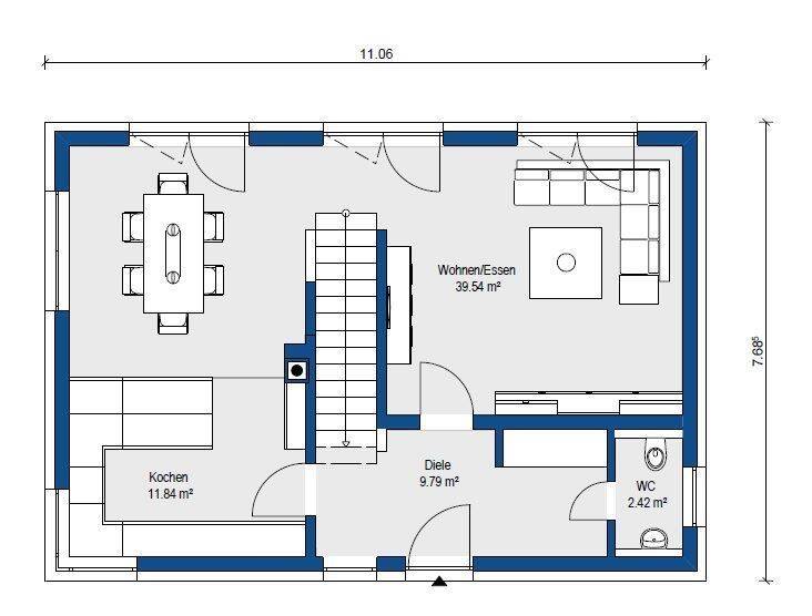
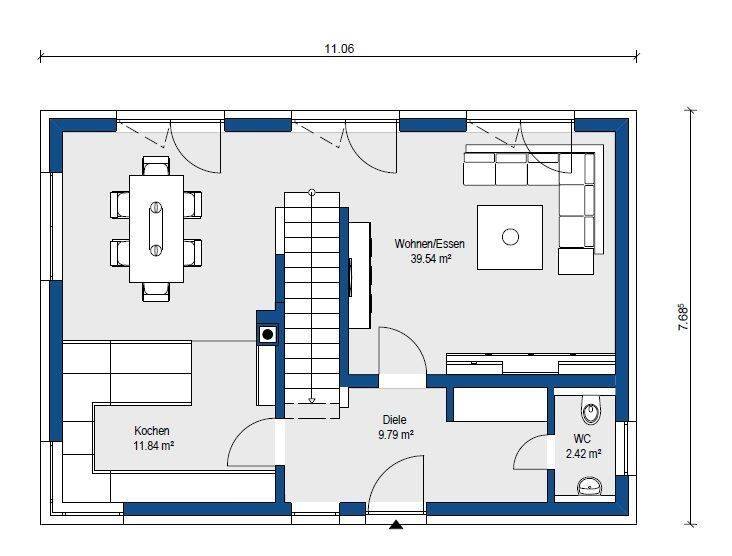
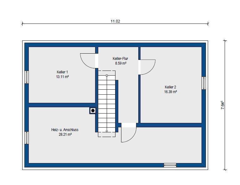
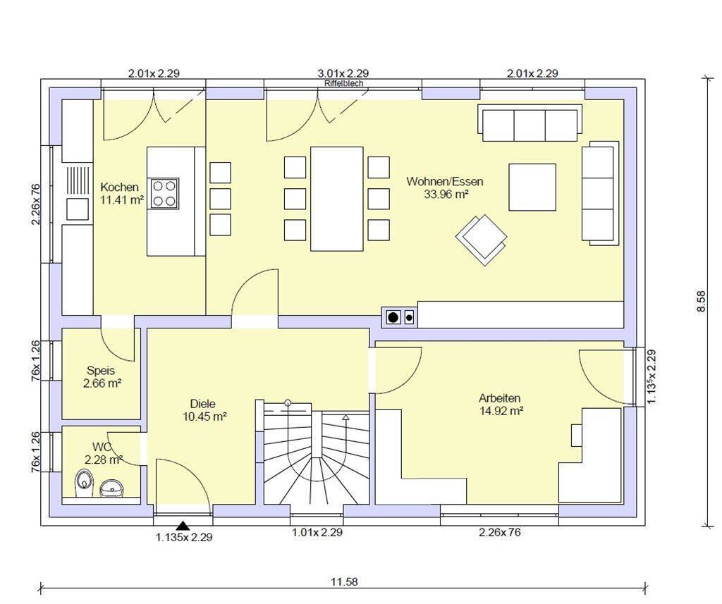
Objektbeschreibung
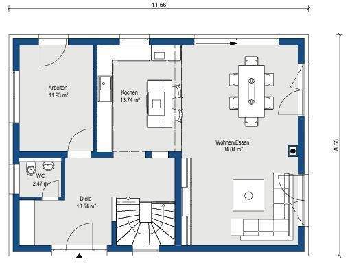
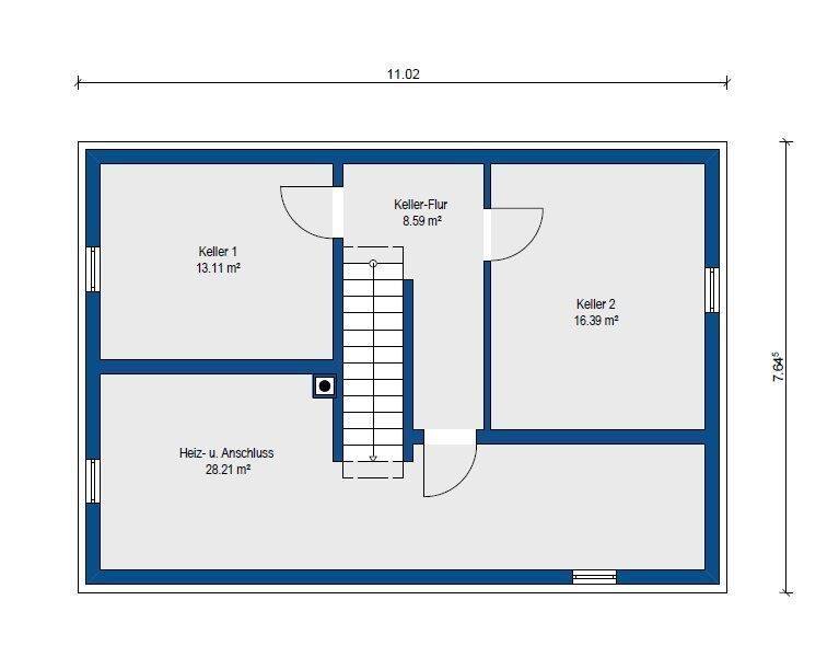
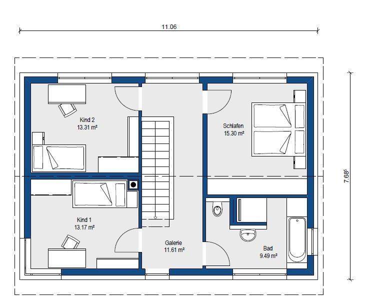
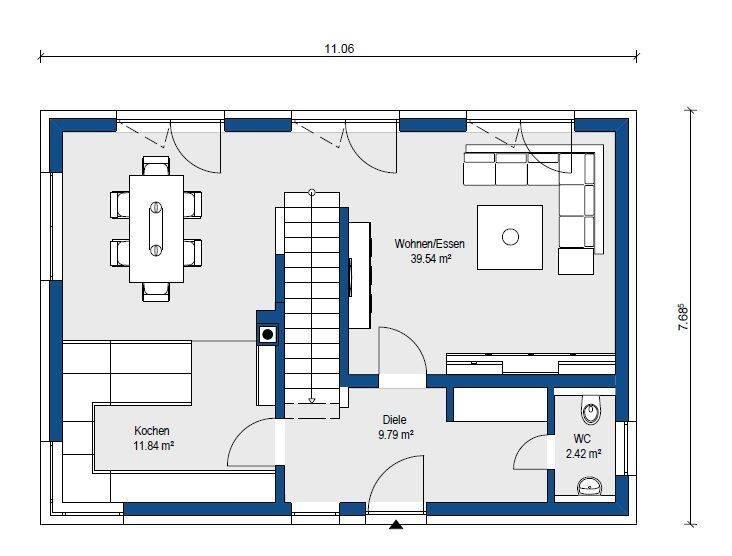
NEUBAU eines modernen vollgeschossigen Einfamilienhauses in wundervoller Lage direkt in Schwabach. Ihr Haus wird individuell nach Ihren Wünschen geplant und angepasst.Der Haustyp kann auf Wunsch natürlich auch noch verändert werden - 2 Vollgeschosse sind möglich.Das heißt Sie können den Grundriss, die Raumaufteilung und das Erscheinungsbild Ihres neuen Hauses selbst mitgestalten!Wir bauen ausschließlich mit regionalen Handwerksbetrieben.Zahlreiche Referenzobjekte in unmittelbarer Umgebung vorhanden - sprechen Sie uns einfach an.Die Hauspreise ändern sich je nach Hausvariante und Ausbaustufe.Es stehen Ihnen unterschiedliche Hausversionen und Varianten zur Verfügung.Parzelle zwei mit 492m² Grundstücksgröße inkl. Haus - 805.000,- EuroMit geprüften Baustoffen und bewährten Markenprodukten bauen wir Häuser von hoher Qualität- einzugsfertig, inkl. aller Maler-, Innenputz und Bodenbelagsarbeiten- im Spitzboden kann ein großzügiges Dachstudio ausgebaut werden- Ihr Haus ist voll unterkellert- hochwertige Massivbauweise mit Kalksandstein; wahlweise andere Baustoffe wie Wärmedämmziegel, Liaporstein oder Gas Beton- der wasserundurchlässige Betonkeller ist komplett als Warmkellergedämmt- optimale Dämmstoffe (WLG 035) sorgen für gute Dämmeigenschaften- die thermische Hülle ist hausumschließend, Wärmebrücken werdenminimiert- Blower-Door-Test zur Überprüfung der Luftdichtigkeit- die Kaminanlage besteht aus Blower-Door-optimierten Elementen sowieeinem zweiten Schornsteinzug für den Anschluss eines Kamin- oder Kachelofens- das wirtschaftliche Heizsystem kann durch eine Solaranlage sinnvoll unterstützt werden- Energieausweis- in der Standardausführung erfüllen alle unsere Häuser die Energieeffiezienz 55 mit Luft-Wasserwärmepumpe und Fußbodenheizung.Leistungen- Ihr Haus ist voll unterkellert- hochwertige Massivbauweise mit Kalksandstein; wahlweise andere Baustoffe wie Wärmedämmziegel,- der wasserundurchlässige Betonkeller ist komplett als Warmkellergedämmt- optimale Dämmstoffe (WLG 035) sorgen für gute Dämmeigenschaften- die thermische Hülle ist hausumschließend, Wärmebrücken werdenminimiert- Blower-Door-Test zur Überprüfung der Luftdichtigkeit- die Kaminanlage besteht aus Blower-Door-optimierten Elementen sowieeinem zweiten Schornsteinzug für den Anschluss eines Kamin- oder Kachelofens- das wirtschaftliche Heizsystem kann durch eine Solaranlage sinnvoll unterstützt werden- Energieausweis- Energieeffiezienz 55 mit Luft-Wasserwärmepumpe und Fußbodenheizung.Leistungen- 5 Jahre GewährleistungBei Fragen stehen wir Ihnen jederzeit zu einem persönlichen Beratungsgespräch zur Verfügung.zzgl. Baunebenkosten von ca. 45.000,- Euro(je nach Grundstücksbeschaffenheit und Erschließung)Als Ihr zuverlässiger Partner in Sachen Immobilien kümmern wir uns gerne um Ihre Finanzierung und kalkulieren Ihre geplanten Umbaumaßnahmen.Ebenfalls bewerten wir Ihre Immobilie kostenlos und betreuen Sie gerne und kompetent bei Verkauf oder Vermietung.Bei einem anstehenden Umzug unterstützen wir Sie natürlich auch.
So funktioniert es
- Alle neuen Anzeigen matchen wir kostenlos mit Deinen Suchparametern.
- Passende Angebote senden wir Dir in einer E-Mail pro Tag.
- Du kannst auch verschiedene Suchen anlegen und Dich jederzeit abmelden. Mehr dazu
Wir haben soeben eine E-Mail mit Deinem Suchauftrag an Dich geschickt. – Klicke in dieser Mail auf den Bestätigungslink und schon geht's los. Prüfe ggf. auch Deinen Spamordner.
Es gab ein Problem beim Absenden Deiner E-Mail-Adresse. Bitte versuche es erneut.
WARNUNG: Bitte bestätige Deine E-Mail-Adresse, um regelmäßige Updates zu erhalten.