Kaufpreis 192.000 €
Größe 362 m²
15926 Heideblick
Objektdaten
Veröffentlicht am: 11. August 2025
Frei ab: 8. August 2025
Energieausweis: Liegt bei der Besichtigung vor
Danke! Bitte bestätige Deine E-Mail-Adresse – wir haben Dir soeben eine Mail geschickt.
Es gab ein Problem beim Absenden. Bitte versuche es erneut.
Bitte bestätige Deine E-Mail-Adresse, um Updates zu erhalten.
Objektbeschreibung
OBJEKTBESCHREIBUNG:
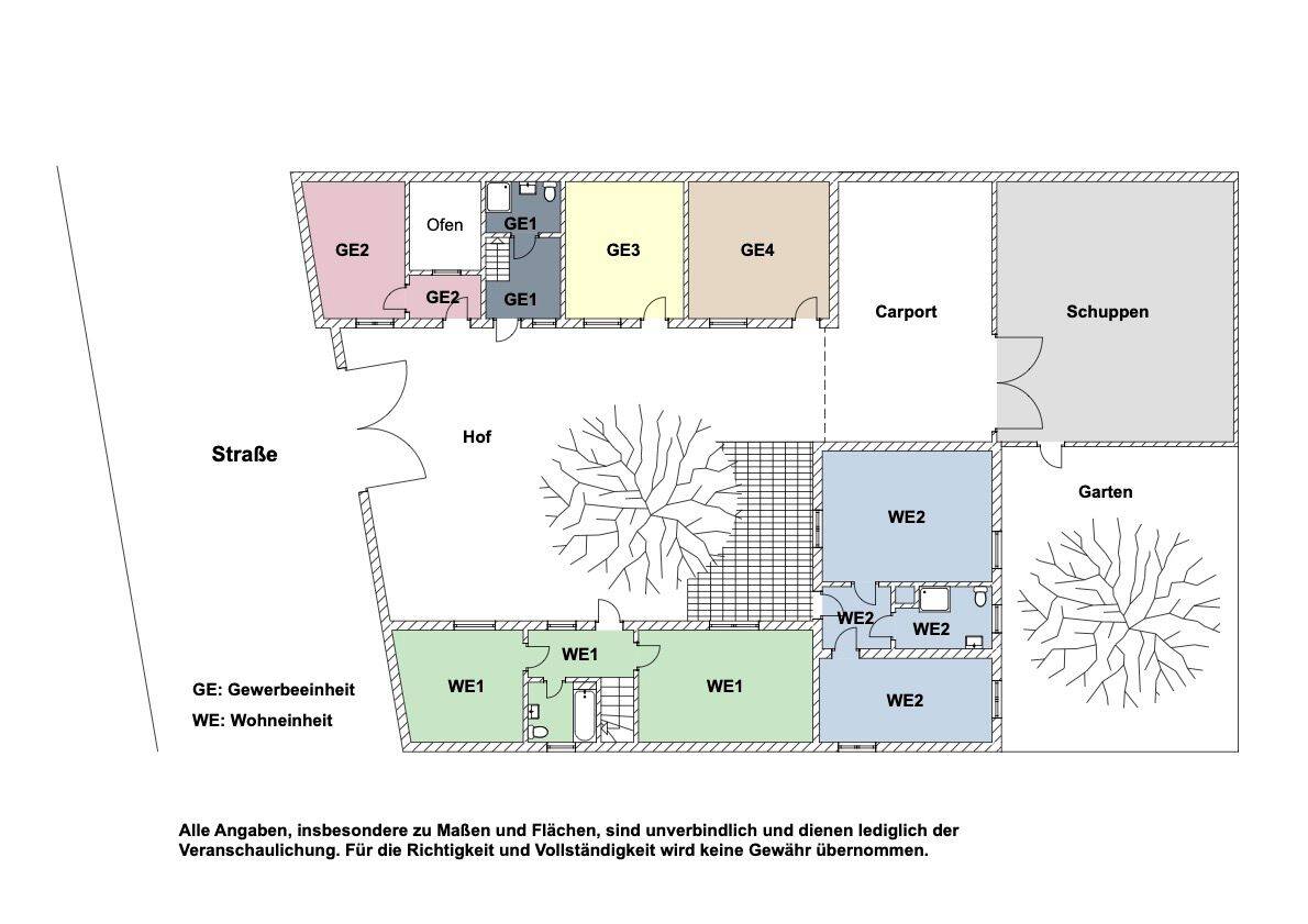
Der ursprünglich um 1910 errichtete, zweigeschossige Dreiseitenhof wurde zunächst als reines Stall- und Nebengebäude genutzt. Im Jahr 1990 erfolgte eine Teilumnutzung zu Wohn- und Gewerbezwecken. Die Liegenschaft gliedert sich in drei Hauptgebäude sowie ergänzende Nebennutzflächen:
Nebenhaus (links der Toreinfahrt):
Dieses Gebäude umfasst aktuell vier Gewerbeeinheiten. Die im Grundriss als „GE1“ markierte Einheit wird derzeit zu Wohnzwecken genutzt. Die Einheiten „GE2“ und „GE3“ sind vermietet, während „GE4“ aktuell leersteht.
Bauernhaus (geradeaus von der Toreinfahrt):
Hier befindet sich die als „WE2“ gekennzeichnete Wohneinheit, die vollständig möbliert ist und derzeit langfristig vermietet ist.
Haupthaus (rechts der Toreinfahrt):
Das Gebäude („WE1“) wurde im Jahr 2025 größtenteils saniert und eignet sich sowohl für die kurz- als auch langfristige Wohnvermietung.
Zwischen Nebenhaus und Bauernhaus befindet sich ein Carport sowie eine dahinterliegende Scheune, welche derzeit als Lagerfläche vermietet ist. Der Dreiseitenhof überzeugt durch seine charmante Anordnung der Gebäude, die ein hohes Maß an Privatsphäre und Geborgenheit schafft. Die Architektur bietet großes Entwicklungspotenzial, wenngleich insgesamt ein Sanierungsbedarf besteht. Zahlreiche Dachflächenfenster sorgen für eine angenehme Belichtung der Innenräume, die sich durch großzügige Zuschnitte und eine vielseitige Nutzbarkeit auszeichnen. Die bestehenden Grundrisse erlauben eine flexible Gestaltung der Wohn- und Gewerbeflächen. Das Gebäude („WE1“) ist teilweise unterkellert. Die Wärmeversorgung erfolgt über elektrische Nachtspeicheröfen, die Warmwasserbereitung über Durchlauferhitzer in den jeweiligen Einheiten.
ECKDATEN:
Baujahr: ca. 1910
Sanierung/Renovierung: ca. 1990 / 2025
Grundstücksfläche: ca. 530 m²
Wohnen (WE 1+2): ca. 126 m²
Gewerbe (GE 1-4): ca. 101 m²
Lager (Schuppen): ca. 60 m²
Nutzfläche (1+2): ca. 75 m²
Gesamtfläche: ca. 362 m²
Jahresnettokaltmiete (IST): 19.032 €
Jahresnettokaltmiete (SOLL): 24.576 €
Kaufpreis/m²: 635 €
Faktor (IST): 12,1
Faktor (SOLL): 9,4
KURZINFOS:
- WE1 (Haupthaus) im Leerstand
- Mietpotenzial
- Ausbaupotenzial
- Teilweise saniert
- Ruhige Lage
- Dachgeschoss ausgebaut
- Altersgemäßer Allgemeinzustand
So funktioniert es
- Alle neuen Anzeigen matchen wir kostenlos mit Deinen Suchparametern.
- Passende Angebote senden wir Dir in einer E-Mail pro Tag.
- Du kannst auch verschiedene Suchen anlegen und Dich jederzeit abmelden. Mehr dazu
Wir haben soeben eine E-Mail mit Deinem Suchauftrag an Dich geschickt. – Klicke in dieser Mail auf den Bestätigungslink und schon geht's los. Prüfe ggf. auch Deinen Spamordner.
Es gab ein Problem beim Absenden Deiner E-Mail-Adresse. Bitte versuche es erneut.
WARNUNG: Bitte bestätige Deine E-Mail-Adresse, um regelmäßige Updates zu erhalten.