Kaufpreis 470.000 €
Zimmer 4
Größe 114 m²
84550 Feichten a.d. Alz
Objektdaten
Veröffentlicht am: 15. August 2025
Baujahr: 2024
Energieausweis: Liegt bei der Besichtigung vor
Danke! Bitte bestätige Deine E-Mail-Adresse – wir haben Dir soeben eine Mail geschickt.
Es gab ein Problem beim Absenden. Bitte versuche es erneut.
Bitte bestätige Deine E-Mail-Adresse, um Updates zu erhalten.
Objektbeschreibung
Objektbeschreibung
Die neu entstehende Wohnanlage im Ortsteil Mankham unweit von Tachterting mit insgesamt zwei mal 20 Wohnungen, Tiefgarage, Aufzügen, Balkonen, Loggien und Gartenanteilen ist ein schönes Beispiel wie ein Mehrfamilienhaus und ländliches Bauen und Wohnen vereint werden können.Die beiden Häuser sind wie ein Vierseithof arrangiert mit grünem Herzen und grüner Umgebung und Bergblick. Da lediglich zwei Vollgeschosse errichtet werden, fügt sich das Bauwerk harmonisch in das Ortsbild der schönen Gemeinde ein.Die große Tiefgarage mit Fahrradkeller und die Außenstellplätze bietet genug Platz für die Fahrzeuge der Bewohner.Stellplatz-Optionen:Tiefgaragen-Stellplatz: 20.000 EuroAußenstellplatz: 8.000 EuroDie Wohnung Nr. 1 besticht durch ihren großzügigen Grundriss mit Maisonette Aufteilung auf zwei Vollgeschosse EG und 1. OG. Ingesamt 3 Schlafzimmer, zwei Sanitärräume und ein riesiger Wohn-, Koch und Essbereich runden neben dem schönen Gartenanteil das Paket ab.
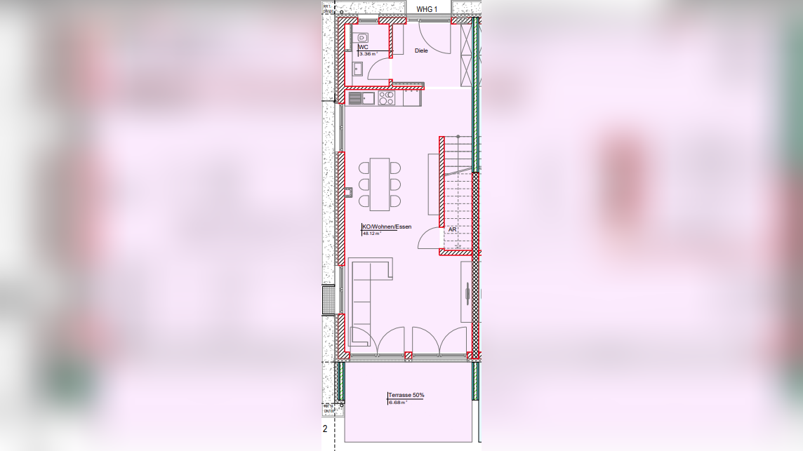
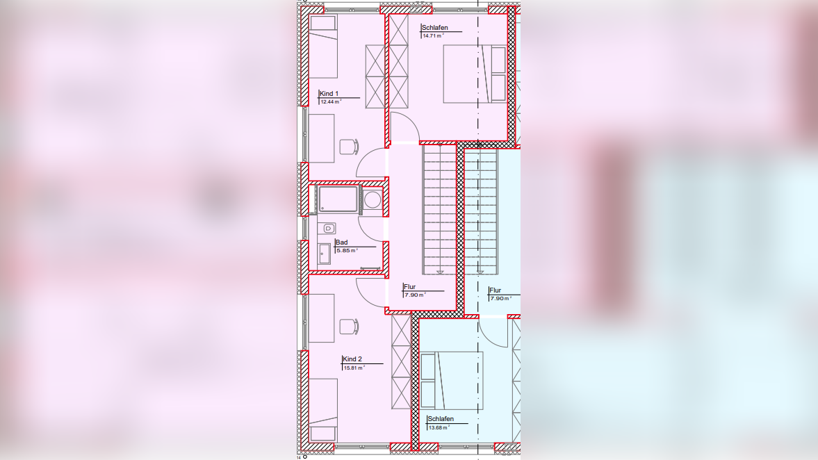
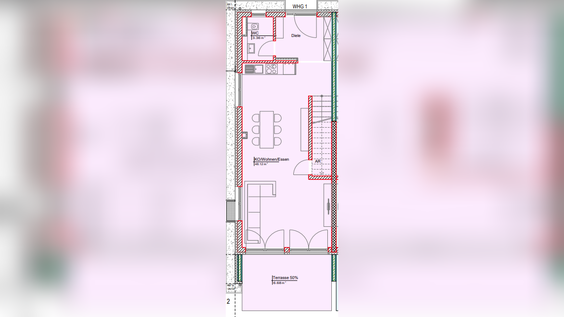
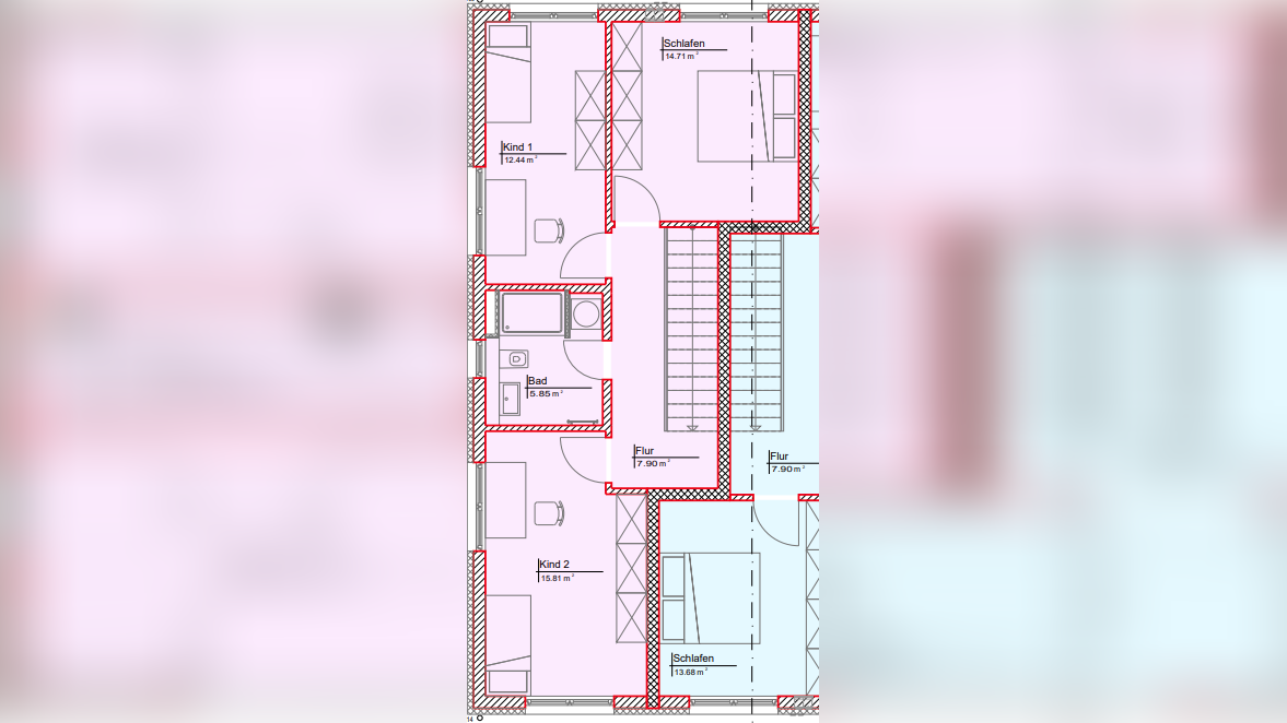
Raumaufteilung
Kellergeschoss:- Kellerabteil- FahrradkellerObergeschoss:- große Diele- Gäste-WC- Wohn-,Koch- und Essbereich- große TerrasseObergeschoss:- Flur- Badezimmer- ein Schlafzimmer- zwei Kinderzimmer
So funktioniert es
- Alle neuen Anzeigen matchen wir kostenlos mit Deinen Suchparametern.
- Passende Angebote senden wir Dir in einer E-Mail pro Tag.
- Du kannst auch verschiedene Suchen anlegen und Dich jederzeit abmelden. Mehr dazu
Wir haben soeben eine E-Mail mit Deinem Suchauftrag an Dich geschickt. – Klicke in dieser Mail auf den Bestätigungslink und schon geht's los. Prüfe ggf. auch Deinen Spamordner.
Es gab ein Problem beim Absenden Deiner E-Mail-Adresse. Bitte versuche es erneut.
WARNUNG: Bitte bestätige Deine E-Mail-Adresse, um regelmäßige Updates zu erhalten.