Kaufpreis 342.400 €
Zimmer 4
Größe 101 m²
39110 Magdeburg
Objektdaten
Veröffentlicht am: 29. August 2025
Energieausweis: Liegt bei der Besichtigung vor
Danke! Bitte bestätige Deine E-Mail-Adresse – wir haben Dir soeben eine Mail geschickt.
Es gab ein Problem beim Absenden. Bitte versuche es erneut.
Bitte bestätige Deine E-Mail-Adresse, um Updates zu erhalten.
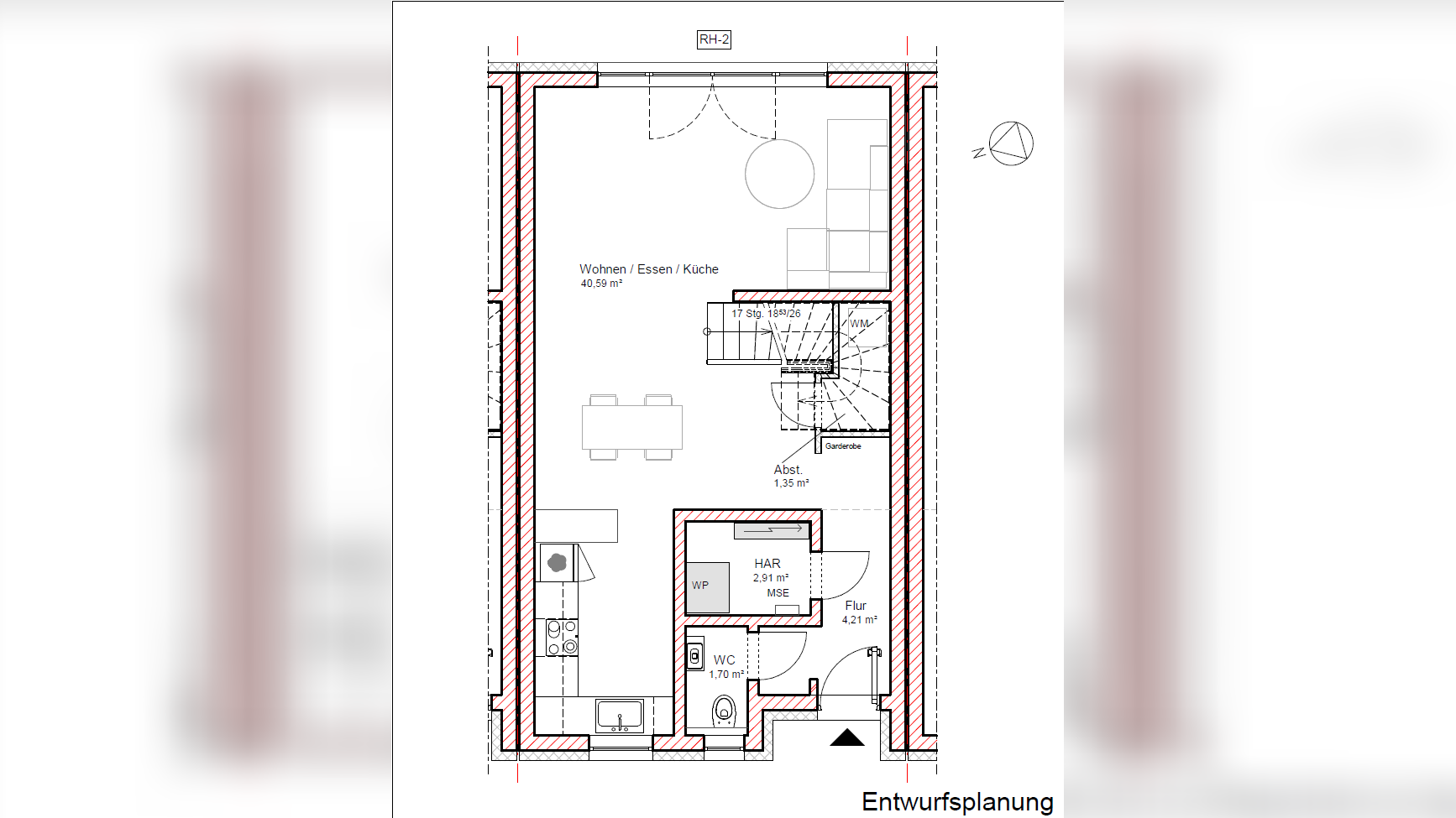
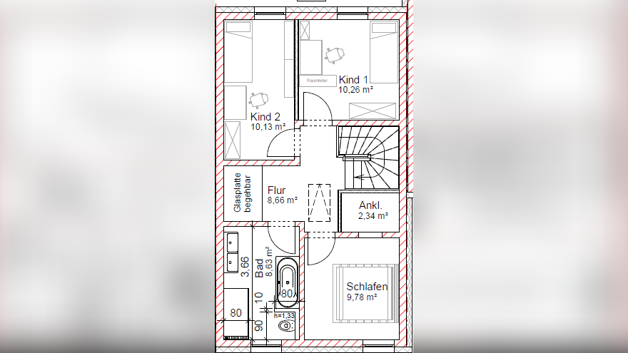
Objektbeschreibung
Entdecken Sie dieses moderne Familienhaus im beliebten Stadtfeld West, Magdeburg, das im Jahr 2026 erbaut wird. Mit einer großzügigen Fläche von 101 m² bietet dieses Haus 4 geräumige Zimmer, die ideal für Familien geeignet sind. Es verfügt über 2 Bäder und 2 WCs, die den Komfort und die Funktionalität des täglichen Lebens erhöhen.
Auch das Ausstattungspaket dieser Stadthäuser überzeugt (schlüsselfertig):
Grundstück (Größe variiert)
Wohnfläche 98 - 101 m²
KFW 40 klimafreundliches Wohngebäude
Luftwärmepumpe mit Fußbodenheizung EG, OG
PV-Anlage mit 10 Modulen ca. 4,5kWp und Akkuanlage mit 5 KW Speicher
Farbiger Außenputz, 2 farbig
Fenster außen anthrazit, innen weiß
Rollo´s elektr. anthrazit
Fensterbänke außen anthrazit, innen weiß
Eingangstür außen anthrazit innen weiß
Geschoßdecke filigraner Spannbeton
Massive Bauweise Poroton mit Dämmung
Betondachsteine Fa. Braas matt anthrazit
Simskasten anthrazit
Rohbaumass EG 3m / OG 2,75m
Bäder mit Fliesen
Ebenerdige Dusche mit Ablage
Stahlwangentreppe mit Holzstufen und Edelstahlgelände
Innentüren Weißlack glatt mit Drückergarnitur nur Klinke, Bäder mit WC-Rosettengarnitur
Großzügige Anzahl der Schalter und Steckdosen
Zuwegung zum Haus 1 x 3 m anthrazit gepflastert
Regenwasserentwässerung
Außenwasserhahn
Zuwegung zum Haus gepflastert 1 x 3 anthrazit
Betontreppe
Gegen faire Mehrpreise kann das Stadthaus auch bezugsfähig, inkl. Maler und Bodenbelagsarbeiten, sowie Terrassen und Stellplatz Pflasterung anthrazit und Mutterboden planiert erworben werden.
So funktioniert es
- Alle neuen Anzeigen matchen wir kostenlos mit Deinen Suchparametern.
- Passende Angebote senden wir Dir in einer E-Mail pro Tag.
- Du kannst auch verschiedene Suchen anlegen und Dich jederzeit abmelden. Mehr dazu
Wir haben soeben eine E-Mail mit Deinem Suchauftrag an Dich geschickt. – Klicke in dieser Mail auf den Bestätigungslink und schon geht's los. Prüfe ggf. auch Deinen Spamordner.
Es gab ein Problem beim Absenden Deiner E-Mail-Adresse. Bitte versuche es erneut.
WARNUNG: Bitte bestätige Deine E-Mail-Adresse, um regelmäßige Updates zu erhalten.