Objektdaten
Objektbeschreibung
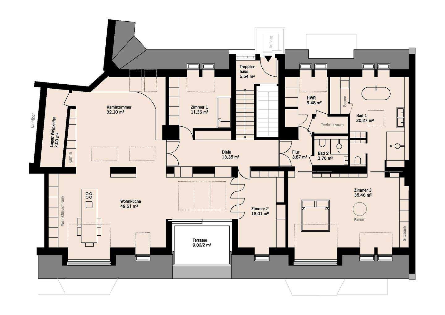
Provisionsfreies Angebot===================Im Angebot steht eine 2024 neu errichtete Dachgeschosshälfte inklusive individuellen Innenausbau auf einem sanierten Stuckaltbau. Mit spektalulärem, unverbaubaren Ausblick in den Tiergarten, auf Schloß Bellevue, Spree und Siegessäule. Ein neu errichteter Aufzug führt direkt in die Einheit.Der dargestellte Grundriss ist nur ein Beispiel für zahlreiche Varianten. Entscheiden Sie Grundriss, Ausstattung, Zimmerzahl, etc. Alle Medien liegen an, Baugenehmigung ist vorhanden.Für 1.500.000 Euro besteht die Möglichkeit, die Dachgeschosswohnung im unausgebauten Zustand zu erwerben. In diesem Fall übernimmt der Käufer selber den Ausbau.Der schlüsselfertige Innenausbau zum Endpreis der fertigen Wohnung für 2.499.000,- Euro ist ebenfalls möglich.Ähnliche Angebote
So funktioniert es
- Alle neuen Anzeigen matchen wir kostenlos mit Deinen Suchparametern.
- Passende Angebote senden wir Dir in einer E-Mail pro Tag.
- Du kannst auch verschiedene Suchen anlegen und Dich jederzeit abmelden. Mehr dazu




