Objektdaten
Objektbeschreibung
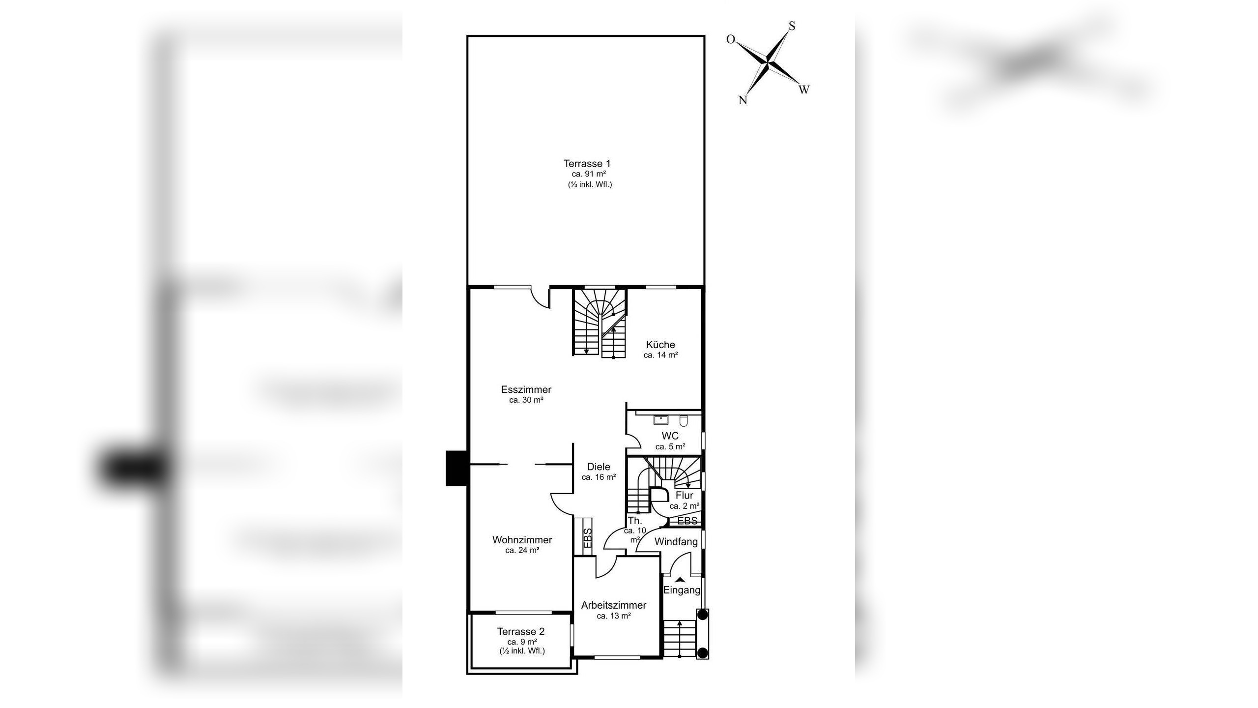
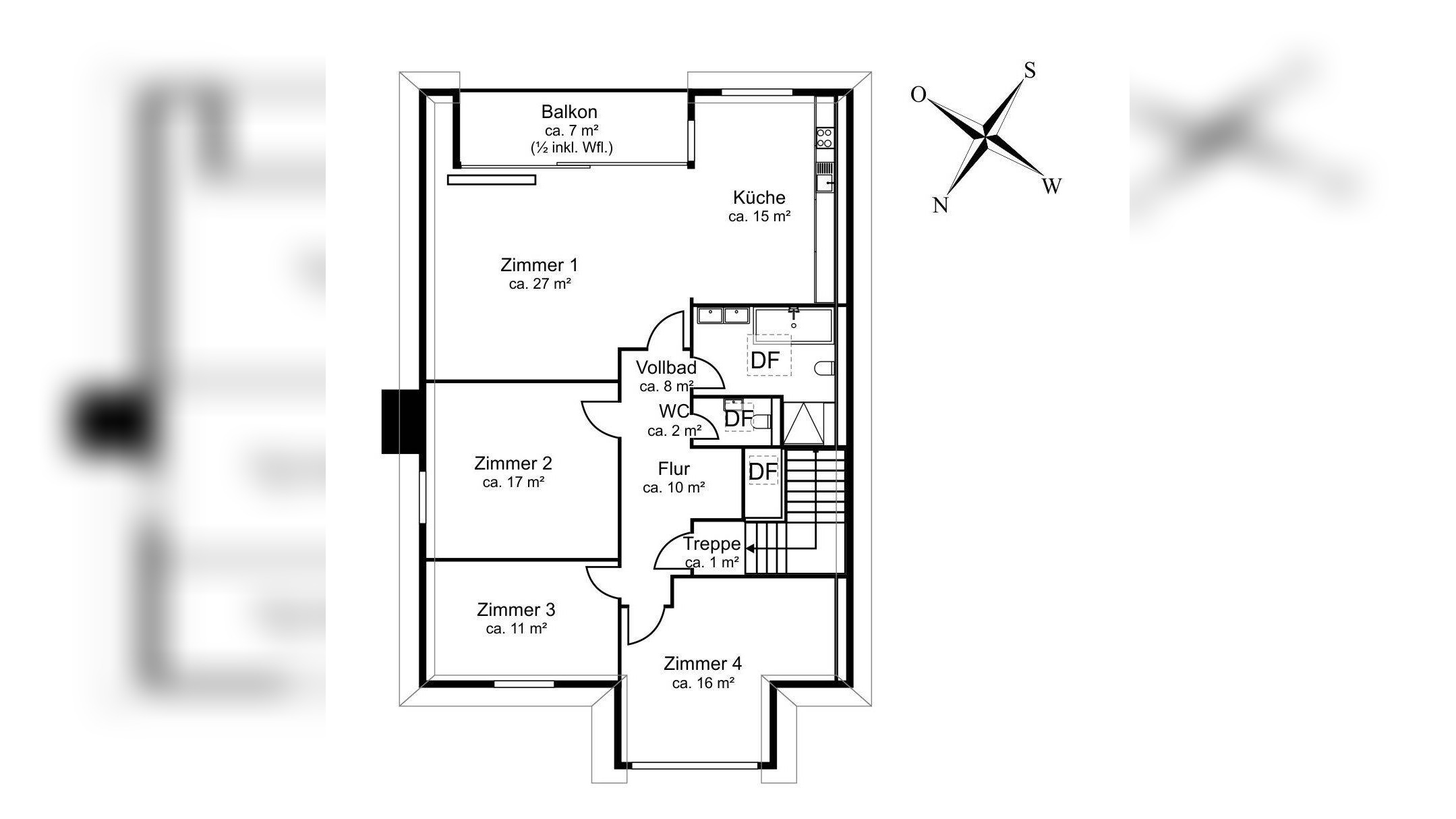
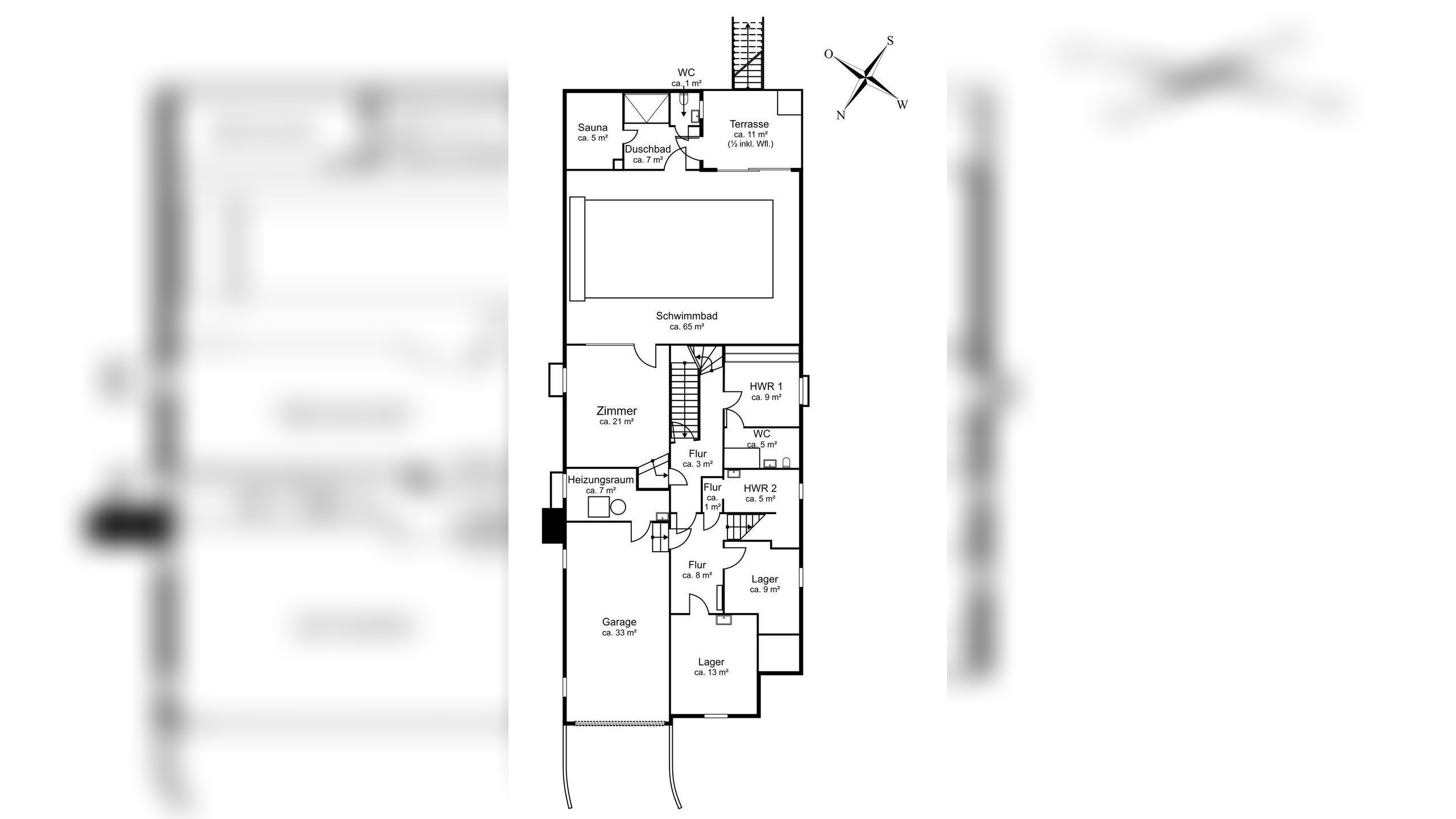
- Gefragte Lage im beliebten Hamburg-Alsterdorf, fußläufig zum Alsterlauf- Freistehende Stadtvilla mit sehr guten Lichtverhältnissen und großem Grundstück- Sehr schöne und gut erhaltene Stilelemente- Komplettsanierung aller Etagen inkl. neuer Elektrik, Wasserleitungen & Heizkörper- Offene und moderne Grundrissgestaltung - Glatt verputzte Wände- Kaminofen im Wohnbereich- Wellnessbereich mit Pool und SaunaHaben wir Ihr Interesse geweckt?Wir freuen uns auf Ihre Kontaktaufnahme.Ihr Engel & Völkers Team Hamburg Alster StadtvillenTel.: 040 - 468 63 120E-Mail: [email protected]: Henning Fix FotografieÄhnliche Angebote
So funktioniert es
- Alle neuen Anzeigen matchen wir kostenlos mit Deinen Suchparametern.
- Passende Angebote senden wir Dir in einer E-Mail pro Tag.
- Du kannst auch verschiedene Suchen anlegen und Dich jederzeit abmelden. Mehr dazu




