Objektdaten
Objektbeschreibung
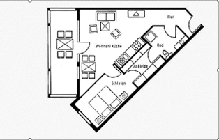
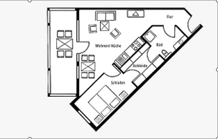
Dieses moderne Erdgeschoss-Apartment überzeugt mit einer sonnendurchfluteten Süd-Terrasse, die von morgens bis abends zum Verweilen einlädt und einen weiten Blick ins Grüne bietet. Ein besonderes Highlight ist die komfortable Ankleide mit Waschmaschine und Trockner, die sowohl vom Schlafzimmer als auch vom Bad aus zugänglich ist.Die Wohnung ist funktional geschnitten. Der Flur geht direkt in den großflächigen Wohn- und Essbereich über, von dem aus der Zugang zur großzügigen Terrasse erfolgt. Alle weiteren Räume erreichen Sie über den zentralen Flur. Das moderne Badezimmer liegt im Eingangsbereich der Wohnung und ist sowohl über den Flur als auch über die Ankleide erreichbar. Die Wohnfläche beträgt ca. 59m². Die Terrasse und der Wohnbereich sind nach Süden hin ausgerichtet.Ähnliche Angebote
So funktioniert es
- Alle neuen Anzeigen matchen wir kostenlos mit Deinen Suchparametern.
- Passende Angebote senden wir Dir in einer E-Mail pro Tag.
- Du kannst auch verschiedene Suchen anlegen und Dich jederzeit abmelden. Mehr dazu




