Objektdaten
Objektbeschreibung
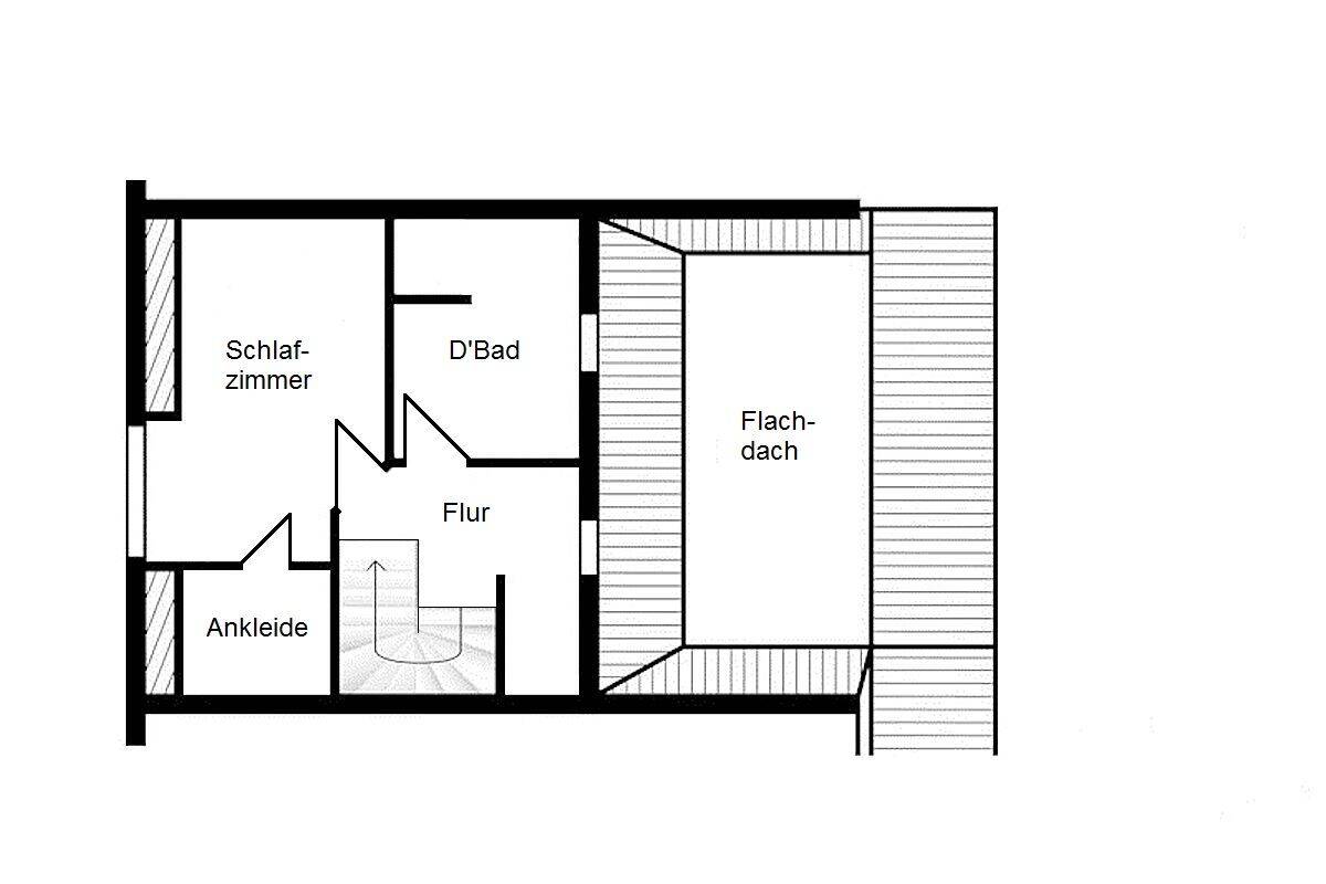
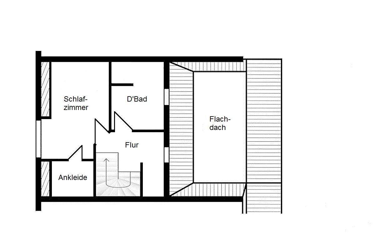
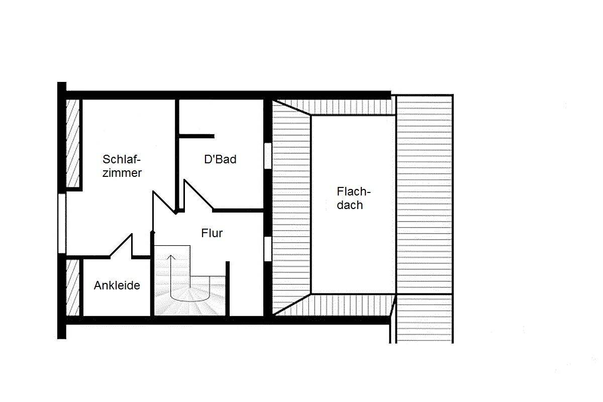
- exklusives Mittelhaus unter Reet mit eigenem Gartenanteil (rund 125 m² Gartenfläche)- baurechtlich vorteilhaft als Ferienwohnung genehmigt- im "Alten Museum" - ein stilvoller Friesenhof mit insgesamt sieben Wohneinheiten- großzügiges Wohnzimmer mit Kaminofen- ebenerdiges Schlafzimmer und Duschbad (breite Zimmertüren, weitestgehend barrierefrei)- zweites Schlafzimmer und Duschbad im Obergeschoss- ausgebauter Spitzboden als kleiner Ruheraum mit Wärmekabine- die Immobilie ist stilvoll und hochwertig - mit viel Liebe zum Detail - eingerichtet- der Verkauf erfolgt inklusive Inventar (ausgenommen einiger Kleinigkeiten)Ähnliche Angebote
So funktioniert es
- Alle neuen Anzeigen matchen wir kostenlos mit Deinen Suchparametern.
- Passende Angebote senden wir Dir in einer E-Mail pro Tag.
- Du kannst auch verschiedene Suchen anlegen und Dich jederzeit abmelden. Mehr dazu




