Objektdaten
Objektbeschreibung
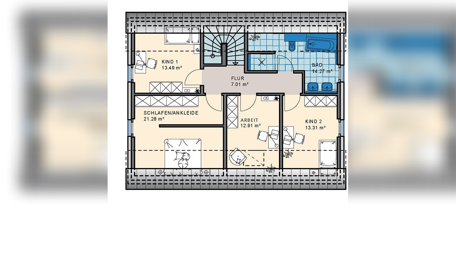
Objektbeschreibung Wir freuen uns, Ihnen ein ganz besonderes Neubauprojekt vorzustellen: Ein liebevoll geplantes Einfamilienhaus in einer der begehrtesten Lagen im Herzen von Dingolfing. Dieses Zuhause wird in solider, massiver Bauweise errichtet und bietet Ihnen und Ihrer Familie den perfekten Rückzugsort. Raumaufteilung Der durchdachte Grundriss sorgt für eine optimale Raumnutzung und ein harmonisches Wohngefühl. Im Erdgeschoss erwartet Sie ein einladender offener Wohn- und Essbereich, der mit einer modernen Küche inklusive Kücheninsel und einer praktischen Speisekammer ausgestattet ist. Hier können Sie unvergessliche Momente mit Ihren Liebsten verbringen. Ein weiteren Komfort bietet Ihnen das Büro welches auch als Gäste Zimmer verwendet werden kann. Ein Gäste-WC rundet das Erdgeschoss ab.Im Obergeschoss finden Sie zwei helle Kinderzimmer, die jeweils über ein eigenes Kinderbad verfügen – ideal für die kleinen Familienmitglieder! Eine separate Ankleide bietet zusätzlichen Stauraum und sorgt für Ordnung. Doch das Beste kommt jetzt: Für die Privatsphäre der Eltern ist ebenfalls bestens gesorgt. Ihr abgetrenntes Schlafzimmer ist mit einer integrierten Ankleide ausgestattet und verfügt über ein eigenes Bad mit Dusche und WC. So können Sie sich in Ihrem persönlichen Rückzugsort entspannen und wohlfühlen.So funktioniert es
- Alle neuen Anzeigen matchen wir kostenlos mit Deinen Suchparametern.
- Passende Angebote senden wir Dir in einer E-Mail pro Tag.
- Du kannst auch verschiedene Suchen anlegen und Dich jederzeit abmelden. Mehr dazu




