Objektdaten
Objektbeschreibung
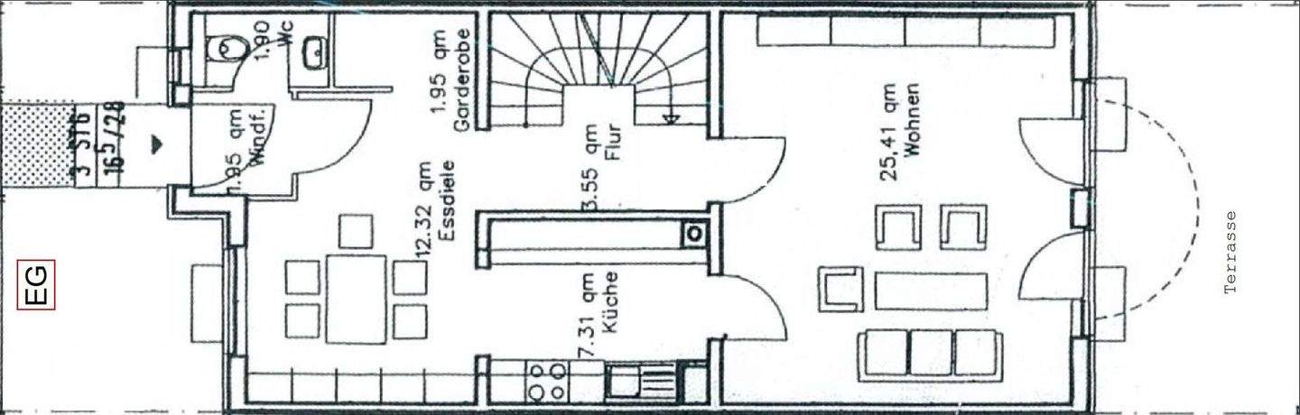
Das mittig liegende Reihenhaus befindet sich in der Straße Am Harzberg in 04654 Frohburg. Das Reihenhaus ist voll unterkellert. Einer der Räume kann als Partyraum genutzt werden. Das große, helle Wohnzimmer kann vom Flur und von der Küche aus betreten werden. Durch die Terrassentür gelangt man in den Garten. Das Gäste-WC befindet sich neben der Hauseingangstür im Erdgeschoss. Das großzügige Elternschlafzimmer und die beiden baugleichen Kinderzimmer, sowie das große Familienbadezimmer mit Dusche und Badewanne, befinden sich in der ersten Etage. In der zweiten Etage / Dachgeschoss befinden sich noch einmal zwei große Räume. Diese können als Gästezimmer oder weitere Kinderzimmer genutzt werden. Eines der Zimmer hat einen Wasser- und Herdanschluss. Ein kleineres Badezimmer mit Dusche ist ebenfalls im Dachgeschoss vorhanden.So funktioniert es
- Alle neuen Anzeigen matchen wir kostenlos mit Deinen Suchparametern.
- Passende Angebote senden wir Dir in einer E-Mail pro Tag.
- Du kannst auch verschiedene Suchen anlegen und Dich jederzeit abmelden. Mehr dazu



