Objektdaten
Objektbeschreibung
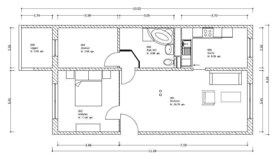
Diese vermietete, stilistische 2,5 Zimmer Eigentumswohnung im Stadtteil Friedrichshain steht zum Verkauf. Die Wohnung liegt im 2. Obergeschoss und hat ein großzügiges Wohnzimmer, welches Mittelpunkt der Wohnung hinsichtlich Eintritt und der sich anschließenden Zimmer ist. Die Küche verfügt über eine Einbauküche und ausreichend Platz für eine kleine Sitzgruppe. Das Schlafzimmer und das kleine Zimmer mit Austritt zur überdachten Loggia sind zum ruhigen und begrünten Innenhof des Hauses gelegen.Ähnliche Angebote
So funktioniert es
- Alle neuen Anzeigen matchen wir kostenlos mit Deinen Suchparametern.
- Passende Angebote senden wir Dir in einer E-Mail pro Tag.
- Du kannst auch verschiedene Suchen anlegen und Dich jederzeit abmelden. Mehr dazu




