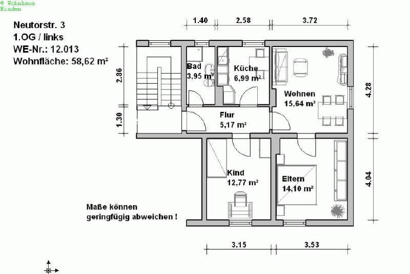
Objektdaten
Objektbeschreibung
Die Wohnung befindet sich im 1. Obergeschoss eines soliden Mehrfamilienhauses an der Neutorstraße. Die Wohnanlage liegt eingebettet in gepflegte Grünanlagen an einer ruhigen Nebenstraße und wurde in den 90er Jahren umfassend modernisiert.





