Objektdaten
Objektbeschreibung
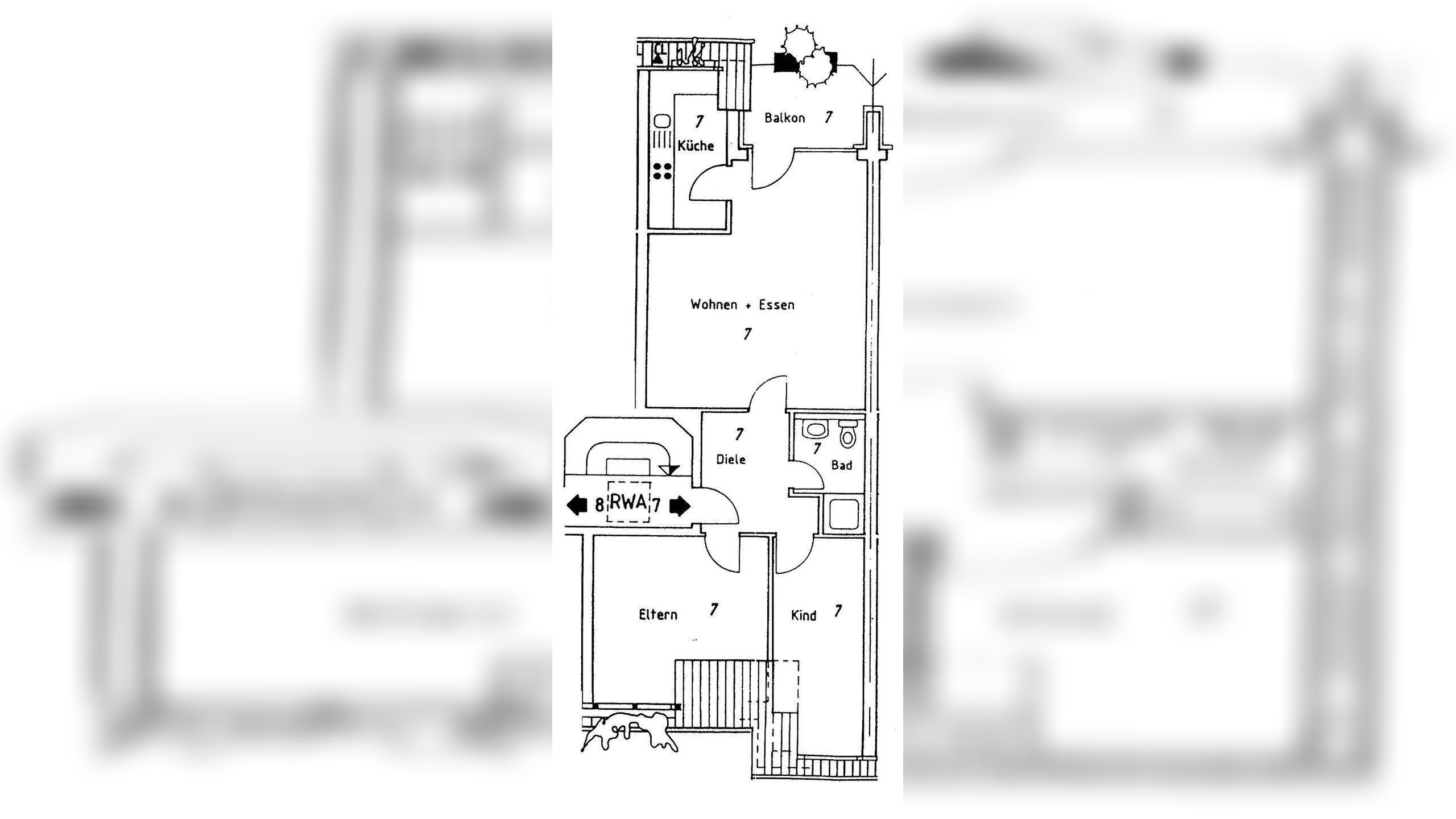
Frisch sanierter Wohnraum in gepflegtem Mehrfamilienhaus für dich und deine Familie.+ Gepflegtes Mehrfamilienhaus+ 77qm Wohnfläche+ 4 Schlaf/Wohnzimmer+ Frisch saniert (wird aktuell saniert)+ 1. Obergeschoss+ Einzugsdatum ab 01.11.2025





