Objektdaten
Objektbeschreibung
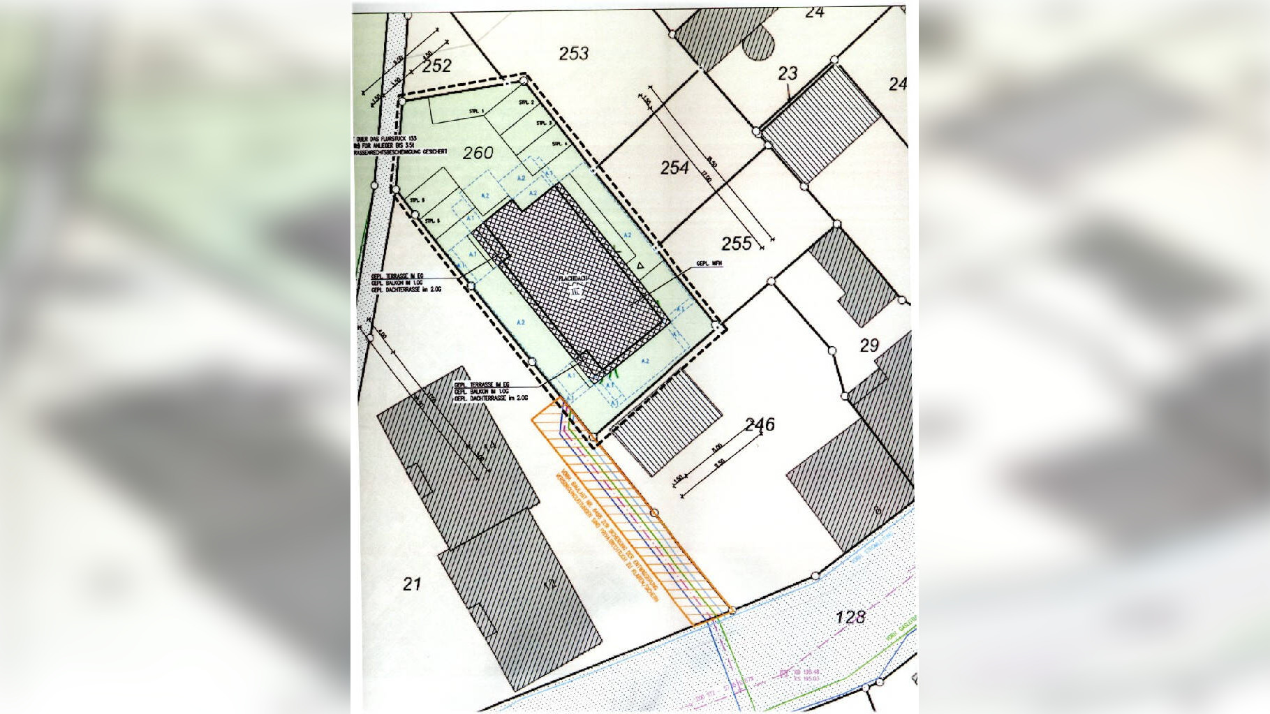
Es handelt sich hier um ein schön geschnittenes Baugrundstück für ein 1-6 Familienhaus in 3-geschossiger Bauweise. Erzielbare Wohnfläche ca.ca.ca.. 400 m².Es ist eine Baugenehmigung mit Plänen für ein 6-Familienhaus vorhanden.



