Objektdaten
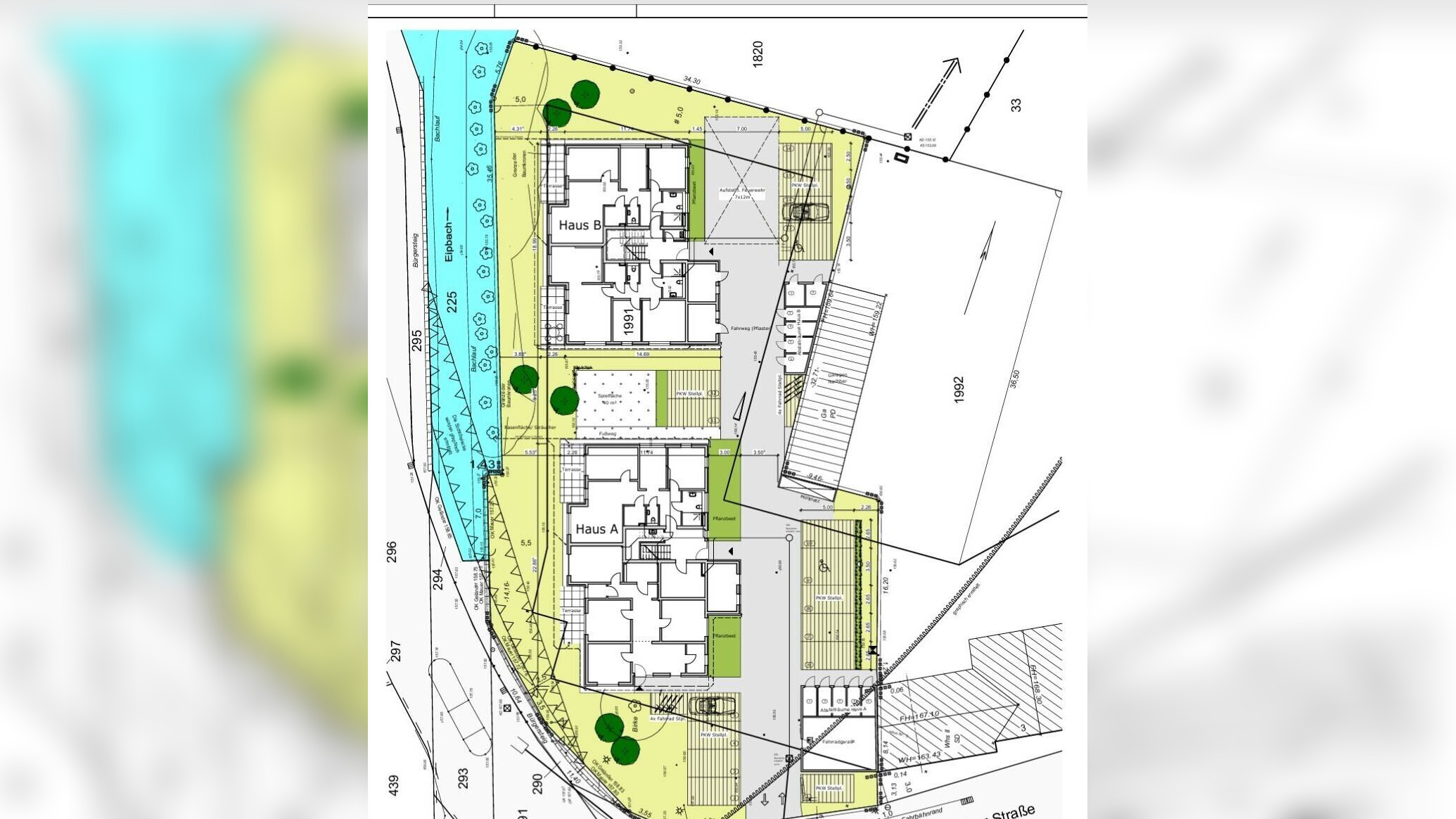
Objektbeschreibung
Das vollständige Exposé finden Sie auf unserer Webseite.www.ksk-immobilien.de/immobilien/planen-bauen-einziehen-verwirklichen-sie-ihren-wohntraum-138560/?utm_source=portale(bitte kopieren Sie den Link in die Adresszeile Ihres Browsers)




