Objektdaten
Objektbeschreibung
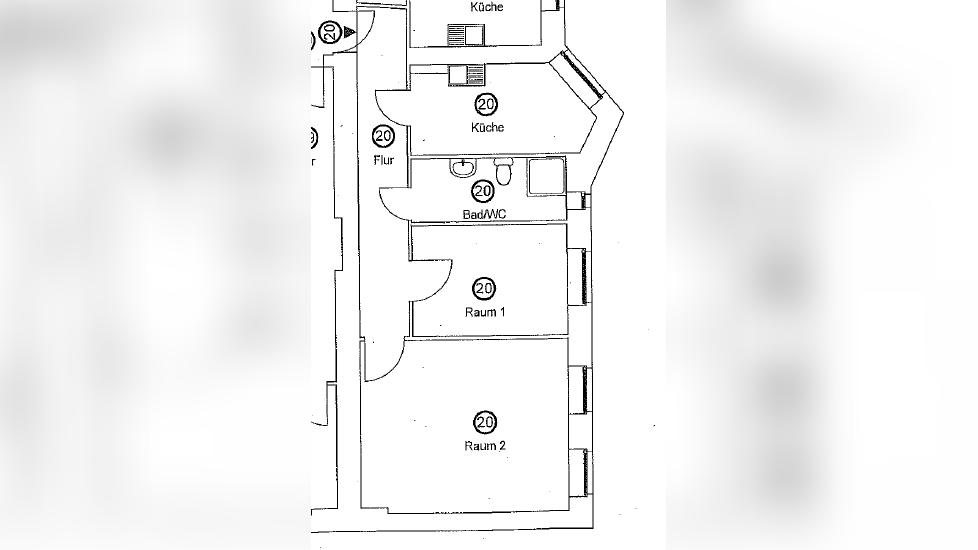
Zum Verkauf steht eine vermietete 2-Zimmer-Wohnung im beliebten Alt-Treptow. Die rund 53 m² große Wohnung befindet sich im 1. Obergeschoss des ruhigen Hinterhauses eines gepflegten Altbaus.Die Wohnung präsentiert sich in einem guten und gepflegten Zustand und überzeugt durch ihren klassischen Grundriss. Das Altbauhaus selbst ist ebenfalls sehr gepflegt und bietet durch die ruhige Lage im Hinterhaus ein angenehmes und harmonisches Wohnumfeld.Die Wohnung ist seit 2004 an ein sympathisches Paar vermietet. Die aktuelle Kaltmiete beträgt ca. 350 € monatlich, wobei im Rahmen der gesetzlichen Möglichkeiten eine Mieterhöhung von bis zu 15 % realisierbar ist.Diese Wohnung stellt eine solide und sichere Kapitalanlage in einer gefragten Lage Berlins dar.Ähnliche Angebote
So funktioniert es
- Alle neuen Anzeigen matchen wir kostenlos mit Deinen Suchparametern.
- Passende Angebote senden wir Dir in einer E-Mail pro Tag.
- Du kannst auch verschiedene Suchen anlegen und Dich jederzeit abmelden. Mehr dazu




