Objektdaten
Objektbeschreibung
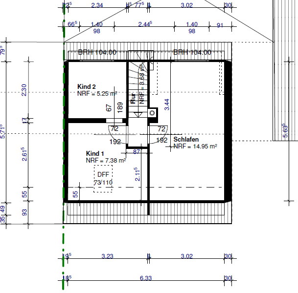
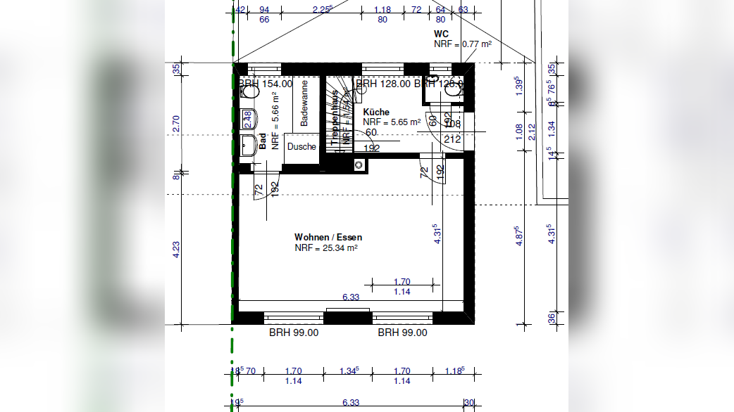
Das Haus wurde 1933 in Massivbauweise errichtet und 1970 modernisiert. Es ist wie folgt aufteilt:EG - Diele mit Gäste-WC und kleiner Pantryküche. Von dort gelangen Sie in den ca. 25 m² großen Wohnraum, hier grenzt das Bad (mit Dusche und Badewanne) an. OG - 1 Elternschlafzimmer, 2 Kinderzimmer als 1 davon ist ein DurchgangszimmerEin großer, ansprechender Gartenbereich schließt sich der sehr 35 m² überdachten Terrasse an.Bei der Ermittlung des Verkaufspreises nimmt der Grundstückswert aufgrund des Bodenrichtwertes von 360,00 € pro m² (Grundstück 627 m²) einen großen Anteil ein. Um eine moderne und einladende Wohnatmosphäre zu schaffen, bietet sich ein An- oder Umbau des Hauses an.Beispielhafte Gestaltungs- und Umsetzungsmöglichkeiten finden Sie in den beigefügten Fotos.Z.B. durch das Öffnen der Fassade zur Gartenseite hin kann die derzeitige Treppenkonstruktion mit hohem Steigungswinkel weiter in den Raum hinein versetzt werden – so entsteht nicht nur ein großzügigeres Raumgefühl, sondern auch eine angenehm begehbare Treppenführung. Das Gäste-WC ist verbreitert dargestellt, um hier ein Handwaschbecken zu integrieren.Anbaumöglichkeit:Mittels einer unbürokratischen Bauvoranfrage kann mit dem Bauamt die mögliche Umsetzung eines Anbaus abgestimmt werden. Es sind Musterplanungen und der Auszug aus dem Bebauungsplan der Anzeige beigefügt. Gerne können Sie mit unserem Planungsbüro Details besprechenTel. 02842 9032864 - Mobil / WhatsApp 0152 5249 5685 oder per Mail [email protected]


