Objektdaten
Objektbeschreibung
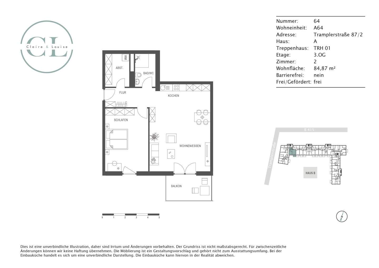
Auf 84 bis 90 Quadratmeter bilden Ess-, Koch- und Wohnbereich mit Zugang zum Balkon ein offenes Refugium für ansprchsvolle Singles oder Paare. Ergänzt wird es um ein geräumges Schlafzimmer, ein Duschbad und einen Abstellraum mit Waschmaschinen-Anschluss





