Objektdaten
Objektbeschreibung
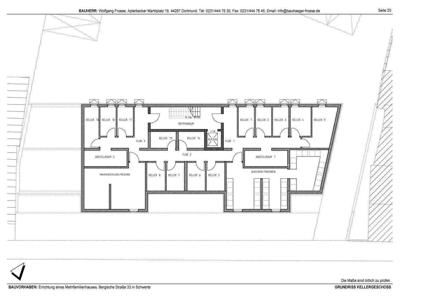
Hier errichten wir für Sie ein Mehrfamilienhaus mit 14 Wohneinheiten und Aufzug, in III-geschossiger, massiver Bauweise mit Satteldach und Keller. Sie erhalten ein Wärmedämmverbundsystem und Kunststofffenster mit 3-Scheiben-Verglasung.





