Kaufpreis 280.000 €
Zimmer 7
Größe 150 m²
24376 Kappeln
Objektdaten
Veröffentlicht am: 24. Oktober 2025
Baujahr: 1972
Energieausweis: Liegt bei der Besichtigung vor
Danke! Bitte bestätige Deine E-Mail-Adresse – wir haben Dir soeben eine Mail geschickt.
Es gab ein Problem beim Absenden. Bitte versuche es erneut.
Bitte bestätige Deine E-Mail-Adresse, um Updates zu erhalten.
Objektbeschreibung
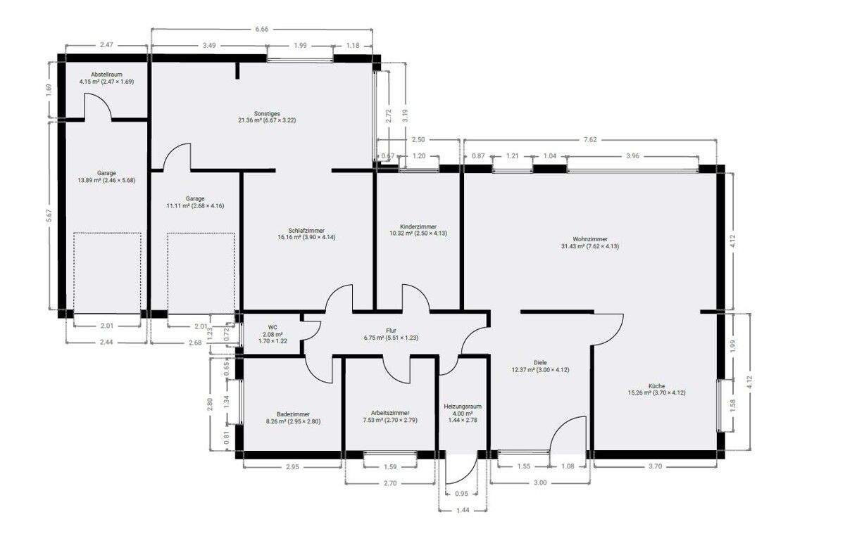
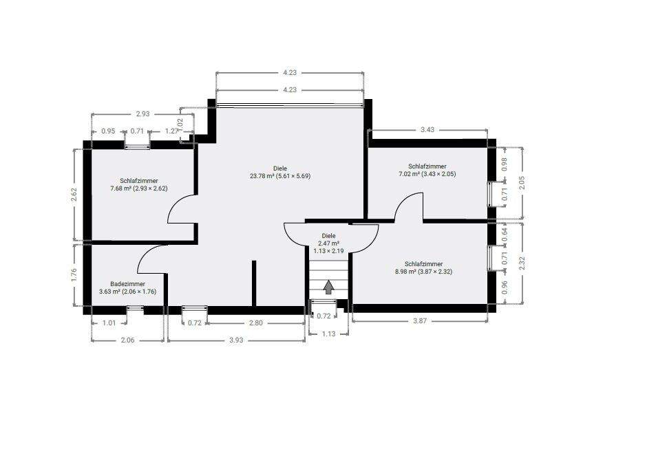
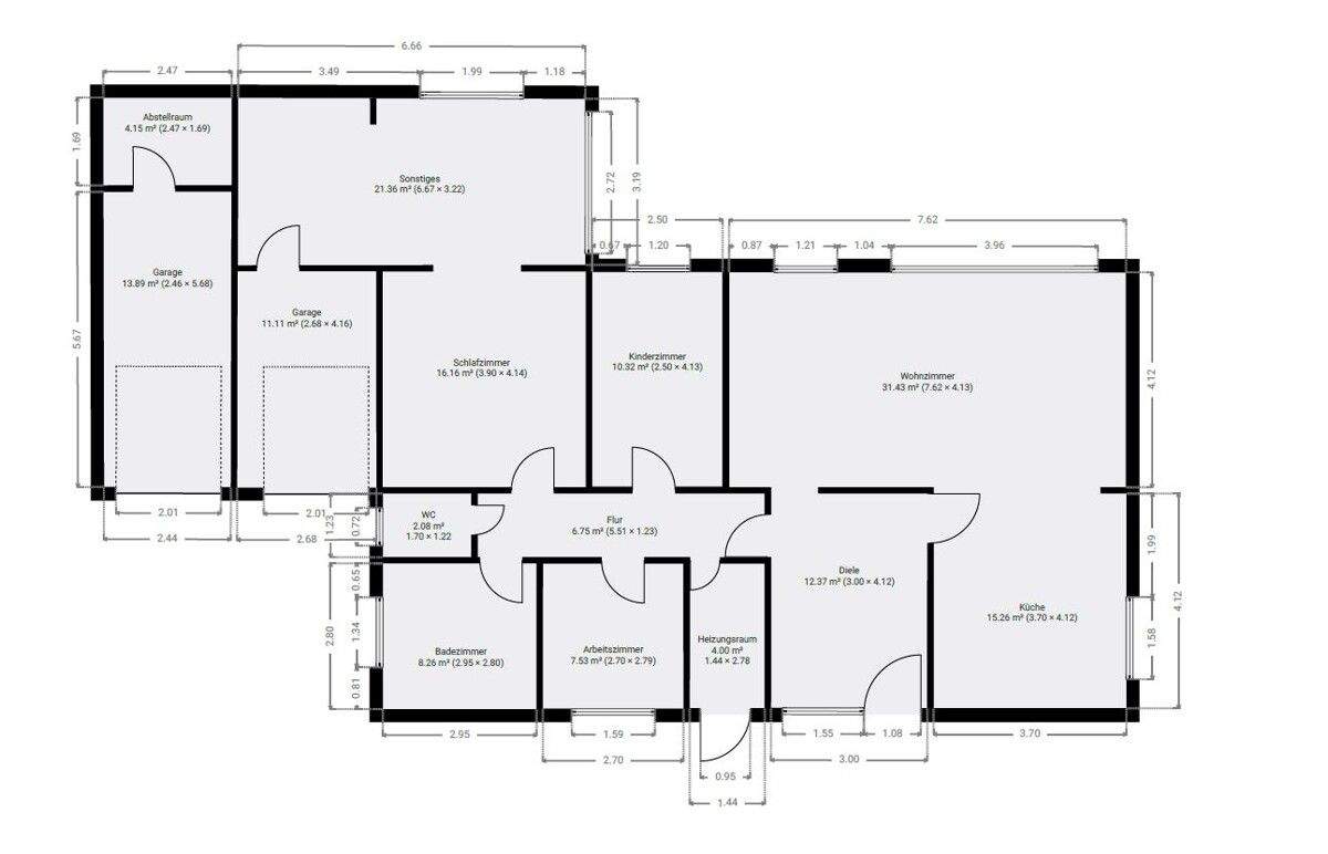
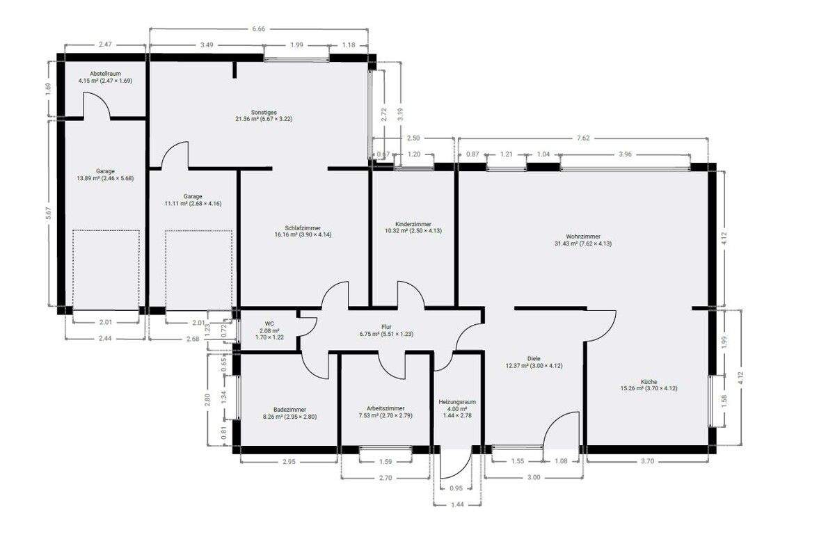
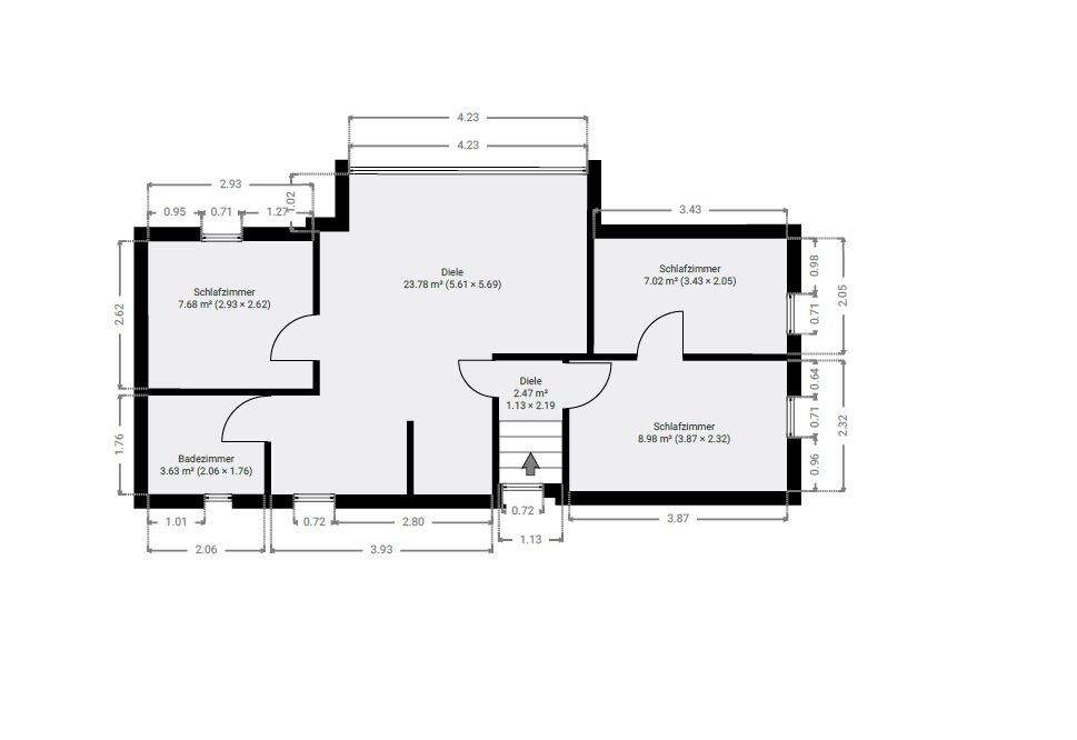
Beim Betreten des Hauses gelangen Sie in die freundliche Diele mit Platz für eine Garderobe. Von hier öffnet sich das Haus in verschiedene Bereiche, die funktional wie wohnlich überzeugen. Auf der rechten Seite befindet sich die Küche mit Raum für eine moderne Einbauküche und einen Essplatz. Direkt angrenzend liegt das großzügige Wohnzimmer mit breiter Fensterfront. Der helle, lichtdurchflutete Raum bietet vielfältige Gestaltungsmöglichkeiten und schafft eine angenehme Wohnatmosphäre.Zurück in der Diele führt ein Flur zu den privaten Wohnräumen. Hier erwarten Sie ein Kinderzimmer, ein Arbeitszimmer, der Heizungsraum sowie ein weiteres Schlafzimmer. Ergänzt wird dieser Bereich durch ein separates WC und ein Badezimmer mit Dusche. Ein besonderes Highlight ist der Anbau: Vom Schlafzimmer aus begehbar, eröffnet er vielseitige Nutzungsmöglichkeiten und bietet durch eine große Glasschiebetür direkten Zugang zur sonnigen Süd-Terrasse. Zusätzlich stehen hier Sauna, Dusche und ein angrenzender Abstellraum zur Verfügung - ideal für Wellness und Komfort.Über die Treppe im Eingangsbereich erreichen Sie das Obergeschoss. Hier empfängt Sie ein großzügiger Wohnbereich, der sich hervorragend mit einer offenen Wohnküche kombinieren lässt. Ein Schlafzimmer sowie ein Badezimmer mit WC und Badewanne sorgen für zusätzlichen Komfort. Auf der rechten Seite warten zwei weitere Schlafzimmer, die sich flexibel als Kinder-, Gäste- oder Arbeitszimmer nutzen lassen.Besonders attraktiv ist die Flexibilität des Hauses: Dank der klaren Trennung von Erd- und Obergeschoss kann es in zwei Wohneinheiten geteilt werden - ideal für Mehrgenerationenwohnen oder zur Vermietung. Alternativ eignet sich das Obergeschoss perfekt als Gästebereich, der Besuchern viel Privatsphäre bietet und dennoch harmonisch mit dem Gesamtgebäude verbunden ist.
So funktioniert es
- Alle neuen Anzeigen matchen wir kostenlos mit Deinen Suchparametern.
- Passende Angebote senden wir Dir in einer E-Mail pro Tag.
- Du kannst auch verschiedene Suchen anlegen und Dich jederzeit abmelden. Mehr dazu
Wir haben soeben eine E-Mail mit Deinem Suchauftrag an Dich geschickt. – Klicke in dieser Mail auf den Bestätigungslink und schon geht's los. Prüfe ggf. auch Deinen Spamordner.
Es gab ein Problem beim Absenden Deiner E-Mail-Adresse. Bitte versuche es erneut.
WARNUNG: Bitte bestätige Deine E-Mail-Adresse, um regelmäßige Updates zu erhalten.