Objektdaten
Objektbeschreibung
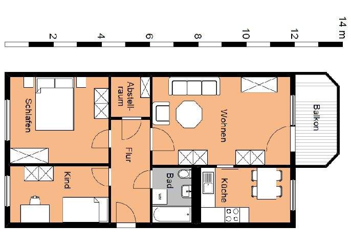
Diese geräumige 3-Raum-Wohnung mit lichtdurchflutetem Wohnzimmer und großem Balkon wartet auf nur auf Sie. Das geflieste Bad ist mit einer Badewanne ausgestattet. Alle Räume sind Raufaser weiß tapeziert. Der optimale Grundriss bietet genügend Stellmöglichkeiten für Ihre Möbel.





