Objektdaten
Objektbeschreibung
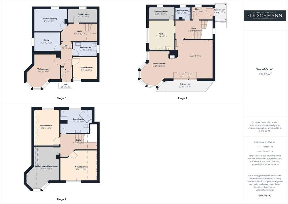
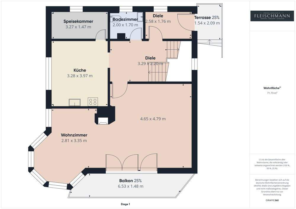
In der idyllischen Stadt Suhl wartet ein Ort, an dem Träume Wurzeln schlagen dürfen - ein liebevoll gepflegtes Einfamilienhaus, das mit Charme, Stil und Herz überzeugt. Auf einem großzügigen Grundstück von 1.612 m² gelegen, öffnet sich hier ein Zuhause, das Raum zum Leben, Lachen und Durchatmen schenkt.Mit einer Wohnfläche von 205 m² auf drei Etagen bietet dieses Haus Platz für das, was wirklich zählt - gemeinsame Momente, Geborgenheit und das Gefühl, angekommen zu sein. Sechs helle Zimmer, darunter vier einladende Schlafzimmer, schaffen eine Atmosphäre, in der man sich sofort wohlfühlt. Zwei modern ausgestattete Badezimmer mit Wanne und Dusche schenken Komfort und kleine Wellnessmomente im Alltag.Die lichtdurchflutete Küche mit hochwertiger Einbauküche ist das Herzstück des Hauses - ein Ort, an dem der Duft von frischem Kaffee den Morgen begrüßt und abends gute Gespräche bei einem Glas Wein entstehen.Ein besonderes Highlight ist der südlich ausgerichtete Balkon, auf dem die Sonne ihr schönstes Spiel zeigt. Hier können Sie die Stille des Gartens genießen, den Blick über die Bäume schweifen lassen und den Alltag für einen Moment vergessen.Im Kellergeschoss befindet sich zudem eine Einliegerwohnung mit zwei Räumen - ideal für Gäste, kreative Projekte oder als kleines Refugium für sich selbst.Dieses Anwesen ist nach Vereinbarung verfügbar und lädt Sie ein, Teil einer charmanten Wohngegend von Suhl zu werden. Wenn Sie ein Zuhause suchen, das nicht nur überzeugt, sondern berührt - dann lassen Sie sich von diesem Haus verzaubern.Einen virtuellen Rundgang und weitere Informationen finden Sie auf unserer Homepage www.hauptmakler.de.Gerne stehen wir Ihnen auch persönlich zur Verfügung - per E-Mail an [email protected] oder telefonisch unter +49 3681 723981.

