Objektdaten
Objektbeschreibung
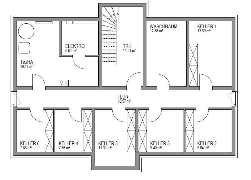
Im Ortsteil Wutzlhofen entsteht ein Mehrfamilienhaus mit attraktiven 2- bis 3-Zimmerwohnungen von 43 m² bis 85 m² Wohnfläche.Das Haus wird in moderner Architektur als KfW-Effizienzhaus 40 NH errichtet.Das Objekt überzeugt durch die hochwertige Ausstattung, eine ökologisch und werthaltige Bauweise und initiativer Ziegel-Massivbauweise.Die Wohnung teilt sich in ein Schlafzimmer, ein Kinderzimmer, ein Badezimmer und einen Wohn-Essbereich mit Küche auf. Von hier aus gelangen Sie auf die ca. 5,40 m² große Terrasse mit Zugang zum eigenen Garten. Zu der Wohnung gehört ein Kellerabteil.Die großzügigen Wohnräume verfügen über eine moderne Sanitär- und Elektroausstattung und sind in allen Stockwerken mit Fußbodenheizung versehen.Zur Wohnung gehört ein Carport-Stellplatz für 18.000,-- €.Der Kaufpreis setzt sich wie folgt zusammen:Wohnung € 568.200.--Außenstellplatz € 18.000,--Gesamtkaufpreis € 586.200,--Ähnliche Angebote
So funktioniert es
- Alle neuen Anzeigen matchen wir kostenlos mit Deinen Suchparametern.
- Passende Angebote senden wir Dir in einer E-Mail pro Tag.
- Du kannst auch verschiedene Suchen anlegen und Dich jederzeit abmelden. Mehr dazu




