Kaufpreis 530.000 €
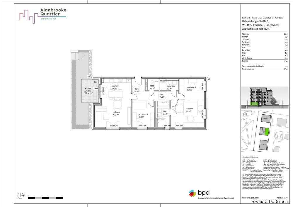
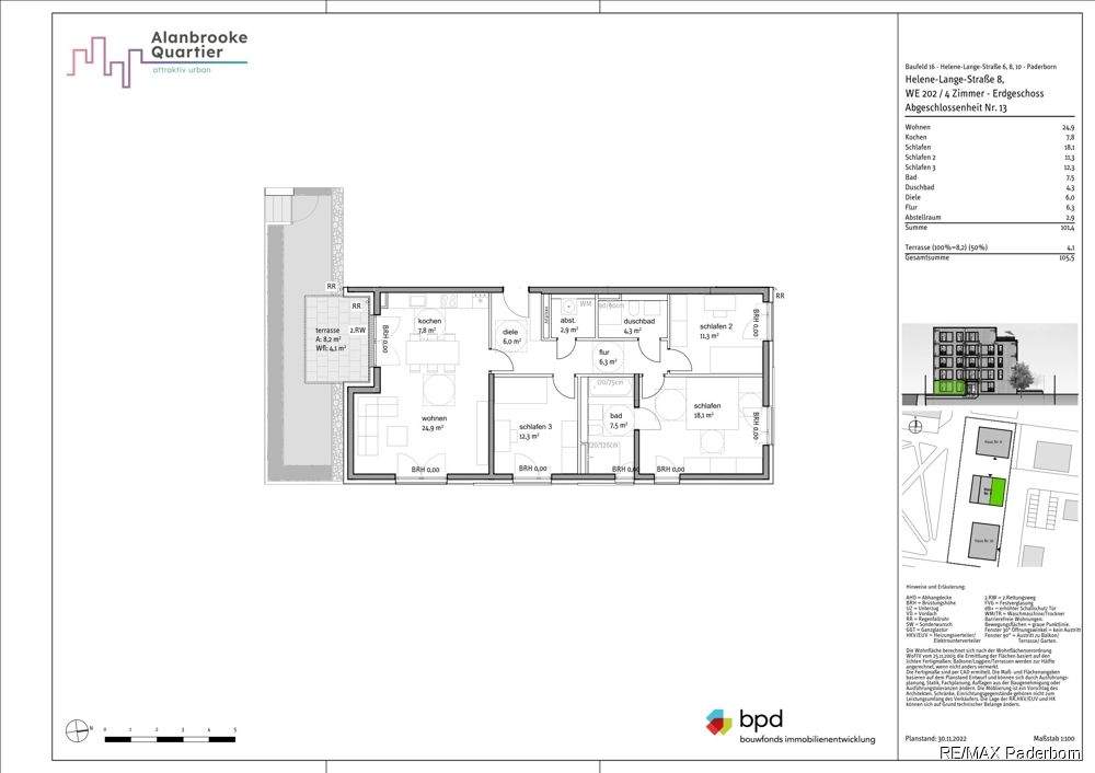
Zimmer 4
Größe 105 m²
33102 Paderborn
Objektdaten
Veröffentlicht am: 27. Oktober 2025
Energieausweis: Liegt bei der Besichtigung vor
Danke! Bitte bestätige Deine E-Mail-Adresse – wir haben Dir soeben eine Mail geschickt.
Es gab ein Problem beim Absenden. Bitte versuche es erneut.
Bitte bestätige Deine E-Mail-Adresse, um Updates zu erhalten.
Objektbeschreibung
*WEITERE NEUBAUWOHNUNGEN IN UNTERSCHIEDLICHEN GRÖßEN ZUR VERFÜGUNG*Neubau einer modernen und soliden Eigentumswohnung in einem Mehrfamilienwohnhaus KfW 55Diese topmoderne und barrierefreie Wohnoase erfüllt alle Ansprüche an ein zeitgemäßes und zukunftorientiertes Wohnen: Durchdacht geschnitten erwartet Sie viel Raum für die Verwirklichung individueller Wohnträume.Diese gemütliche Wohnung im Erdgeschoss verfügt über insgesamt 4 Wohnräume mit einer Wohnfläche von ca. 105,50 m². Sie verteilt sich auf ein geräumiges Wohn- und Esszimmer mit einer offenen Küche, zwei Badezimmer, drei Schlafzimmer sowie einen Hauswirtschafts- & Abstellraum.Genießen Sie auf der schönen Terrasse ungestört Ihren Feierabend und lassen Sie bei Sonnenschein Ihre Seele baumeln.Ein eigener Kellerraum sowie ein großzügiger Fahrradkeller sind hier nur selbstverständlich!Das Objekt wird "Schlüsselfertig" übergeben. Parkettböden, individuelle Badgestaltungen sowie alle Malerarbeiten runden dieses Angebot ab!Die grundsolide Bauweise spart auf Dauer Kosten und erhält den Wert der Immobilie. Sie sorgt zudem für niedrige Betriebskosten und ein angenehmes Raumklima.Für diese Wohnung steht Ihnen ein PKW-Tiefgaragenstellplatz zur Verfügung. Dieser wird für zusätzlich 25.000,- € erworben.Die neuen Lebensräume in dieser Immobilie nach eigenem Stil zum Leben erwecken, das bringt Wohlbefinden und weckt die Freude auf Zuhause!
So funktioniert es
- Alle neuen Anzeigen matchen wir kostenlos mit Deinen Suchparametern.
- Passende Angebote senden wir Dir in einer E-Mail pro Tag.
- Du kannst auch verschiedene Suchen anlegen und Dich jederzeit abmelden. Mehr dazu
Wir haben soeben eine E-Mail mit Deinem Suchauftrag an Dich geschickt. – Klicke in dieser Mail auf den Bestätigungslink und schon geht's los. Prüfe ggf. auch Deinen Spamordner.
Es gab ein Problem beim Absenden Deiner E-Mail-Adresse. Bitte versuche es erneut.
WARNUNG: Bitte bestätige Deine E-Mail-Adresse, um regelmäßige Updates zu erhalten.