Objektdaten
Objektbeschreibung
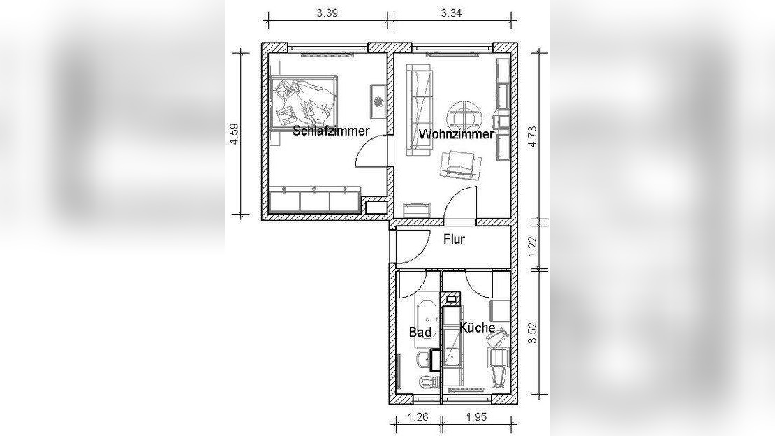
Die Wohnungen mit Größen zwischen 31 m²und 73 m² verfügen teils über einen Balkon. Alle Küchen und Bäder sind mit Fenstern ausgestattet. Die in den 60er und 70er Jahren erbauten Wohngebäude wurden 1994 umfassend modernisiert und weisen einen guten Sanierungsstand auf.





