Objektdaten
Objektbeschreibung
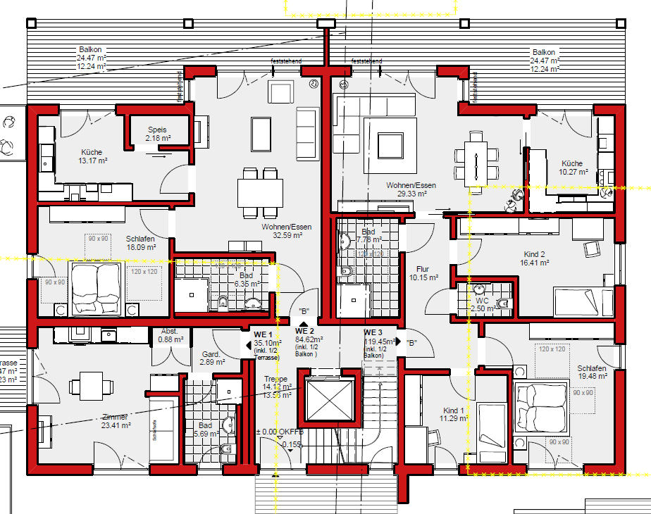
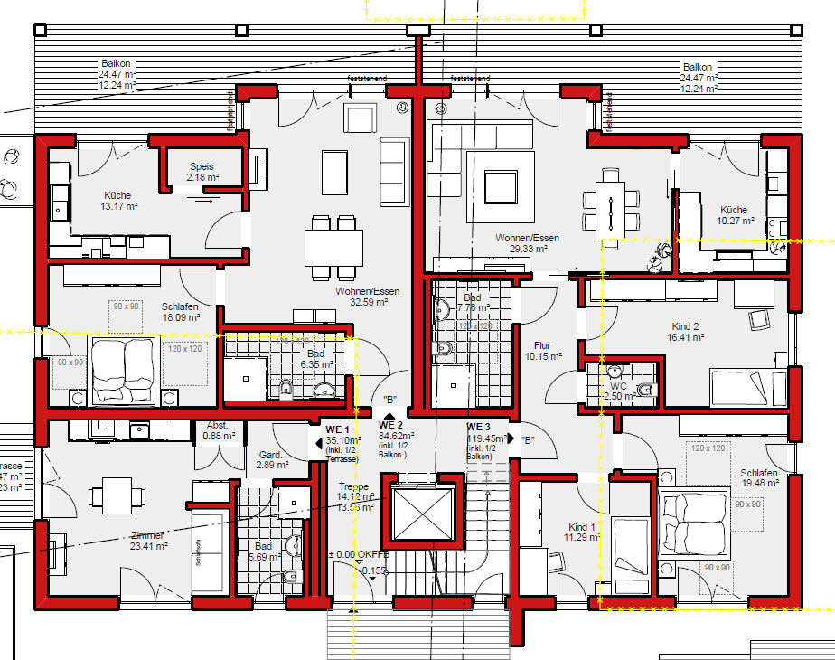
Objektbeschreibung Wundervoll geschnittene 1,5 Zimmerwohnung mit abgeschlossenem Wohnen- Essen- Kochen- Bereich, direkt im Herzen von Kriftel!Es handelt sich um Wohnung 4 im 1ten OG - siehe in den Grundrissen.Ein Parkplatz kann optional mit erworben werden. Barrierefrei mit Aufzug!Es stehen aktuell auch noch weitere Wohnungen zur Verfügung, siehe Broschüre im PDF Anhang. Raumaufteilung Moderne Raumaufteilung mit großem kleinem Balkon siehe im Bild: GrundrissDie Wohnung ist sehr hochwertig mit FBH und ist komplett schlüsselfertig ausgestattet.Heizung ist eine moderne, zukunftsorientierte Wärmepumpe.So funktioniert es
- Alle neuen Anzeigen matchen wir kostenlos mit Deinen Suchparametern.
- Passende Angebote senden wir Dir in einer E-Mail pro Tag.
- Du kannst auch verschiedene Suchen anlegen und Dich jederzeit abmelden. Mehr dazu




