Objektdaten
Objektbeschreibung
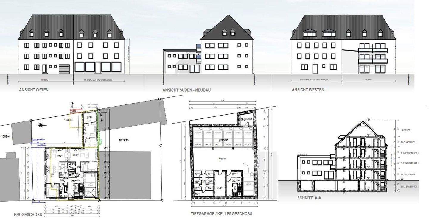
Angebot im ALLEINAUFTRAG !Bauträgergrundstück mit Altbestand (leerstehend) im Südosten von München für 2 Baukörper (Eigentumswohnanlage oder zwei 3-Spänner). Baurecht: Nach § 34 BauGB (umliegende Bebauung). Nach aktueller Baurechtsvorprüfung unseres Architekten können 2 Baukörper (E+1+D) mit gesamt ca. 700 m² Wohnfläche erstellt werden.Kaufpreis: Euro 2,5 Mio. ! Ein Einzelverkauf der beiden Grundstücke wäre ebenfalls möglich ! Gerne lassen wir Ihnen ein ausführliches Exposé zukommen. Ihr Ansprechpartner für den Verkauf ist unser Geschäftsführer Herr Dipl.-Kfm. Rudi E. Schwarz, Telefon 089 / 127 129 50 oder [email protected]




