Kaufpreis 99.000 €
Zimmer 7
39387 Oschersleben (Bode)
Größe 177 m2
Objektdaten
Veröffentlicht am: 7. November 2025
Baujahr: 1928
Energieausweis: Liegt bei der Besichtigung vor
Danke! Bitte bestätige Deine E-Mail-Adresse – wir haben Dir soeben eine Mail geschickt.
Es gab ein Problem beim Absenden. Bitte versuche es erneut.
Bitte bestätige Deine E-Mail-Adresse, um Updates zu erhalten.
Objektbeschreibung
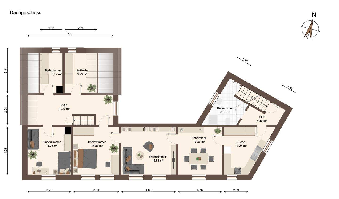
Herzlich willkommen in diesem großzügigen Mehrfamilienhaus mit zwei Wohneinheiten, großem Garten und vermietbarer Gewerbefläche! Die Immobilie befindet sich auf einem ca. 925 m² großen Grundstück und bietet ca. 177,26 m² Wohnfläche sowie ca. 313,98 m² Nutzfläche. Eine separate Gewerbeeinheit mit eigenem Zugang und ca. 57,97 m² eröffnet Käufern die Möglichkeit zur Vermietung oder Eigennutzung im kleinen Gewerbebereich. Im Erdgeschoss liegt eine abgeschlossene 3-Raum-Wohnung mit Wohnküche, Schlafzimmer, Kinderzimmer, Bad und Flur. Direkt angrenzend, mit Zugang vom Hof, befindet sich die Gewerbefläche mit Vorraum, WC, Lager- und Arbeitsbereich. Weitere Nutzräume wie Heizraum, Werkstatt, Waschküche und Abstellflächen ergänzen diese Ebene.Das Dachgeschoss beherbergt eine zweite Wohneinheit mit vier Zimmern, Küche, zwei Tageslichtbädern und zwei Fluren. Die Räume sind hell, gut geschnitten und flexibel nutzbar - ideal für Familien oder als Mehrgenerationen-Lösung.Das Haus wurde laufend gepflegt: 1980 Fassade und Elektrik, 1990 Bad im OG, 1993 Fenster und Heizung, 2000 Bad im EG, 2005 Dachbekleidung. Der Außenbereich bietet ein Gartenhaus, Stallung, Geräteschuppen, Garage, Stellplatz sowie einen Brunnen. Ein Teilkeller sorgt für zusätzlichen Stauraum. Diese Immobilie verbindet Wohnen, Arbeiten und Vermietung - perfekt für Menschen mit Platzbedarf und Ideen. Übrigens, ein 360° Rundgang der Immobilie wäre vorab möglich.Überzeugen Sie sich selbst, ob dieses tolle Objekt Ihr neues Zuhause sein kann und vereinbaren Sie noch heute einen Termin mit uns, um Ihnen die Immobilie ausführlich zu präsentieren. Wir freuen uns auf Ihren Anruf!
So funktioniert es
- Alle neuen Anzeigen matchen wir kostenlos mit Deinen Suchparametern.
- Passende Angebote senden wir Dir in einer E-Mail pro Tag.
- Du kannst auch verschiedene Suchen anlegen und Dich jederzeit abmelden. Mehr dazu
Wir haben soeben eine E-Mail mit Deinem Suchauftrag an Dich geschickt. – Klicke in dieser Mail auf den Bestätigungslink und schon geht's los. Prüfe ggf. auch Deinen Spamordner.
Es gab ein Problem beim Absenden Deiner E-Mail-Adresse. Bitte versuche es erneut.
WARNUNG: Bitte bestätige Deine E-Mail-Adresse, um regelmäßige Updates zu erhalten.