Objektdaten
Objektbeschreibung
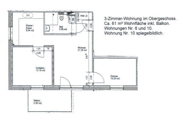
Die Wohnung verfügt über ein Wohnzimmer, ein Schlafzimmer und ein Arbeitszimmer. Ein Keller und ein Abstellraum sind vorhanden.Ähnliche Angebote
So funktioniert es
- Alle neuen Anzeigen matchen wir kostenlos mit Deinen Suchparametern.
- Passende Angebote senden wir Dir in einer E-Mail pro Tag.
- Du kannst auch verschiedene Suchen anlegen und Dich jederzeit abmelden. Mehr dazu





