Objektdaten
Objektbeschreibung
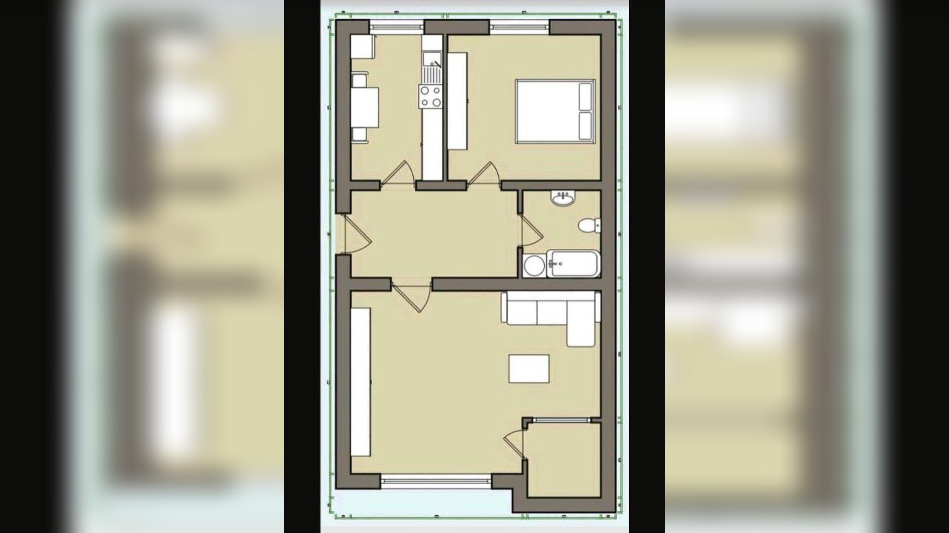
Kapitalanlage in gepflegtem Mehrfamilienhaus - provisionsfrei! Objektbeschreibung: Zum Verkauf steht eine gut gepflegte, vermietete 2-Zimmer-Wohnung im 3. Obergeschoss eines Mehrfamilienhauses in Altdorf bei Landshut. Die ca. 60 m² große Wohnung überzeugt durch einen durchdachten Grundriss, einen sonnigen Balkon und eine solide Bausubstanz. Das Gebäude stammt aus dem Jahr 1974 und wurde zuletzt im Zeitraum 2014–2015 saniert. Die Wohnung befindet sich in einem guten Zustand und ist derzeit zuverlässig vermietet – ideal auch für Kapitalanleger! Ausstattung: - Wohnfläche: ca. 60 m² - 2 Zimmer (Wohnzimmer, Schlafzimmer) - Balkon mit Blick ins Grüne - Badezimmer mit Badewanne - Separater Kellerraum - Stellplatz (außen) - Wesentlicher Energieträger: Strom Wirtschaftliche Eckdaten: - Kaltmiete: 404 € / Monat - Langfristige Vermietung mit stabilem Einkommen Besonderheiten: - Ruhige und zentrale Lage in Altdorf - Gute Anbindung an Landshut und Umgebung Rechtliches: - Die Wohnung ist vermietet (genaue Mietdaten auf Anfrage) - Grundbuchauszug und Aufteilungsplan werden nachgereicht - Energieausweis liegt vor und kann bei Besichtigung eingesehen werden Sonstiges: Bitte beachten Sie, dass es sich um ein Verkaufsangebot von einer vermieteten Wohnung handelt. Besichtigungen sind nach vorheriger Abstimmung möglich. Bei Interesse senden Sie uns bitte eine Nachricht mit Ihren vollständigen Kontaktdaten. Balkon, Keller, Duschbad, Einbauküche, Laminat, Fliesenohne-makler (OM) ist weder Anbieter noch Vermittler der Immobilie. OM betreibt eine Plattform für Immobilieneigentümer, die unter anderem die gleichzeitige Veröffentlichung einzelner Inserate auf mehreren Immobilienportalen ermöglicht. Die Inhalte dieser Inserate werden ausschließlich von Dritten verantwortet. Für die Richtigkeit, Vollständigkeit oder Rechtmäßigkeit der Angaben übernimmt OM keine Haftung. Hinweise auf mögliche Rechtsverstöße können jederzeit gemeldet werden und werden nach Prüfung umgehend bearbeitet.
So funktioniert es
- Alle neuen Anzeigen matchen wir kostenlos mit Deinen Suchparametern.
- Passende Angebote senden wir Dir in einer E-Mail pro Tag.
- Du kannst auch verschiedene Suchen anlegen und Dich jederzeit abmelden. Mehr dazu


