Kaufpreis 545.000 €
Zimmer 10
Größe 287 m²
27474 Cuxhaven
Objektdaten
Veröffentlicht am: 17. November 2025
Baujahr: 1969
Energieausweis: Liegt bei der Besichtigung vor
Danke! Bitte bestätige Deine E-Mail-Adresse – wir haben Dir soeben eine Mail geschickt.
Es gab ein Problem beim Absenden. Bitte versuche es erneut.
Bitte bestätige Deine E-Mail-Adresse, um Updates zu erhalten.
Objektbeschreibung
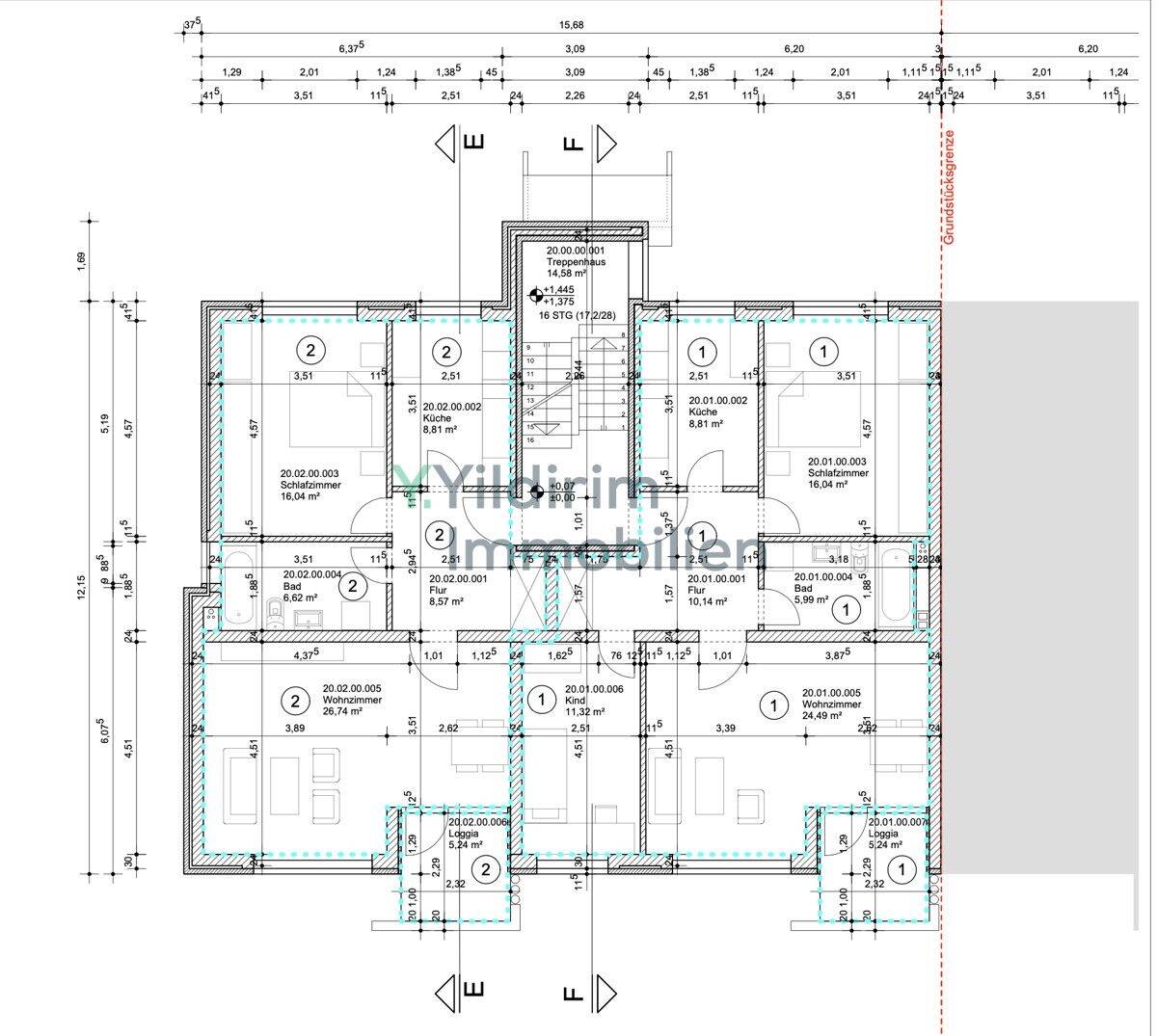
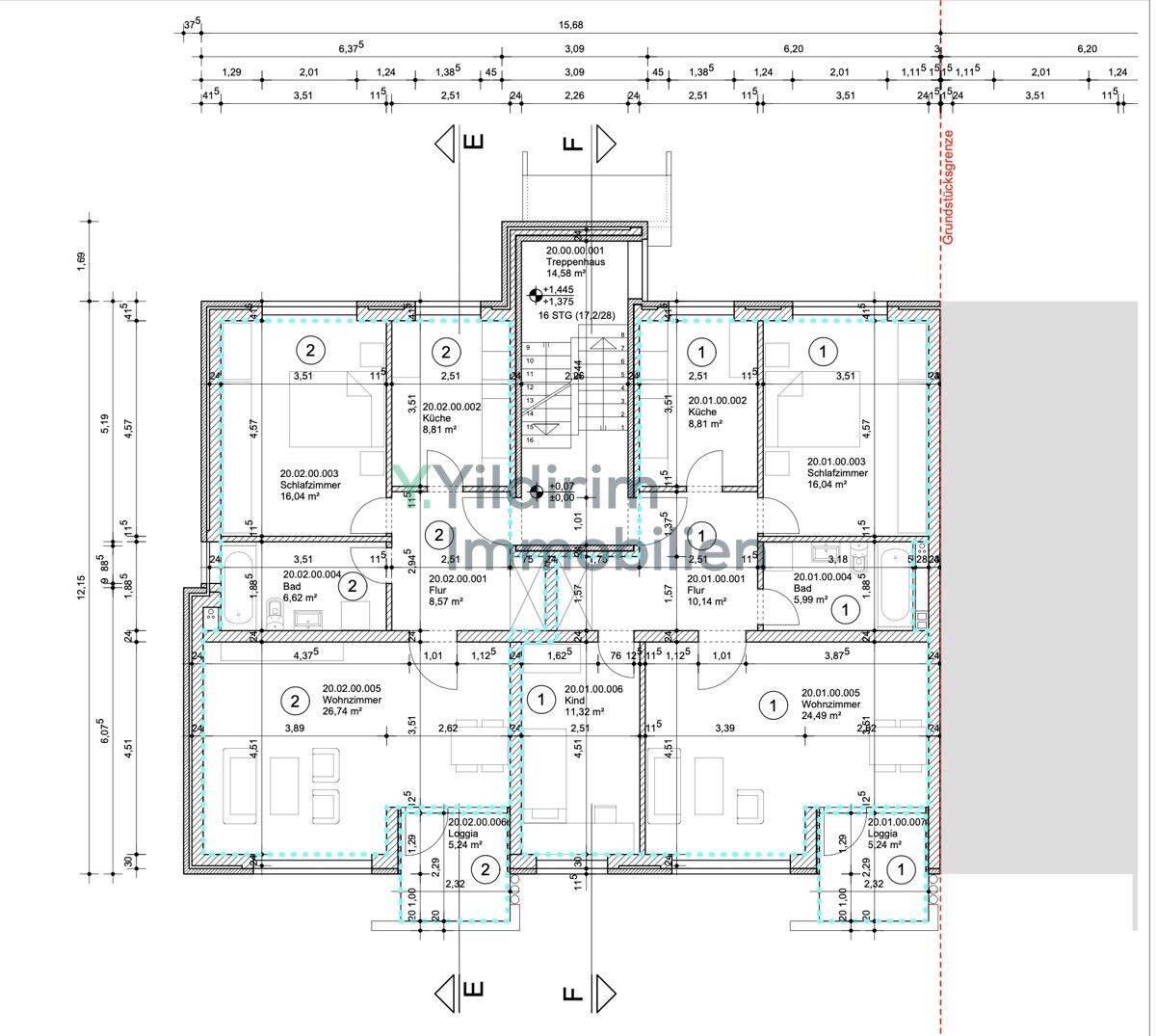
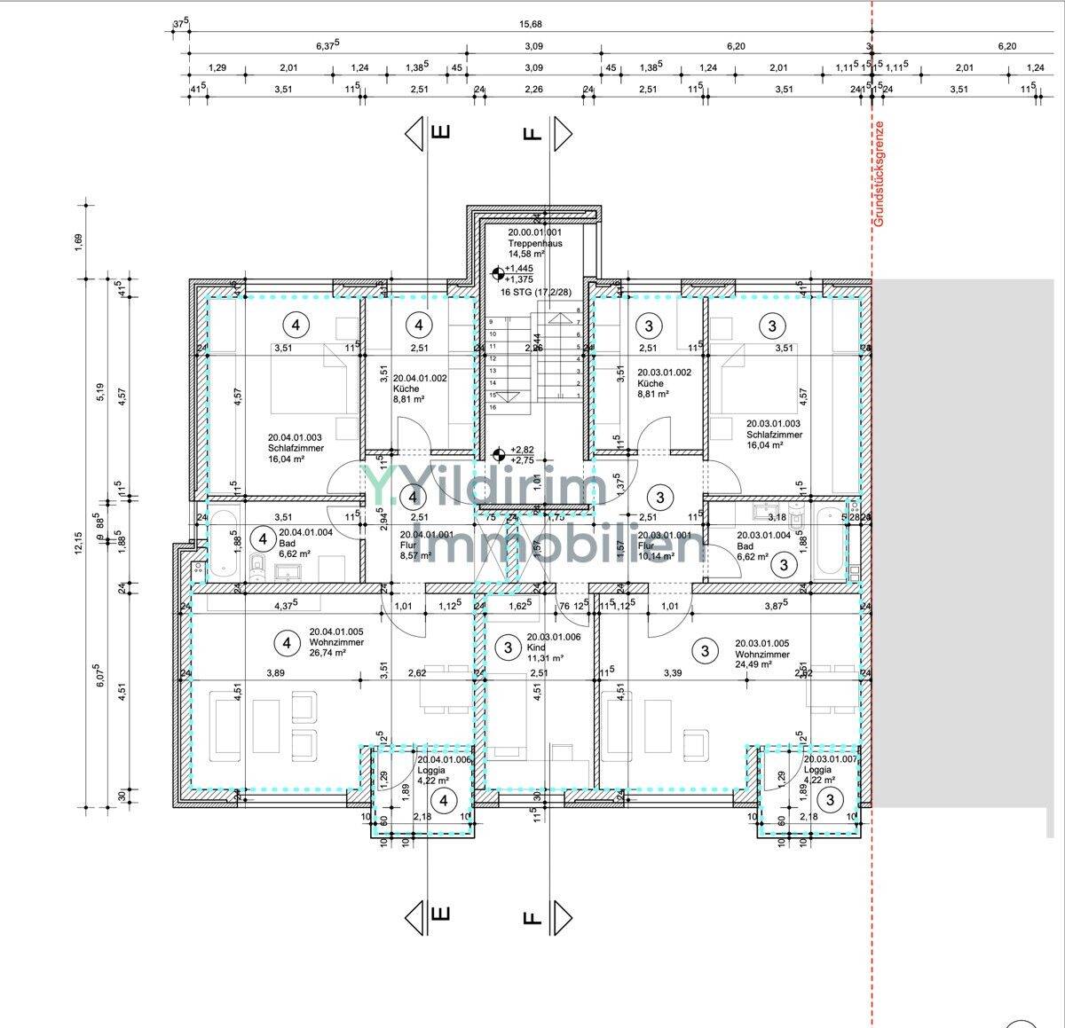
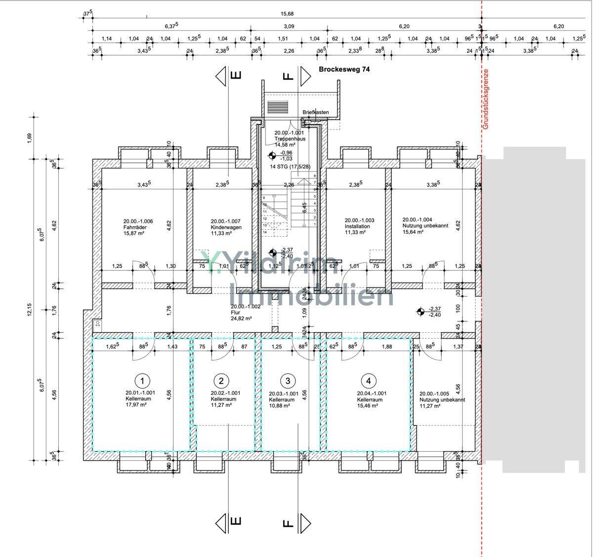
Attraktives Mehrfamilienhaus mit 4 Wohneinheiten und Entwicklungspotenzial Dieses gepflegte Mehrfamilienhaus aus dem Jahr 1969 bietet auf einer Gesamtwohnfläche von ca. 287 m² insgesamt vier Wohneinheiten mit Größen zwischen ca. 64,66 m² und 77,08 m².Die Wohnungen sind als 2- und 3-Zimmer-Wohnungen konzipiert und überzeugen durch eine durchdachte Raumaufteilung. Die Fenster wurden im Jahr 2016 erneuert, die Bäder sind teilweise modernisiert.Ein besonderes Highlight sind die Außenbereiche: Die Erdgeschosswohnungen verfügen über eine Terrasse mit eigenem Gartenanteil, während die Wohnungen im Obergeschoss jeweils einen nach Westen ausgerichteten Balkon bieten.Diese Immobilie stellt eine ideale Investitionsmöglichkeit mit solidem Bestand und attraktivem Entwicklungspotenzial dar.Auf Wunsch kann das Objekt mit einer Mietsicherheit über 20 Jahre übernommen werden.Die Netto-Kaltmiete beträgt ca. 34.440,00 € p. a. durch die gewährte Mietgarantie.
So funktioniert es
- Alle neuen Anzeigen matchen wir kostenlos mit Deinen Suchparametern.
- Passende Angebote senden wir Dir in einer E-Mail pro Tag.
- Du kannst auch verschiedene Suchen anlegen und Dich jederzeit abmelden. Mehr dazu
Wir haben soeben eine E-Mail mit Deinem Suchauftrag an Dich geschickt. – Klicke in dieser Mail auf den Bestätigungslink und schon geht's los. Prüfe ggf. auch Deinen Spamordner.
Es gab ein Problem beim Absenden Deiner E-Mail-Adresse. Bitte versuche es erneut.
WARNUNG: Bitte bestätige Deine E-Mail-Adresse, um regelmäßige Updates zu erhalten.