Objektdaten
Objektbeschreibung
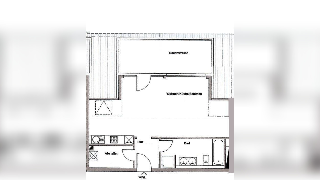
Die Wohnung liegt in einer ruhigen Seitenstraße in Leipzig-Schönefeld. Der Balkon mit Blick auf den gepflegten, grünen Innenhof lädt zum gemütlichen Frühstück ein. Durch die Wohnungsgrundrisse (schwellenlos, ebenerdige Dusche) und den vorhandenen Aufzug ist dieses Objekt ideal für Senioren geeignet. Ärzte sowie mehrere Einkaufsmöglichkeiten (Supermarkt / Paunsdorf-Center) sind vorhanden. Die Verkehrsanbindung an die Leipziger Innenstadt ist durch die Straßenbahnlinie 1 sowie die Buslinien 70 und 90 gegeben. Zu Freizeit und Erholungszwecken befinden sich im näheren Umfeld z.B. der Mariannenpark und ein Frei- sowie ein Hallenbad.Ähnliche Angebote
So funktioniert es
- Alle neuen Anzeigen matchen wir kostenlos mit Deinen Suchparametern.
- Passende Angebote senden wir Dir in einer E-Mail pro Tag.
- Du kannst auch verschiedene Suchen anlegen und Dich jederzeit abmelden. Mehr dazu





