Objektdaten
Objektbeschreibung
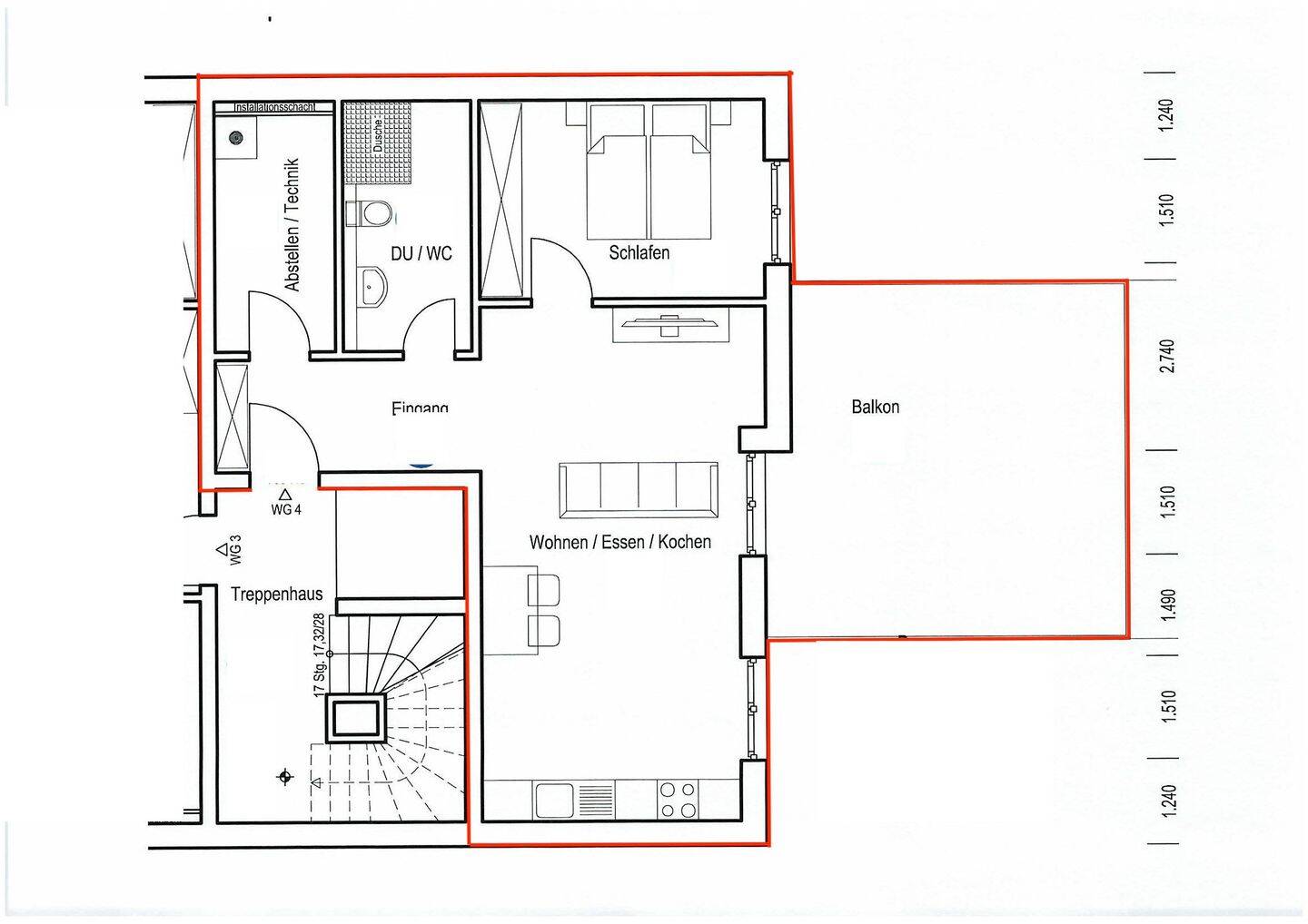
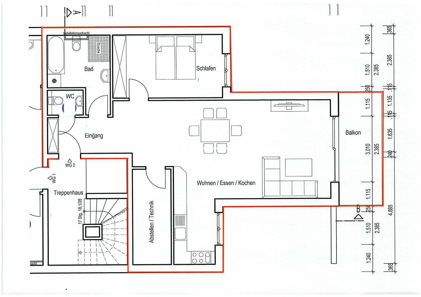
Wohnen Nähe Porta-Nigra - Modernes altersgerechtes Wohnen im Energiesparhaus in ruhiger Top Innenstadtlage - Achtung Vermieter: Hohe Steuervorteile durch neue degressive Gebäudeabschreibung sichern !Moderne Eigentumswohnungen in gefragter Lage in der Nähe der Porta Nigra von ca. 24 m² bis ca. 157 m² Wohnfläche in einem attraktiven Mehrfamilienhaus in altersgerechter Ausführung mit Auszug, guter Ausstattung und moderner Technik. Alle Wohnungen verfügen über attraktive Balkone. Loggien und Terrassen. Die Baubeschreibung sieht die Beheizung mit einer Wärmepumpe vor. Das Objekt erfüllt den Standard des Gebäudeenergiegesetzes. Die vorgesehene 3-fach Verglasung der Fenster, elektrische Rollläden, die hochwertige Außendämmung, eine kontrollierte Wohnraumbelüftung mit Wärmerückgewinnung sowie die moderne Heiztechnik ermöglichen günstige Heizkosten. Die Innenausstattung können Sie noch mitbestimmen. Es sind attraktive Parkettböden, schöne Fliesen etc. vorgesehen. Der Energieausweis liegt vor und hat die Energieklasse A +.Das Angebot bezieht sich auf die Wohnung Nr. 3 im Erdgeschoß. Die Wohnung besteht aus dem attraktiven Wohn/Essbereich von ca. 30 m² mit integrierter Küche und Zugang auf die schöne Loggia von ca. 8 m². Über den Wohnraum gelangen Sie in das helle Büro von ca. 8 m² sowie in den großzügigen Schlafraum von ca. 18 m². Diele, Duschbad mit Fenster, Garderobe vervollständigen das Angebot. Die gesamte Wohnfläche beträgt ca. 77 m². Jeder Wohnung ist ein Abstell/Kellerraum im Untergeschoß zugeordnet.Es besteht die Möglichkeit Tiefgaragenstellplätze für 30.000 EUR zu erwerben.Der Baubeginn ist erfolgt. Die Fertigstellung ist im März 2026 geplant . Steuerlicher Hinweis für Investoren : Die Wohnungen können bei einem Erwerb bis zum Jahr der Fertigstellung und einer Vermietung entsprechend den im Wachstumschanchengesetz aktuell beschlossenen Änderungen der degressiven Abschreibung nunmehr mit jährlich 5 %- bezogen auf den jeweiligen Buchwert/Restwert - abgeschrieben werden. Hierdurch können hohe Steuervorteile erzielt werden. Wir übernehmen keine steuerliche Beratung und keine Haftung für steuerliche Ziele. Hierzu informiert Sie Ihr Steuerberater umfassend.Ähnliche Angebote
So funktioniert es
- Alle neuen Anzeigen matchen wir kostenlos mit Deinen Suchparametern.
- Passende Angebote senden wir Dir in einer E-Mail pro Tag.
- Du kannst auch verschiedene Suchen anlegen und Dich jederzeit abmelden. Mehr dazu




