Ideal zum Wohnen oder Arbeiten - Einfamilienhaus mit eingeschossigem Nebengebäude aus den 1920er Jahren. Gut in Schuss und mit großzügigem Garten, nahezu alle Annehmlichkeiten im Umkreis von 5 km.
Objektdaten
Objektbeschreibung
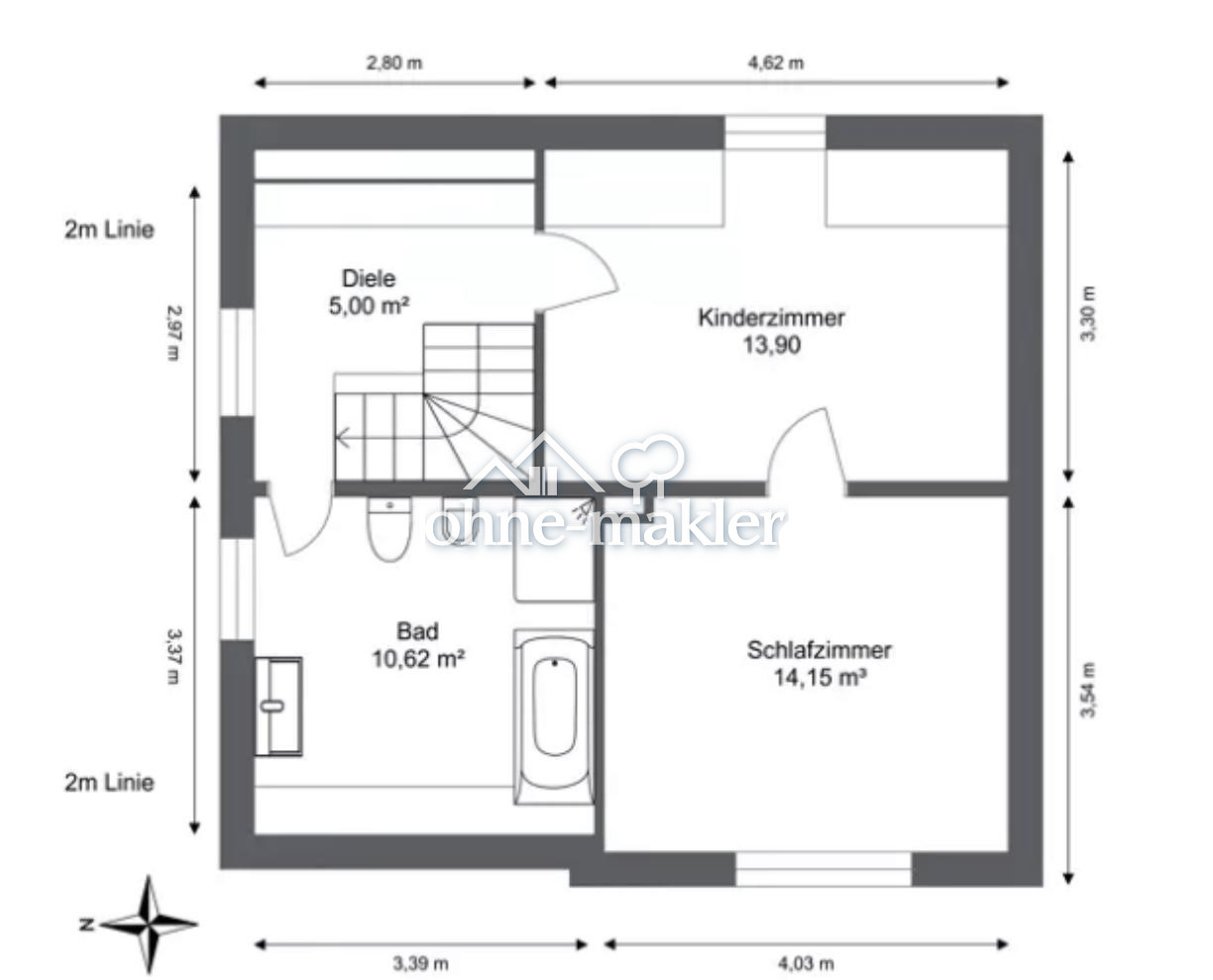
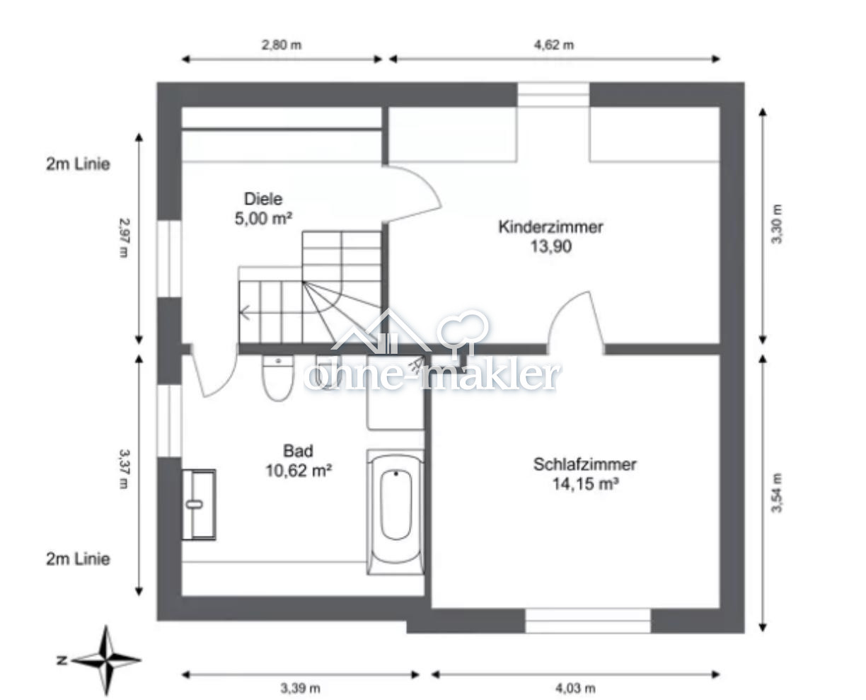
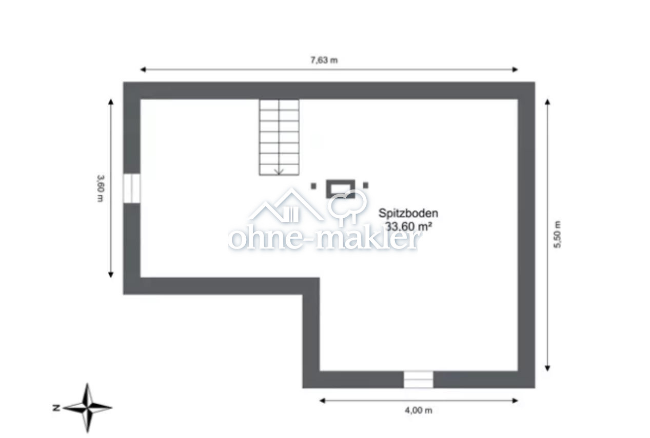
Auf diesem großzügigen Grundstück stehen zwei massiv errichtete Gebäude, die zahlreiche Nutzungsmöglichkeiten bieten. Das Haupthaus stammt aus den späten 1920er Jahren, das eingeschossige Nebengebäude wurde ursprünglich als Werkstatt gebaut und zuletzt als Gaststätte betrieben. Beide befinden sich in gutem Zustand. Das Wohnhaus verfügt über eine Gas-Zentralheizung mit Warmwasserspeicher (Baujahr 2012) sowie fünf Kellerräume, von denen einer als Trockenraum genutzt wird. Im Erdgeschoss befinden sich ein einladender Flur, ein modernisiertes Gäste-WC, eine helle Wohnstube sowie ein großzügiger Wohn- und Essbereich, der durch Fachwerk stilvoll unterteilt ist. Im Obergeschoss liegen das Hauptbad mit Dusche, Wanne und WC, ein Schlafzimmer sowie ein weiteres Zimmer, das sich gut als Kinder-, Gäste- oder Arbeitszimmer eignet. Der Dachboden bietet zusätzlichen Stauraum. Das Nebengebäude entstand gegen Ende des Zweiten Weltkriegs und wird derzeit als Gaststätte genutzt. Der Mietvertrag ist unbefristet, kann jedoch zum Jahresende gekündigt werden. Innen gibt es einen Gastraum mit Theke sowie einen überdachten Außenbereich. Die Gaststätte könnte auch als Einliegerwohnung oder Werkstatt genutzt werden. Hinter dem Gebäude befindet sich noch eine Rasenfläche die mit einem Durchbruch auch mit dem Nebengebäude verbunden werden kann. Terrasse, Keller, Vollbad, Einbauküche, Gäste-WC, Laminat, Teppichboden, FliesenEnergieträger: Gas
Makleranfragen nicht erwünscht. Nach § 7 UWG sind unaufgeforderte Kontaktaufnahmen durch Makler ohne ausdrückliche Einwilligung des Empfängers verboten!
ohne-makler (OM) ist weder Anbieter noch Vermittler der Immobilie. OM betreibt eine Plattform für Immobilieneigentümer, die unter anderem die gleichzeitige Veröffentlichung einzelner Inserate auf mehreren Immobilienportalen ermöglicht. Die Inhalte dieser Inserate werden ausschließlich von Dritten verantwortet. Für die Richtigkeit, Vollständigkeit oder Rechtmäßigkeit der Angaben übernimmt OM keine Haftung. Hinweise auf mögliche Rechtsverstöße können jederzeit gemeldet werden und werden nach Prüfung umgehend bearbeitet.
Ähnliche Angebote
So funktioniert es
- Alle neuen Anzeigen matchen wir kostenlos mit Deinen Suchparametern.
- Passende Angebote senden wir Dir in einer E-Mail pro Tag.
- Du kannst auch verschiedene Suchen anlegen und Dich jederzeit abmelden. Mehr dazu


