Objektdaten
Objektbeschreibung
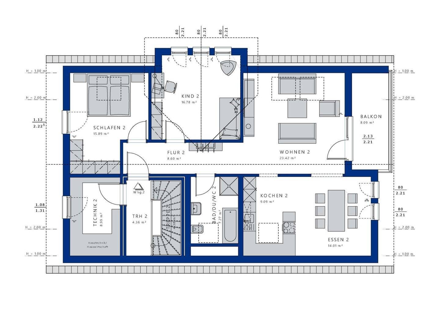
Willkommen in Ihrem neuen Mehrfamilienhaus in der malerischen Stadt Vilshofen an der Donau! Hier erwartet Sie eine einzigartige Möglichkeit, Ihre Wohnträume zu verwirklichen. Das projektiert Mehrfamilienhaus bietet über 193,71 m² Wohnfläche verteilt auf zwei Etagen und fünf großzügige Zimmer, die individuell nach Ihren Wünschen gestaltet werden können.Das durchdachte Projektkonzept ermöglicht es Ihnen, vier Schlafzimmer sowie ein stilvolles Badezimmer und ein zusätzliches Gäste-WC zu genießen. Egal, ob Sie eine große Familie planen oder einfach nur viel Platz für sich und Ihre Angehörigen wünschen - dieses Haus geht auf Ihre persönlichen Vorstellungen ein.Das Mehrfamilienhaus überzeugt nicht nur durch seine großzügige Raumaufteilung, sondern auch durch seine gehobene Ausstattung und den KFW55 Standard, der für Energieeffizienz und Nachhaltigkeit steht. Genießen Sie die Vorteile eines modernen Wohnkonzepts, das sowohl funktional als auch ästhetisch ansprechend ist.So funktioniert es
- Alle neuen Anzeigen matchen wir kostenlos mit Deinen Suchparametern.
- Passende Angebote senden wir Dir in einer E-Mail pro Tag.
- Du kannst auch verschiedene Suchen anlegen und Dich jederzeit abmelden. Mehr dazu



