Objektdaten
Objektbeschreibung
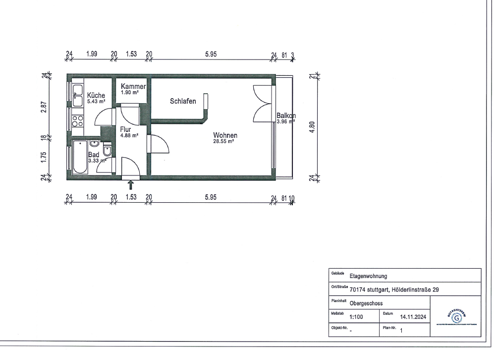
Diese charmante 1-Zimmer-Wohnung mit ca. 40 m² Wohnfläche befindet sich in einem gepflegten 16-Parteien-Hauses in Stuttgart-Bad Cannstatt. Die Wohnung bietet eine durchdachte Raumaufteilung und zeichnet sich vor allem durch Ihr neues Bad & schönen Balkon aus. Alle Räume sind mit Fliesenboden ausgestattet und dank der vielen Fenster hell und freundlich. Das Bad verfügt über eine neue Dusche, WC, Waschbecken und einen Waschmaschinenanschluss. Die Küche ist separat gelegen und ist mit einer neuen Einbauküche ausgestattet. Zudem ist die Wohnung komplett mit neuen Steckdosen/Schaltern (noch nicht auf den Bildern ersichtlich) und neuen Fenstern ausgestattet. Die Beheizung und Warmwasseraufbereitung der Wohnung erfolgt mit einer Gas-Etagenheizung. Die neue Einbauküche umfasst dabei Backofen, Spülmaschine, Spüle und Schränke (40€/Monat). Der Einzug ist ab sofort möglich. Balkon, Keller, Einbauküche, Fliesen Bemerkungen: - 1-Zimmer-Wohnung mit ca. 40 m² - Schöne Küche mit Zugang zum Balkon - Fliesen in allen Räumen - Neues Bad mit Dusche, WC, Waschbecken, Waschmaschinenanschluss - Neue Einbauküche mit Backofen, Herd, Spülmaschine, Abzug (40€/Monat) - Neue Fenster in der gesamten Wohnung - Kellerraum im UGEnergieträger: Gas
Energieausweis nicht vorhanden
Die Wohnung eignet sich ideal für maximal 1 Person. Nichtraucherwohnung. Mieterselbstauskunft, Einkommensnachweise und eine Schufa-Auskunft werden vor Mietvertragsabschluss erbeten.
Makleranfragen nicht erwünscht. Nach § 7 UWG sind unaufgeforderte Kontaktaufnahmen durch Makler ohne ausdrückliche Einwilligung des Empfängers verboten!
ohne-makler (OM) ist weder Anbieter noch Vermittler der Immobilie. OM betreibt eine Plattform für Immobilieneigentümer, die unter anderem die gleichzeitige Veröffentlichung einzelner Inserate auf mehreren Immobilienportalen ermöglicht. Die Inhalte dieser Inserate werden ausschließlich von Dritten verantwortet. Für die Richtigkeit, Vollständigkeit oder Rechtmäßigkeit der Angaben übernimmt OM keine Haftung. Hinweise auf mögliche Rechtsverstöße können jederzeit gemeldet werden und werden nach Prüfung umgehend bearbeitet.
Ähnliche Angebote
So funktioniert es
- Alle neuen Anzeigen matchen wir kostenlos mit Deinen Suchparametern.
- Passende Angebote senden wir Dir in einer E-Mail pro Tag.
- Du kannst auch verschiedene Suchen anlegen und Dich jederzeit abmelden. Mehr dazu





