Kaufpreis 419.000 €
Zimmer 4
Größe 135 m²
28790 Schwanewede
Objektdaten
Veröffentlicht am: 12. Dezember 2025
Baujahr: 2025
Energieausweis: Liegt bei der Besichtigung vor
Danke! Bitte bestätige Deine E-Mail-Adresse – wir haben Dir soeben eine Mail geschickt.
Es gab ein Problem beim Absenden. Bitte versuche es erneut.
Bitte bestätige Deine E-Mail-Adresse, um Updates zu erhalten.
Objektbeschreibung
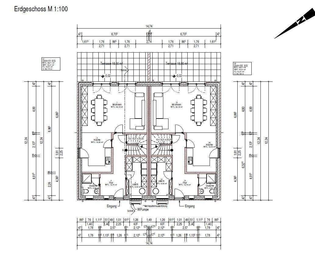
Diese exklusive Doppelhaushälfte (linke Seite - Nr. 1) beeindruckt durch ihre hochwertige Ausstattung, eine energieeffiziente Bauweise nach KfW-55-Standard und eine elegante Klinkerfassade, die nicht nur zeitlos und stilvoll wirkt, sondern auch Langlebigkeit und Witterungsbeständigkeit gewährleistet. Mit einer großzügigen Wohnfläche von ca. 135 m² auf einem ca. 280 m² großen Grundstück erfüllt dieses Haus die höchsten Ansprüche an modernes Wohnen und nachhaltige Bauweise. Ideal für Paare und Familien, die ein erstklassiges Zuhause suchen.Erdgeschoss:Das Erdgeschoss empfängt Sie mit einem hellen, offen gestalteten Grundriss. Das große Wohnzimmer bildet das einladende Herzstück des Hauses und schafft mit seinen bodentiefen Fenstern ein lichtdurchflutetes Ambiente, das zu entspannten Abenden mit Familie und Freunden einlädt. Die angrenzende Küche lässt sich ganz nach Ihren Wünschen gestalten und bietet ausreichend Platz für die Integration einer hochwertigen Einbauküche, in der sich Kochträume verwirklichen lassen.Für zusätzlichen Komfort sorgt ein elegant gestaltetes Gäste-Bad mit Dusche, das nicht nur praktisch ist, sondern auch hohen Designansprüchen genügt. Ergänzt wird das Erdgeschoss durch einen gut durchdachten Hauswirtschaftsraum, der viel Stauraum bietet und mit Anschlüssen für Waschmaschine und Trockner ausgestattet ist. So bleibt Ihr Zuhause stets ordentlich und funktional organisiert.Obergeschoss:Das Obergeschoss überzeugt mit einer familienfreundlichen Raumaufteilung. Hier erwarten Sie drei geräumige Schlafzimmer, die vielseitige Nutzungsmöglichkeiten bieten, ob als Elternschlafzimmer, Kinderzimmer oder komfortables Gästezimmer. Jedes Zimmer ist so gestaltet, dass es ausreichend Platz für individuelle Einrichtungsideen bietet und sich den Bedürfnissen seiner Bewohner optimal anpasst.Das moderne Hauptbadezimmer ist mit einer Dusche und einer Badewanne ausgestattet und besticht durch eine moderne Ausstattung, die jeden Morgen zu einem Wohlfühlerlebnis macht.Besondere Merkmale:Die gesamte Doppelhaushälfte wurde mit Blick auf Nachhaltigkeit und Energieeffizienz konzipiert. Dank der Bauweise gemäß KfW-55-Standard profitieren Sie von niedrigen Energiekosten und einem umweltfreundlichen Lebensstil. Eine integrierte Photovoltaikanlage mit Wechselrichter sorgt für die Nutzung erneuerbarer Energien und trägt zu einem klimafreundlichen Alltag bei. Zusätzlich ist ein Anschluss für eine Wallbox vorgesehen, um E-Mobilität in Ihrem neuen Zuhause zu unterstützen und Sie auf die Zukunft vorzubereiten.Mit dieser exklusiven Doppelhaushälfte, die eine elegante Klinkerfassade, modernste Bauqualität und energieeffiziente Technik vereint, erleben Sie ein komfortables und nachhaltiges Wohnerlebnis in einer attraktiven Lage. Die Fertigstellung des Projekts ist für Januar 2026 geplant und bietet Ihnen die Möglichkeit, in naher Zukunft ein Zuhause zu beziehen, das keine Wünsche offenlässt.Info: Fertigstellung Januar 2026
So funktioniert es
- Alle neuen Anzeigen matchen wir kostenlos mit Deinen Suchparametern.
- Passende Angebote senden wir Dir in einer E-Mail pro Tag.
- Du kannst auch verschiedene Suchen anlegen und Dich jederzeit abmelden. Mehr dazu
Wir haben soeben eine E-Mail mit Deinem Suchauftrag an Dich geschickt. – Klicke in dieser Mail auf den Bestätigungslink und schon geht's los. Prüfe ggf. auch Deinen Spamordner.
Es gab ein Problem beim Absenden Deiner E-Mail-Adresse. Bitte versuche es erneut.
WARNUNG: Bitte bestätige Deine E-Mail-Adresse, um regelmäßige Updates zu erhalten.