Kaufpreis 299.000 €
Zimmer 4
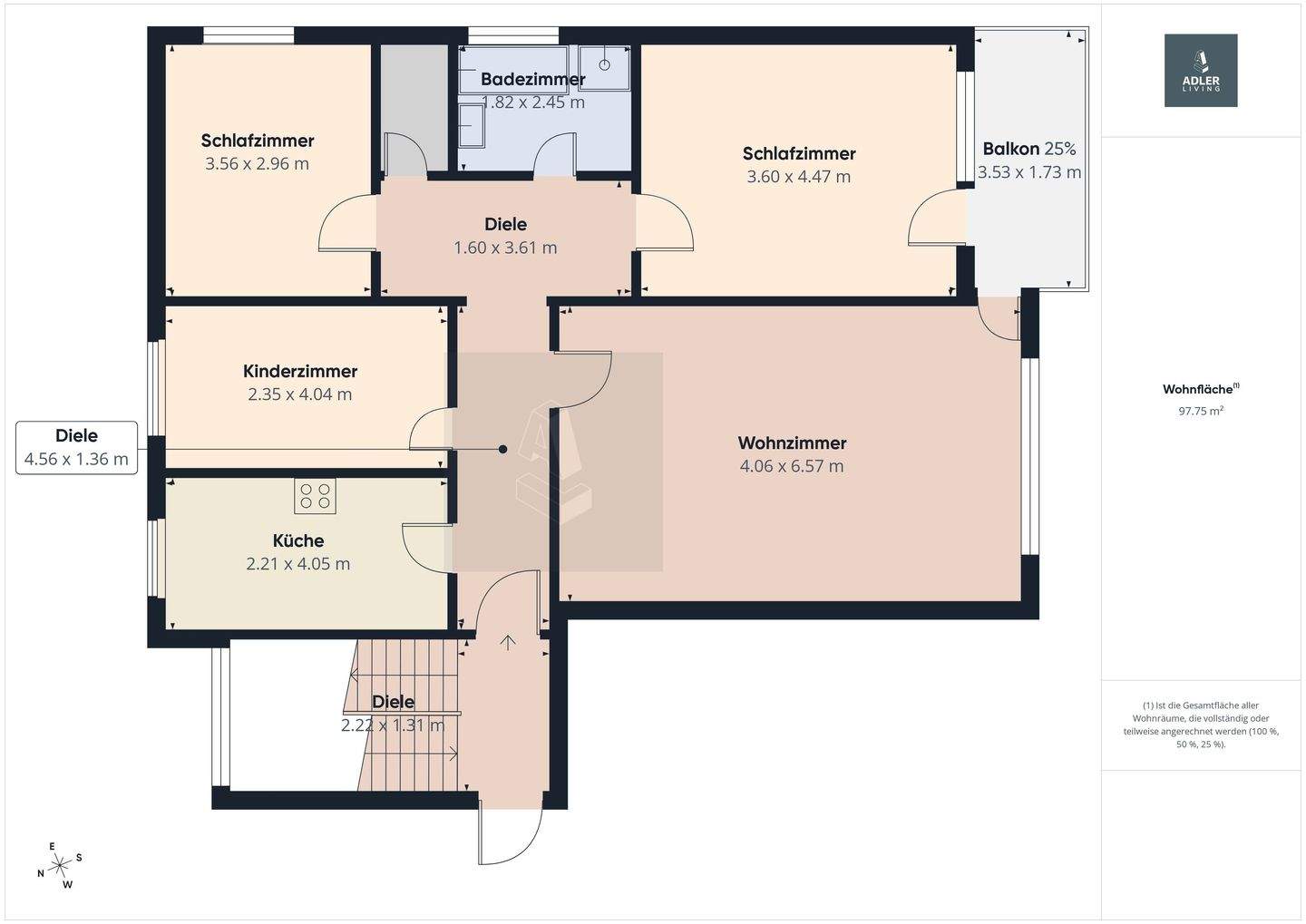
Größe 94 m²
71672 Marbach am Neckar
Objektdaten
Veröffentlicht am: 12. Dezember 2025
Energieausweis: Liegt bei der Besichtigung vor
Danke! Bitte bestätige Deine E-Mail-Adresse – wir haben Dir soeben eine Mail geschickt.
Es gab ein Problem beim Absenden. Bitte versuche es erneut.
Bitte bestätige Deine E-Mail-Adresse, um Updates zu erhalten.
Objektbeschreibung
====================?? Die Adresse, eine virtuelle Besichtigung, Unterlagen, sowie mehr Bilder erhalten Sie bei Anfrage.====================Die Wohnung befindet sich im gepflegten Mehrfamilienhaus. Die Raumaufteilung ist klar strukturiert: helles Wohnzimmer mit Zugang zum Südbalkon, zwei Schlafzimmer, Küche mit Essbereich, Tageslichtbad sowie separates WC.Dank der großen Fensterflächen bietet die Wohnung ein angenehmes, warmes Wohngefühl.Der große Kellerraum mit Fenster und der eigene Tiefgaragenplatz Nr. 1 runden das Angebot ab.?? ?? ?? Mehr Informationen zu den Räumlichkeiten, Grundstück und Parkmöglichkeiten senden wir Ihnen gerne in unserem ausführlichen Exposé und bieten Ihnen eine virtuelle Vorab-Besichtigung an!
So funktioniert es
- Alle neuen Anzeigen matchen wir kostenlos mit Deinen Suchparametern.
- Passende Angebote senden wir Dir in einer E-Mail pro Tag.
- Du kannst auch verschiedene Suchen anlegen und Dich jederzeit abmelden. Mehr dazu
Wir haben soeben eine E-Mail mit Deinem Suchauftrag an Dich geschickt. – Klicke in dieser Mail auf den Bestätigungslink und schon geht's los. Prüfe ggf. auch Deinen Spamordner.
Es gab ein Problem beim Absenden Deiner E-Mail-Adresse. Bitte versuche es erneut.
WARNUNG: Bitte bestätige Deine E-Mail-Adresse, um regelmäßige Updates zu erhalten.