Objektdaten
Objektbeschreibung
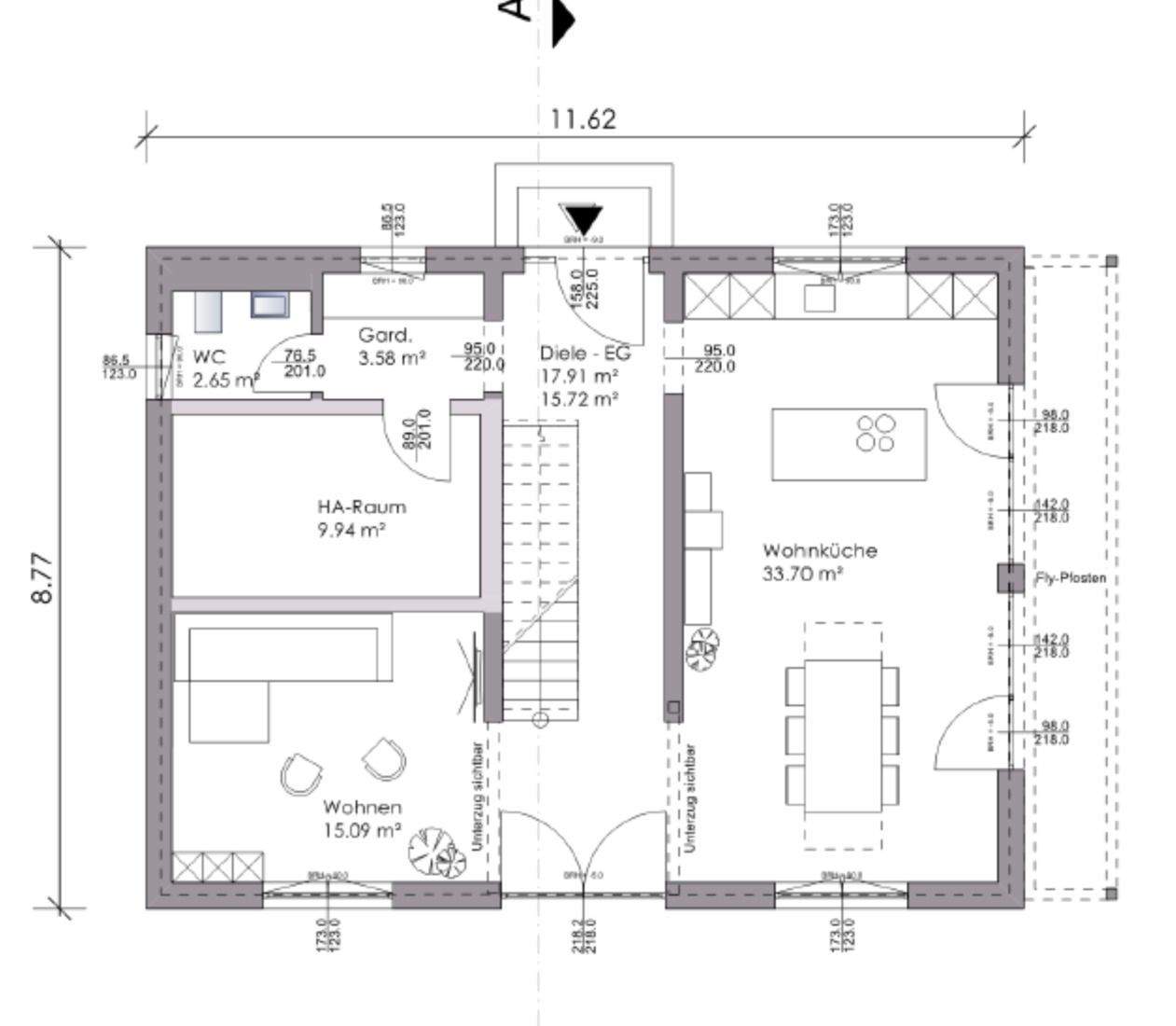
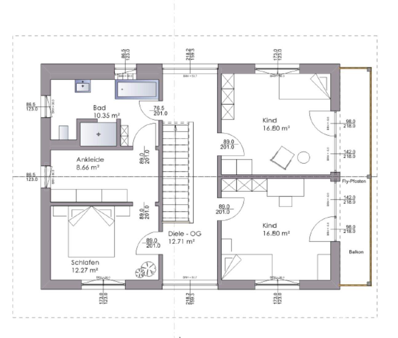
Ein Einfamilienhaus der ganz besonderen Art. Auf einer Grundfläche von ca. 161 qm bietet es auf zwei Etagen außerordentlich viel Platz für vitales Wohnen. Auch in seinem äußeren Erscheinungsbild überzeugt es durch seinen eigenständigen Stil als modernes Landhaus. Große Fensterflächen prägen die Gestaltung sowie das Wohnerlebnis mit viel Licht und freiem Blick nach draußen und auf die umliegende Bergwelt.Das projektierte Einfamilienhaus wird in nachhaltiger Holzbauweise mit einer natürlichen Holzfaserdämmung errichtet und mit modernster Haustechnik insbesondere mit einer umweltfreundlichen und energieeffizienten Luft-Wasser-Wärmepumpe ausgestattet. Alternative Heizungssysteme wie z.B. eine Lüftungsheizung stehen natürlich ebenfalls zur Verfügung.Weitere Ausstattungskomponenten sind Holz-Alu-Fenster aus eigener Produktion, Eichenholzparkett, eine Eichenholztreppe und eine hochwertige Sanitärausstattung. Das Einfamilienhaus ist förderfähig als klimafreundliches Wohnhaus (KFN) bzw. klimafreundliches Wohnhaus mit Nachhaltigkeitszertifizierung (QNG). Der Hausentwurf auf Bodenplatte ist aber nur ein Bebauungsvorschlag und kann noch ganz nach Ihren Wünschen verändert oder auch durch eine Neuplanung ersetzt werden. Statt mit einer Bodenplatte kann das Haus auch mit einem Keller ausgestattet werden.Bitte beachten Sie, dass im genannten Kaufpreis der Kaufpreis für das schlüsselfertige Haus ab Oberkante Keller/Bodenplatte und ohne Baunebenkosten sowie der Kaufpreis des Grundstücks ohne Nebenkosten enthalten ist.Weitere Angebote unter www.GARANT-IMMO.deSo funktioniert es
- Alle neuen Anzeigen matchen wir kostenlos mit Deinen Suchparametern.
- Passende Angebote senden wir Dir in einer E-Mail pro Tag.
- Du kannst auch verschiedene Suchen anlegen und Dich jederzeit abmelden. Mehr dazu




