Exklusiver Neubau in Toplage: Moderne barrierefreie Wohnungen mit Loggia, 3-Zi. OG, bezugsfertig

Kaufpreis 363.000 €
Zimmer 3
Größe 86 m²
91541 Rothenburg ob der Tauber

Objektdaten

Veröffentlicht am: 4. Januar 2026
Frei ab: 1. Juni 2025
Energieausweis: Liegt bei der Besichtigung vor
Neu

Über ähnliche Angebote direkt informiert werden

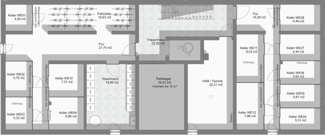
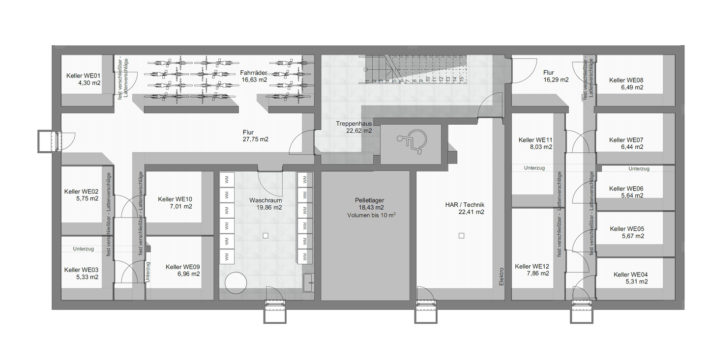
  • Objektbeschreibung

    Willkommen in Ihrem neuen Zuhause! Wir freuen uns, Ihnen unser exklusives Neubauprojekt in bester Innenstadtlage vorstellen zu dürfen. Diese modernen barrierefreien Wohnungen sind perfekt für anspruchsvolle Menschen, die auf der Suche nach Komfort, Luxus und urbanem Lebensstil sind.

    So funktioniert es

    • Alle neuen Anzeigen matchen wir kostenlos mit Deinen Suchparametern.
    • Passende Angebote senden wir Dir in einer E-Mail pro Tag.
    • Du kannst auch verschiedene Suchen anlegen und Dich jederzeit abmelden. Mehr dazu
    Nach oben scrollen