Objektdaten
Objektbeschreibung
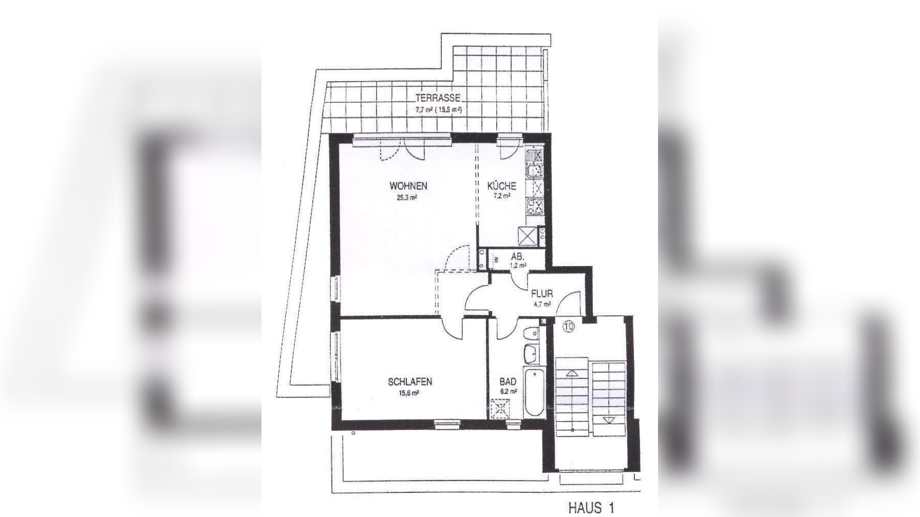
Objektbeschreibung Diese Wohnung wurde 1999 in hochwertiger Bauweise errichtet.Die Staffelgeschosswohnung ist Teil einer WEG mit 33 Wohneinheiten, welche sich über 3 Hauseingänge verteilen.Die Wohnung verfügt über ein grosszügiges Wohnzimmer mit Zugang zur nach Süden ausgerichteten Dachterrasse. Die Dachterrasse kann auch über die Küche betreten werden.Die Küche ist mit einer Einbauküche ausgestattet.Das Badezimmer verfügt über eine Badewanne.Wohnzimmer und Schlafzimmer sind mit einem Parkettboden ausgestattet.Auf dem rückwärtigen Grundstück befindet sich eine ebenerdige Sammelgarage.Zu dieser Wohnung gehört ein Stellplatz (gesondertes Grundbuchblatt).Die Wohnung ist an eine Einzelperson seit 07/2020 vermietet.Die aktuelle Nettokaltmiete per anno beträgt € 11.004,00.Es ist eine Mietkaution in Höhe von € 2.655,00 hinterlegt.Die Wohnung wurde zuletzt im Jahre 2020 von Seiten des Grundeigentümers renoviert. Raumaufteilung siehe GrundrissÄhnliche Angebote
So funktioniert es
- Alle neuen Anzeigen matchen wir kostenlos mit Deinen Suchparametern.
- Passende Angebote senden wir Dir in einer E-Mail pro Tag.
- Du kannst auch verschiedene Suchen anlegen und Dich jederzeit abmelden. Mehr dazu




