Objektdaten
Objektbeschreibung
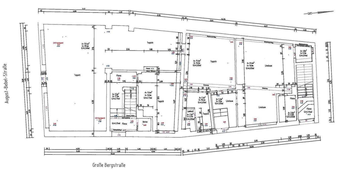
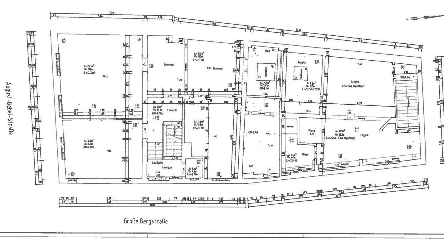
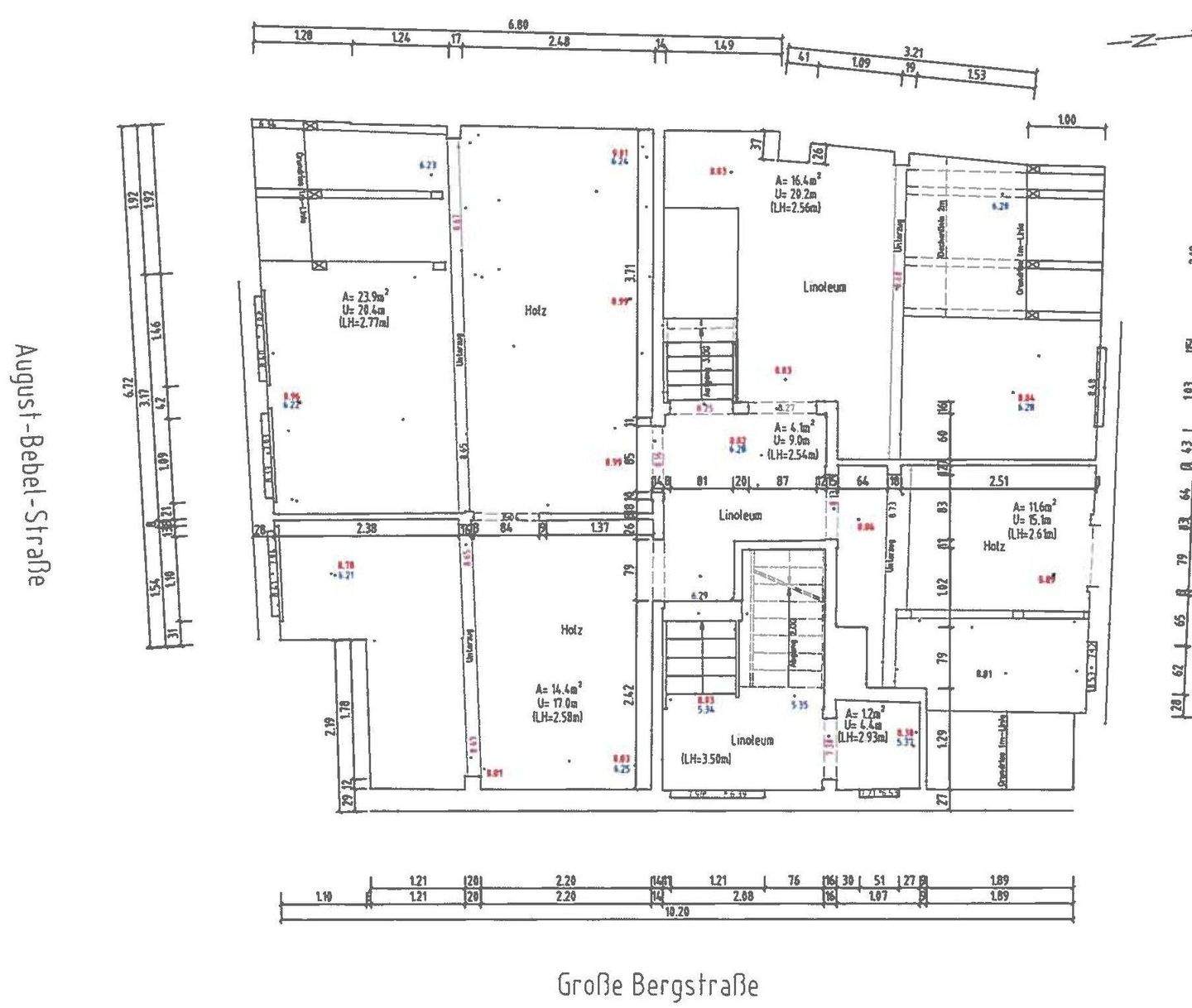
Hier angeboten werden ein sanierungsbedürftiges Wohn- und Geschäftshaus in zentraler Lage von Schwaan mit deutlichem Entwicklungs- und Wertsteigerungspotenzial. Die Immobilie verfügt über eine Mischnutzung aus Wohnen und Gewerbe. Im Erdgeschoss befindet sich eine Gewerbeeinheit (Friseurbetrieb), die aktuell vermietet ist. Darüber hinaus ist eine Wohnung vermietet. Weitere Flächen stehen leer bzw. bieten Potenzial für eine Neuordnung und Entwicklung im Rahmen einer umfassenden Sanierung. Das Gebäude stammt aus dem Jahr 1925 und weist eine klassische, massive Bausubstanz auf. Die Grundrissstruktur ermöglicht eine flexible Nutzung und bietet Ansatzpunkte für eine Neupositionierung am Wohn- und Gewerbemarkt. Ein energetischer Sanierungsfahrplan liegt bereits vor und bietet eine belastbare Grundlage für zukünftige Maßnahmen sowie mögliche Förderungen. Die Immobilie richtet sich insbesondere an Kapitalanleger und Projektentwickler, die ein Objekt mit Bestandseinnahmen und gleichzeitigem Entwicklungspotenzial suchen. Nach erfolgter Sanierung ist sowohl eine nachhaltige Vermietung als auch eine langfristige Wertsteigerung darstellbar. Weitere Unterlagen, Grundrisse und Informationen stellen wir Ihnen gerne nach erfolgter Kontaktaufnahme zur Verfügung.Ähnliche Angebote
So funktioniert es
- Alle neuen Anzeigen matchen wir kostenlos mit Deinen Suchparametern.
- Passende Angebote senden wir Dir in einer E-Mail pro Tag.
- Du kannst auch verschiedene Suchen anlegen und Dich jederzeit abmelden. Mehr dazu




