Objektdaten
Objektbeschreibung
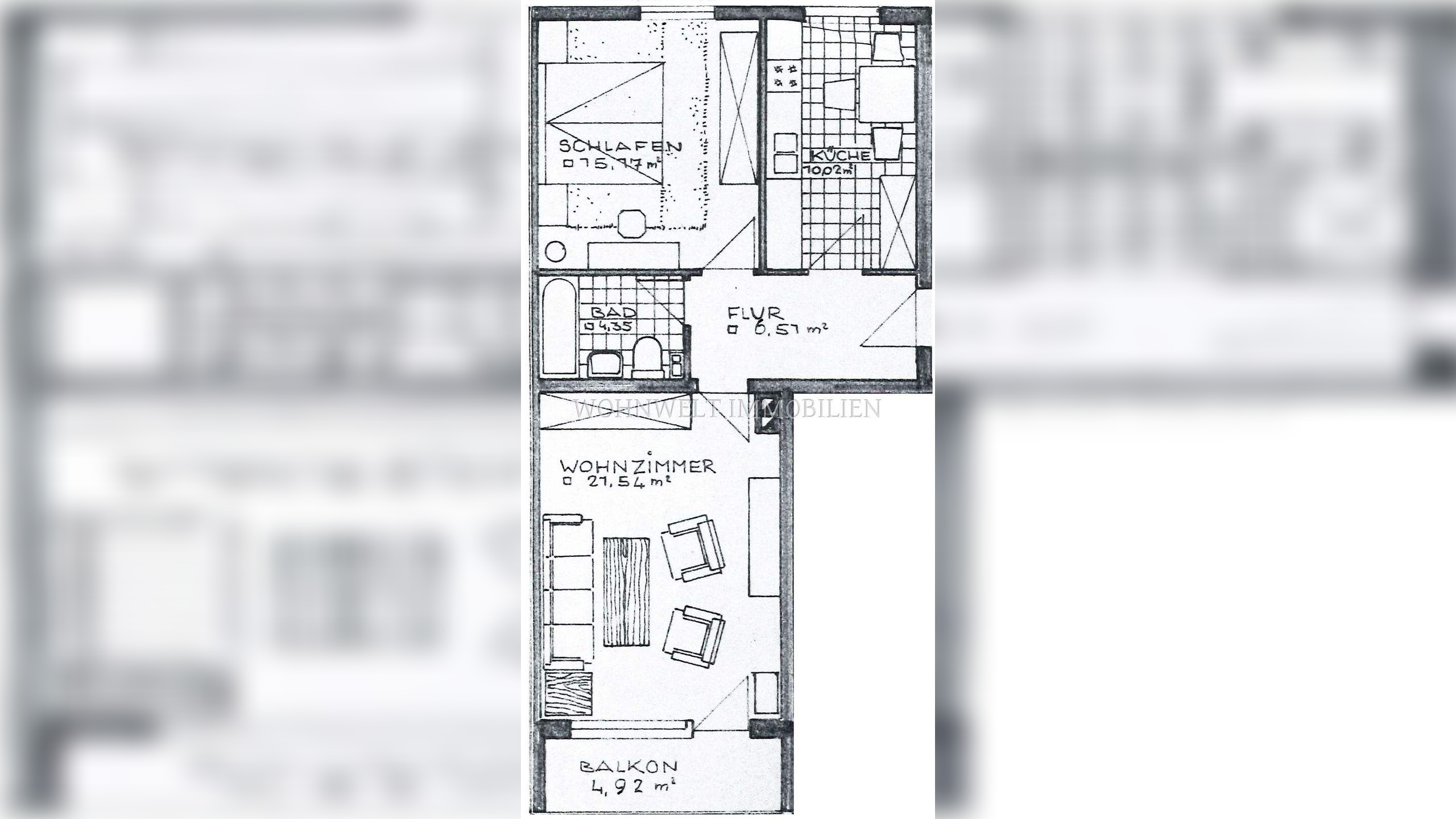
Zum Verkauf steht eine gepflegte Wohnung mit einem angenehm großen Westbalkon und Blick ins Grüne.Die Räumlichkeiten befinden sich im 1. Obergeschoss eines Mehrfamilienhauses, das im Jahr 1970 erbaut wurde.Die Wohnung zeichnet sich durch einen guten Schnitt, eine Wohnfläche von ca. 60 m², ihre ansprechenden Ausstattungsmerkmale sowie ihr gepflegtes Erscheinungsbild aus.Das stilvolle Badezimmer mit Badewanne sowie die moderne Einbauküche sind wesentliche Bestandteile der Wohnung.Das monatliche Hausgeld in Höhe von 319 € umfasst alle notwendigen Kosten und trägt zur Erhaltung des gepflegten Zustands der Immobilie bei.Nutzen Sie die Gelegenheit, Teil dieser ansprechenden Wohnkultur in guter Lage von Eching zu werden.Die Wohnung ist aktuell vermietet. Auf Wunsch kann eine Garage dazugekauft werden.Ähnliche Angebote
So funktioniert es
- Alle neuen Anzeigen matchen wir kostenlos mit Deinen Suchparametern.
- Passende Angebote senden wir Dir in einer E-Mail pro Tag.
- Du kannst auch verschiedene Suchen anlegen und Dich jederzeit abmelden. Mehr dazu




